
ohne-makler.net - Immobilien selbst vermarkten
Herr/Frau ohne-makler.net Kundenservice
040 ···
Nr. anzeigenPreise & Kosten
nicht in Warmmiete enthalten
Kaution
2.850,00
Warum sehe ich diese Anzeige? – Du siehst diese Anzeige basierend auf Ihrer Navigation auf unserer Website und den Suchkriterien, die du verwendet hast.
Lage
Die Wohnung befindet sich in Butzbach, Ortsteil Griedel, einer ruhigen und zugleich verkehrsgünstigen Wohnlage. Die direkte Anbindung an die A5 ( 1 Minute von Wohnung zur Autobahn) sowie die unmittelbare Nähe zur A45 ermöglicht schnelle Wege in Richtung Gießen, Friedberg, Frankfurt am Main und das gesamte Rhein-Main-Gebiet -...
Die Wohnung
Kategorie
Penthouse
Wohnungslage
3. Geschoss
Bezug
01.02.2026
Wohnanlage
Energie & Heizung
Warum sehe ich diese Anzeige? – Du siehst diese Anzeige basierend auf Ihrer Navigation auf unserer Website und den Suchkriterien, die du verwendet hast.
Energieausweistyp
Bedarfsausweis
Gebäudetyp
Wohngebäude
Effizienzklasse
B
Endenergiebedarf
50,00 kWh/(m²·a)
Weitere Energiedaten
Energieträger
Fernwärme
Heizungsart
Fußbodenheizung
Details
Objektbeschreibung
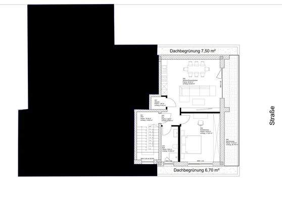
Zur Vermietung steht eine moderne Wohnung (Neubau) im Staffelgeschoss (keine Dachschräge) eines gepflegten Mehrfamilienhauses in Butzbach OT Griedel. Der durchdachte Grundriss bietet ein angenehmes Wohngefühl mit klarer Raumaufteilung und viel Tageslicht.
Herzstück der Wohnung ist der großzügige Wohn-, Ess- und...
Ausstattung
Balkon, Keller, Duschbad, Fliesen
Bemerkungen:
Energiestandard: Effizienzhaus 40
Wohnung im Staffelgeschoss
Dachterrasse / Dachterrasse ca. 13,59 m²
Duschbad (moderne Ausführung)
Großes Schlafzimmer ca. 19 m²
Wohn-/Ess-/Küchenbereich ca. 29 m²
(Hinweis: ohne Einbauküche - ideal für eigene...
Preisinformation
1 Stellplatz
Nettokaltmiete: 950,00 EUR
Weitere Informationen
Sonstiges
Heizungsart: Fußbodenheizung
Energieträger: Fernwärme
Makleranfragen nicht erwünscht. Nach § 7 UWG sind unaufgeforderte Kontaktaufnahmen durch Makler ohne ausdrückliche Einwilligung des Empfängers verboten!
ohne-makler (OM) ist weder Anbieter noch Vermittler der Immobilie. OM betreibt eine...
Dokumente
Anbieter der Immobilie
ohne-makler.net - Immobilien selbst vermarkten
Humboldtstr. 25 A, 21509 Glinde
Online-ID: 2nyan52
Referenznummer: 419812
Finde Angebote wie dieses
Hier geht es zu unserem Impressum, den Allgemeinen Geschäftsbedingungen, den Hinweisen zum Datenschutz und nutzungsbasierter Online-Werbung.