

HAVERKAMP IMMOBILIEN
Herr Jendrik Haverkamp
+49 ···
Nr. anzeigenPreise & Kosten
Provision für Käufer
3% inkl. MwSt.
Maklerkosten: 3 % Käuferprovision inkl. MwSt., verdient und fällig mit Beurkundung des notariellen Kaufvertrages. Der Immobilienmakler hat einen provisionspflichtigen Maklervertrag mit dem Verkäufer in gleicher Höhe abgeschlossen.
Lage
Die Wohnung liegt in unmittelbarer Elbnähe in 22880 Wedel, in einer der gefragtesten Wohnlagen der Region. Die Schulauer Straße verbindet die Ruhe einer gewachsenen Wohngegend mit der Nähe zur Natur und den maritimen Vorzügen des Elbufers. Einkaufsmöglichkeiten, Schulen, Kindergärten und Restaurants sind in wenigen Minuten...
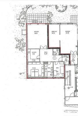
Die Wohnung
Wohnungslage
Erdgeschoss
Bezug
Nach Vereinbarung
Wohnanlage
Energie & Heizung
Warum sehe ich diese Anzeige? – Du siehst diese Anzeige basierend auf Ihrer Navigation auf unserer Website und den Suchkriterien, die du verwendet hast.
Energieausweistyp
Verbrauchsausweis
Gebäudetyp
Wohngebäude
Baujahr laut Energieausweis
1993
Wesentliche Energieträger
Gas
Gültigkeit
04.08.2025 bis 03.08.2035
Effizienzklasse
D
Endenergieverbrauch
122,00 kWh/(m²·a)
Weitere Energiedaten
Energieträger
Gas
Heizungsart
Zentralheizung
Details
Objektbeschreibung
In einer der begehrtesten Wohnlagen Wedels, nur wenige Schritte von der Elbe entfernt, befindet sich diese attraktive Erdgeschosswohnung.
Mit einer Wohnfläche von rund 98,75 m² verbindet sie großzügiges Wohnen mit hochwertiger Ausstattung und einem durchdachten Grundriss - ideal für anspruchsvolle Käufer, die Wert auf...
Ausstattung
. Sonnige Terrasse mit elektrischer Markise
. Hochwertige Markeneinbauküche
. Zwei Bäder (Wannenbad mit Fenster + Gäste-Duschbad)
. Fußbodenheizung in der gesamten Wohnung
. Elektrische Rollläden & Fliegengitter an allen Fenstern
. Zwei eigene Tiefgaragenstellplätze können für jeweils € 25.000, -- erworben...
Weitere Informationen
Sonstiges
Bitte haben Sie Verständnis, dass wir ausschließlich E-Mail-Anfragen berücksichtigen können, die vollständige Angaben zu Namen, Anschrift und Telefonnummer enthalten. Vorteilhaft sind zudem vollständige Kontaktdaten einschließlich Mobilnummer und E-Mail-Adresse.
Haftungsausschluss
Die von uns...
Anbieter der Immobilie

Online-ID: 2nydr53
Referenznummer: 7386#YvOmy
Finde Angebote wie dieses
Hier geht es zu unserem Impressum, den Allgemeinen Geschäftsbedingungen, den Hinweisen zum Datenschutz und nutzungsbasierter Online-Werbung.