
Sächsische Grundstücksauktionen AG
Firma SÄCHSISCHE GRUNDSTÜCKSAUKTIONEN AG
034 ···
Nr. anzeigenPreise & Kosten
Mindestpreis, Verkauf gegen Angebot
Provision für Käufer
siehe Hinweise
Lage
Die Landgemeinde Roßleben-Wiehe mit rund 7.200 EW und 10 Ortsteilen liegt im Kyffhäuserkreis, nahe der Landesgrenze zu Sachsen-Anhalt, ca. 55 km östlich der Kreisstadt Sondershausen und etwa 44 km nördlich von Weimar. Die Stadt ist über die L1215 und die L1217 zu erreichen. Anschluss an die A71 besteht in ca. 18 km...
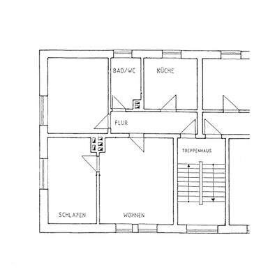
Die Immobilie
Zu diesem Angebot wurden vom Anbieter keine weiteren Daten hinterlegt. Für weitere Informationen bitte den Anbieter kontaktieren.
Nach Informationen fragenDetails
Objektbeschreibung
Mehrfamilienhaus, Baijahr ca. 1965. Im Zuge von Sanierungsarbeiten nach 1990 wurden u. a. Kunststoffisolierglasfenster eingebaut, die Dacheindeckung, die Fassade und die Elektrik zum Teil erneuert sowie die Heizungs- und Sanitäranlagen modernisiert. Ölzentralheizung mit zentraler Warmwasserbereitung. Das Gemeinschaftseigentum...
Weitere Informationen
HINWEISE
Das Objekt kommt in unserer freihändigen, privaten und öffentlichen Versteigerung der SÄCHSISCHEN GRUNDSTÜCKSAUKTIONEN AG vom 04.03.2026 bis zum 06.03.2026 zum Aufruf. Nutzen Sie die Vorteile der Immobilienauktion und ersteigern Sie Ihre Wunschimmobilie. Die Versteigerung beginnt bei einem sehr attraktiven...
Dokumente
Anbieter der Immobilie

Sächsische Grundstücksauktionen AG
Grimmaische Straße 2 - 4, 04109 Leipzig
Online-ID: 2nyf35b
Referenznummer: 092-01-2026
Finde Angebote wie dieses
Hier geht es zu unserem Impressum, den Allgemeinen Geschäftsbedingungen, den Hinweisen zum Datenschutz und nutzungsbasierter Online-Werbung.