
Immobiliaris GmbH
Frau Lea Leichtfried
+43 ···
Nr. anzeigenPreise & Kosten
inkl. Betriebskosten
Kaution
3 Bruttomonatsmieten
Provision für Mieter
Gemäß Erstauftraggeberprinzip bezahlt der Abgeber die Provision.
Warum sehe ich diese Anzeige? – Du siehst diese Anzeige basierend auf Ihrer Navigation auf unserer Website und den Suchkriterien, die du verwendet hast.
Lage
Öffentliche Verkehrsmittel:
- Straßenbahnstation Höchstädtplatz (Linien 1, 2, 30, 31, 33) - wenige Gehminuten entfernt
- Busstation Höchstädtplatz 37A
- U6-Station Dresdner Straße - rasch erreichbar
- Bahnhof Handelskai - Verbindung zur S-Bahn und Regionalzügen
Einkaufen & Nahversorgung:
- Billa im...
Die Wohnung
Wohnungslage
7. Geschoss
Bezug
sofort
Wohnanlage
Energie & Heizung
Warum sehe ich diese Anzeige? – Du siehst diese Anzeige basierend auf Ihrer Navigation auf unserer Website und den Suchkriterien, die du verwendet hast.
Heizwärmebedarf (HWB)
21,20 kWh/(m²·a)
Gesamtenergieeffizienz (fGEE)
0,79
Weitere Energiedaten
Energieträger
Fernwärme
Heizungsart
Fußbodenheizung
Details
Objektbeschreibung
Sehr geehrte Damen und Herren,
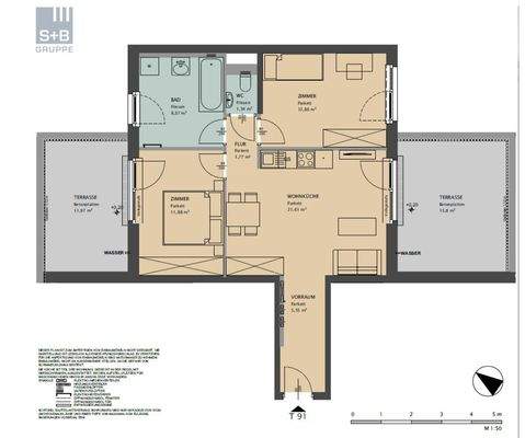
zur Vermietung gelangt eine moderne 3-Zimmer-Wohnung in urbaner Lage. Die Einheit befindet sich im 7. Obergeschoss eines zeitgemäßen Neubaus und bietet eine durchdachte Raumaufteilung sowie eine qualitative Ausstattung.
Die Wohnung verfügt über ca. 63 m² Nutzfläche und zwei großen...
Preisinformation
1 Garagenstellplatz
Nettokaltmiete: 1.221,44 EUR
Weitere Informationen
Stichworte
Garage vorhanden, Tiefgarage vorhanden, Fahrradraum, Rolladen, Nutzfläche: 63,38 m², Freifläche: 27,77 m², Anzahl der Badezimmer: 1, Anzahl der separaten WCs: 1, Anzahl Terrassen: 2, Balkon-Terrassen-Fläche: 27,77 m², Bundesland: Wien
Sonstiges: Neubaustandard
Anbieter der Immobilie
Immobiliaris GmbH
Rotenturmstrasse 17, Top 10-12, 1010 WIEN
Online-ID: 2nz2452
Referenznummer: OBGC20260110133113378d658415b61
Finde Angebote wie dieses
Hier geht es zu unserem Impressum, den Allgemeinen Geschäftsbedingungen, den Hinweisen zum Datenschutz und nutzungsbasierter Online-Werbung.