
Stanglmaier Immobilien GmbH
Frau Jana Stanglmaier
081 ···
Nr. anzeigenPreise & Kosten
Provision für Käufer
2,38 % inkl. MwSt.
Lage
Die Gemeinde Langenbach liegt mittig zwischen der Kreisstadt Freising und der Stadt Moosburg an der Isar. Sämtliche Dinge des täglichen Bedarfs sind fußläufig in wenigen Minuten erreichbar. Langenbach verfügt über eine ausgezeichnete Verkehrsinfrastruktur. Der Bahnanschluss gehört zum MVV-Gebiet.
Die BAB 92 ist schnell zu...
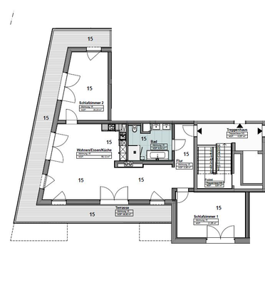
Die Wohnung
Kategorie
Penthouse
Wohnungslage
2. Geschoss
Bezug
kurzfristig
Wohnanlage
Energie & Heizung
Warum sehe ich diese Anzeige? – Du siehst diese Anzeige basierend auf Ihrer Navigation auf unserer Website und den Suchkriterien, die du verwendet hast.
Energieausweistyp
Bedarfsausweis
Gebäudetyp
Wohngebäude
Wesentliche Energieträger
Erdwärme
Gültigkeit
11.10.2024 bis 10.10.2034
Endenergiebedarf
27,00 kWh/(m²·a)
Weitere Energiedaten
Energieträger
Erdwärme
Details
Objektbeschreibung
Wohnen der Extraklasse in Langenbach! Ihr neues Zuhause befindet sich im 2. Obergeschoss eines neugebauten Mehrfamilienhauses mit insgesamt 18 Wohneinheiten. Auf ca. 123,17 m² Wohnfläche stehen Ihnen ein geräumiger Wohn-, Ess- und Kochbereich, zwei Schlafzimmer und ein großzügiges Badezimmer zur Verfügung.
Das Highlight...
Ausstattung
Die Ausstattung des Angebotes lässt keine Wünsche offen: Das gesamte Dachgeschoss ist in umweltfreundlicher Holzbauweise mit Holzfaserdämmung errichtet und mit einer Fichten-Außenbekleidung versehen und trägt ein Gründach. Bei den Innenwänden handelt es sich um Kalksandsteinmauerwerk mit hervorragender Schalldämmung. Die...
Preisinformation
1 Tiefgaragenstellplatz
Weitere Informationen
Stichworte
Tiefgarage vorhanden, Nutzfläche: 4,00 m², Anzahl der Schlafzimmer: 2, Anzahl der Badezimmer: 1, Anzahl Balkone: 1, Balkon-Terrassen-Fläche: 49,92 m², Bundesland: Bayern
Anbieter der Immobilie
Stanglmaier Immobilien GmbH
Am Wörth 10, 85354 Freising

Online-ID: 2nz2553
Referenznummer: 595
Finde Angebote wie dieses
Hier geht es zu unserem Impressum, den Allgemeinen Geschäftsbedingungen, den Hinweisen zum Datenschutz und nutzungsbasierter Online-Werbung.