Version: 8.25.1Navigation überspringen
780.000 €
6 Zimmer  •  150 m²  •  650 m² Grundstück

Einfamilienhaus zum Kauf
780000 €
5.200 €/m²
6 Zimmer  •  150 m²  •  650 m² Grundstück

Traumhaftes Grundstück - Einfamilienhaus + Keller in Immenhausen - Bestpreisgarantie bei Bien-Zenker

Doppelhaushälfte "Celebration 139" mit Keller und optionaler Einliegerwohnung

Die Häuser können im Grundriss und in der Größe individuell angepasst werden - schnell sein lohnt sich!

Individuelle Architektur, modernes Design und ein zeitgemäßes Raumkonzept - die Doppelhaushälfte Celebration 139 verbindet auf einzigartige Weise Qualität, Komfort und zeitgemäßes Wohnen. Auf ca. 150 m² Wohnfläche bietet dieses Haus großzügige Räume für Familien, Paare oder Kapitalanleger und lässt sich ganz nach Ihren persönlichen Vorstellungen gestalten und erweitern.

Optional besteht die Möglichkeit, eine Einliegerwohnung im Keller zu realisieren - ideal zur Vermietung, als Gästebereich oder für ein Mehrgenerationenkonzept. Der voll unterkellerte Bauweise schafft zusätzlichen Platz für Technik, Hobby, Stauraum oder Wohnen.

Architektonisch überzeugt das Celebration 139 durch moderne Gestaltungsmöglichkeiten wie große Fensterflächen, klare Linien und attraktive Fassadenelemente. Ergänzende Designoptionen wie Erker, Balkone, Giebel, farbliche Akzente oder Holzdetails ermöglichen eine individuelle Außengestaltung. Verschiedene Dachformen, zum Beispiel Sattel- oder Walmdach, runden das äußere Erscheinungsbild harmonisch ab.

Auch im Inneren begeistert das Haus durch ein durchdachtes Raumkonzept. Der offen gestaltete Wohn- und Essbereich im Erdgeschoss sorgt für ein helles, großzügiges Wohngefühl und bildet das Herzstück des Hauses. Große Fensterflächen sorgen für viel Tageslicht und ein angenehmes Wohnklima. Im Obergeschoss erwarten Sie komfortable Schlafräume sowie ein großzügiges Bad mit modernen Ausstattungsoptionen.

Die Doppelhaushälfte Celebration 139 vereint modernes Wohnen mit hoher Funktionalität und Flexibilität - und bietet den perfekten Rahmen, um Ihren Wohntraum Wirklichkeit werden zu lassen.

Merkmale

  • 650 m² Grundstück
Das Haus wird in bekannter Bien-Zenker Qualität zu Ausstattung fertig angeboten. Eigenleistungen wie Böden, Wände müssen selbst übernommen werden, um Kosten zu sparen. Das Haus kann noch individuell verändert werden.

Im Preis enthalten:

* Effizienzhaus 40 plus optional mit QNG Zertifikat
* Satteldach mit 25° Dachneigung
* Kniestock 160cm
* auf Keller
* Fenster mit 3-fach-Isolierverglasung, mit exzellentem Wärme- und Schalldämmschutz
* ökologische und nachhaltige Fertig-Bauweise
* Planungswünsche können noch berücksichtigt werden!
* Wohlfühl-Klima-Heizung
* Sanitär- und Elektroinstallation

Anpassung der Dachneigung und des Kniestocks an Bauvorschriften gegen Preiskorrektur möglich.

Grundstück im Preis inbegriffen. Zuzüglich der ortsüblichen Baunebenkosten.

Gerne beraten wir Sie mit unserem unabhängigen Finanzierungsspezialisten!

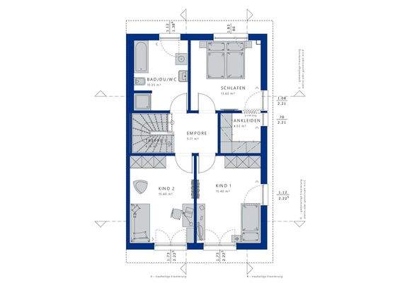
Grundrisse

Grundrisse
1 / 2

Virtueller Rundgang

Video

Realisiere Dein Projekt

Bausubstanz und Energie

Möchtest du Details zum Energieverbrauch?info_energy_calculation-icon
  • Zustand der ImmobilieProjektiert

Preisdetails

Kaufpreis
780000 €
5.200 €/m²
Provision für Käufer
Bei Abschluss eines Kaufvertrages wird eine Vermittlungs-/ Nachweisprovision in Höhe von 5,8 % inklusive 19 % Mehrwertsteuer auf den Kaufpreis des Grundstücks vom Käufer fällig.
Geschätzte Gesamtkosten
862.446 €1
Kaufpreis
780.000 €
Notarkosten (1,5%)
11.700 €
Grunderwerbsteuer (5%)
39.000 €
Provision für Käufer (3,57%)
27.846 €
Grundbucheintrag (0,5%)
3.900 €
1Der angezeigte Wert ist eine automatisch berechnete Schätzung von immowelt.
2Bei den Angaben handelt es sich um ortsübliche Werte. Individuelle Kosten können abweichen.

Lage

address-icon
Immenhausen (72127)
Der Anbieter hat die genaue Adresse nicht freigegeben
Immenhausen ist ein Teilort der Gemeinde Kusterdingen im Landkreis Tübingen in Baden-Württemberg. Der Ort liegt auf der Härten-Hochebene östlich von Tübingen und bietet eine ruhige, dörflich geprägte Wohnlage mit guter Anbindung an Tübingen, Reutlingen und die B28. Die Umgebung ist landwirtschaftlich geprägt, mit viel Natur und weiten Ausblicken. Ideal für Familien und Berufspendler, die naturnah wohnen und dennoch stadtnah sein möchten.

Das Grundstück ist einzigartig und bietet eine traumhafte unverbaute Sicht nach Gomaringen über die Felder.

Weitere Informationen

Sonstiges Wir schätzen Ihr Interesse an unserem Grundstücksangebot und möchten darauf hinweisen, dass wir aus verschiedenen Gründen die genaue Adresse des Grundstücks erst in einem persönlichen Gespräch bekannt geben können. Dies dient sowohl Ihrem als auch unserem Schutz, um sicherzustellen, dass wir Ihre Anfrage bestmöglich bearbeiten können.

Kontaktangaben sind wichtig: Bitte stellen Sie sicher, dass Sie uns Ihre vollständigen Kontaktdaten zur Verfügung stellen. Anfragen ohne vollständige Kontaktdaten können aus organisatorischen Gründen nicht bearbeitet werden.

Kommission oder Direktverkauf: Wir möchten darauf hinweisen, dass das angebotene Grundstück entweder in Kommission angeboten wird oder direkt von Dritten verkauft wird. Dies kann bedeuten, dass der oben genannte Preis aufgrund der aktuellen Marktsituationen variieren kann.

Maklercourtage: Bitte beachten Sie, dass bei diesem Grundstücksangebot gegebenenfalls eine zusätzliche Maklercourtage anfallen kann. Die genauen Bedingungen hierfür werden im persönlichen Gespräch erläutert.

Das Haus befindet sich in der Projektierung - Änderungen an Grundriss und Aussehen sind jederzeit möglich.

Die Bilder, Grundrisse, etc können Sonderausstattungen enthalten die nicht im Preis inbegriffen sind.

Planen Sie ihren Traum vom eigenen Haus mit Bien-Zenker. Wir beraten Sie ausführlich und ehrlich. Gemeinsam schaffen wir die Grundlagen für Ihren Hausbau.

Kevin Baur und Bien-Zenker - Hier passt alles zusammen!

http://diefertighausprofis.de/

-

Bien-Zenker ist für seine überdurchschnittliche Kundenorientierung als einer von "Deutschlands Kundenchampions 2017" ausgezeichnet worden. Dieses Zertifikat verleihen das F.A.Z.-Institut, die Deutsche Gesellschaft für Qualität (DGQ) und das Marktforschungsunternehmen forum! GmbH seit zehn Jahren an Unternehmen, denen es in besonderem Maße gelingt, Kunden leistungsmäßig und emotional anzusprechen, an sich zu binden und somit zu Fans zu machen. Grundlage ist eine umfangreiche Rundum-Kundenbeziehungs-Analyse auf Basis repräsentativer Kundenbefragungen.

Bei der Untersuchung der Servicequalität von zwölf Fertighausanbietern durch das Deutsche Institut für Service-Qualität (DISQ) erreichte Bien-Zenker einen hervorragenden dritten Platz. Dabei konnten besonders unsere beratenden Kollegen glänzen, die in den verdeckt durchgeführten Testberatungen nicht nur mit Fachwissen, sondern auch dadurch punkteten, dass sie sehr umfassend auf die Lebenssituation der Kunden eingingen. Zudem wurde der schnelle und reibungslose Versand von Informationsmaterialien gelobt.

Beim jährlich stattfindenden Focus-Money Fertighaushersteller-Test wurde Bien-Zenker erneut zum "Fairsten Fertighausanbieter" gekürt. Dabei konnte sich der hessische Anbieter gegenüber dem Vorjahr sogar noch verbessern: in der Kategorie "Faire Kundenkommunikation" beurteilten die befragten Bauherren die Leistung nun mit "sehr gut". Insgesamt vergaben sie an Bien-Zenker 4 x die Note "sehr gut" und 2 x "gut".

Die Fertighaus Profis - https://diefertighausprofis.de/

Bien-Zenker - https://www.bien-zenker.de/ Stichworte 2 Etagen, Lage im Wohngebiet

Weitere Services

Lust auf eine Besichtigung?
Eine Frage zur Immobilie?
Nachricht hinzufügen
Mit der Nutzung der oben angegebenen Telefonnummer oder durch Klicken auf „Kontaktieren“ akzeptierst Du die Allgemeinen Nutzungsbedingungen, denen Du jederzeit widersprechen kannst. Weitere Informationen zum Datenschutz

Über den Anbieter

Römerstraße 157, 72793 Pfullingen
Kevin BaurDein Kontakt
Online-ID: 25CI7T4FCNX5
Referenznummer: 12688-1734
Bien-Zenker GmbH Musterhaus
Nachricht hinzufügen
Mit der Nutzung der oben angegebenen Telefonnummer oder durch Klicken auf „Kontaktieren“ akzeptierst Du die Allgemeinen Nutzungsbedingungen, denen Du jederzeit widersprechen kannst. Weitere Informationen zum Datenschutz
Wie zufrieden bist du mit dieser Seite (nicht mit der Immobilie selbst)?