
Mertin Immobilien
Frau Anja Mertin
+49 ···
Nr. anzeigenPreise & Kosten
Kaution
1980,00
Warum sehe ich diese Anzeige? – Du siehst diese Anzeige basierend auf Ihrer Navigation auf unserer Website und den Suchkriterien, die du verwendet hast.
Lage
Diese schöne Wohnung befindet sich in sehr gefragter Lage AM GRÜNEN KRANZ 10 in Rendsburg. Es ist der hintere Wohnblock mit Blick ins Grüne. Hier wohnen überwiegend junggebliebene Seniorinnen und Senioren. Hier schätzt man sich und hält mal ein Pläuschchen. Die Bushaltestelle ist fußläufig in 3 Minuten erreichbar. Eine...
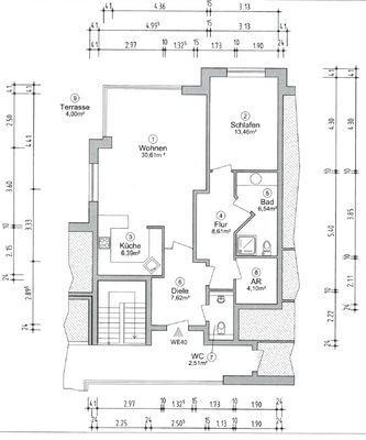
Die Wohnung
Wohnungslage
Erdgeschoss
Bezug
Nach Absprache
Wohnanlage
Energie & Heizung
Warum sehe ich diese Anzeige? – Du siehst diese Anzeige basierend auf Ihrer Navigation auf unserer Website und den Suchkriterien, die du verwendet hast.
Energieausweistyp
Verbrauchsausweis
Gebäudetyp
Wohngebäude
Wesentliche Energieträger
Erdgas schwer
Gültigkeit
30.06.2020 bis 29.06.2030
Effizienzklasse
C
Endenergieverbrauch
88,00 kWh/(m²·a) - Warmwasser enthalten
Weitere Energiedaten
Energieträger
Fernwärme, Gas
Details
Objektbeschreibung
Diese schöne, helle Wohnung mit 85 m² Wohnfläche wurde 2009 in massiver Bauweise in einem 6 Parteien Haus AM GRÜNEN KRANZ IN RENDSBURG errichtet.
Der große Lebensbereich (Wohnzimmer) hat einen direkten Zugang zur eigenen Terrasse über Eck. Die Terrasse ist Süd/West ausgerichtet, so dass es den ganzen Tag hell ist. Der...
Preisinformation
1 Garagenstellplatz
Weitere Informationen
Sonstiges
Die hier gemachten Angaben beruhen auf Informationen des Eigentümers und ggf. auf Angaben aus den Bauakten. Eine Gewähr auf Richtigkeit und Vollständigkeit kann trotz sorgfältiger Prüfung von uns nicht übernommen werden. Dies gilt insbesondere für Baujahre und Flächenangaben (bspw. Wohnfläche, Nutzfläche...
Anbieter der Immobilie

Mertin Immobilien
Straße 10, 24784 Westerrönfeld
Online-ID: 2nz9b5c
Referenznummer: 11571#fYCzr
Finde Angebote wie dieses
Hier geht es zu unserem Impressum, den Allgemeinen Geschäftsbedingungen, den Hinweisen zum Datenschutz und nutzungsbasierter Online-Werbung.