
HB-HB-Immobilien
Frau Rebekka Marie Karth
004 ···
Nr. anzeigenPreise & Kosten
Provision für Käufer
3,57 % (inkl. 19 % MwSt.) vom beurkundeten Kaufpreis, jeweils vom Käufer und Verkäufer
Lage
Das Reihenmittelhaus befindet sich in einer ruhigen Wohnlage im Bremer Stadtteil Osterholz. Die Umgebung ist durch eine gewachsene Struktur mit überwiegender Wohnbebauung geprägt und zeichnet sich durch eine sehr gute infrastrukturelle Anbindung aus.
Sämtliche Einrichtungen des täglichen Bedarfs, darunter Supermärkte...
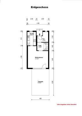
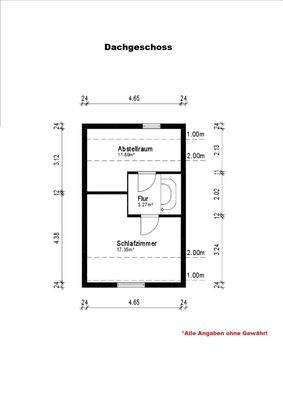
Das Haus
Kategorie
Reihenmittelhaus
Baujahr
1965
Energie & Heizung
Warum sehe ich diese Anzeige? – Du siehst diese Anzeige basierend auf Ihrer Navigation auf unserer Website und den Suchkriterien, die du verwendet hast.
Energieausweistyp
Bedarfsausweis
Gebäudetyp
Wohngebäude
Baujahr laut Energieausweis
2005
Wesentliche Energieträger
GAS
Gültigkeit
bis 12.08.2035
Effizienzklasse
F
Endenergiebedarf
174,20 kWh/(m²·a)
Weitere Energiedaten
Energieträger
Gas
Details
Objektbeschreibung
Dieses im Bremer Stadtteil Osterholz gelegene Reihenmittelhaus bietet eine Wohnfläche von ca. 97 m² und wurde in den vergangenen Jahren einer konsequenten Modernisierungsstrategie unterzogen. Beim Betreten der Immobilie über den im Jahr 2020 sanierten Flur, der 2021 mit neuen Fenstern ausgestattet wurde, wird der gepflegte...
Ausstattung
Die Ausstattung umfasst eine im Jahr 2025 sanierte und neu möblierte Einbauküche inklusive aktueller Elektrogeräte sowie ein innenliegendes Badezimmer mit Duschwanne und Handtuchwärmer. Die Bodenbeläge bestehen unter anderem aus einer Echtholztreppe und modernisierten Flurflächen. Technisch verfügt das Objekt über einen im...
Weitere Informationen
Sonstiges
Die aktuelle Grundsteuer beträgt: ca. 346,60 € p. a.
Unsere Objektangaben basieren auf den uns erteilten Informationen. Eine Haftung für die Richtigkeit und Vollständigkeit können wir deshalb nicht übernehmen.
Bei den Raumansichten handelt es sich um KI-gestützte 3D-Visualisierungen. Diese dienen...
Anbieter der Immobilie
HB-HB-Immobilien
Schwachhauser Heerstr. 54A, 28209 Bremen
Online-ID: 2nzr75b
Referenznummer: RK-26-01-0000403
Finde Angebote wie dieses
Hier geht es zu unserem Impressum, den Allgemeinen Geschäftsbedingungen, den Hinweisen zum Datenschutz und nutzungsbasierter Online-Werbung.