
Hansestadt Immobilien GmbH
Tabea Kieselbach
041 ···
Nr. anzeigenPreise & Kosten
Provision für Käufer
3,57 % [inkl. der gesetzlichen MwSt.]
Lage
Die Immobilie befindet sich in einer ruhigen Sackgassenlage von Aumühle, eingebettet in eine grüne, naturnahe Umgebung. Das gepflegte Wohngebiet mit Einfamilienhäusern und großzügigen Gärten bietet ein familienfreundliches Umfeld und hohen Erholungswert. Wälder, Wiesen und Spazierwege beginnen praktisch vor der Haustür und...
Das Haus
Kategorie
Einfamilienhaus
Baujahr
1955
Energie & Heizung
Warum sehe ich diese Anzeige? – Du siehst diese Anzeige basierend auf Ihrer Navigation auf unserer Website und den Suchkriterien, die du verwendet hast.
Energieausweistyp
Bedarfsausweis
Gebäudetyp
Wohngebäude
Wesentliche Energieträger
Öl
Gültigkeit
14.10.2022 bis 13.10.2032
Effizienzklasse
H
Endenergiebedarf
255,10 kWh/(m²·a)
Weitere Energiedaten
Energieträger
Öl
Heizungsart
offener Kamin
Details
Objektbeschreibung
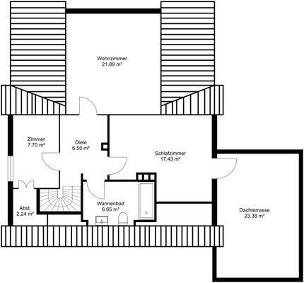
Dieses liebevoll modernisierte Einfamilienhaus aus dem Jahr 1955 mit Anbauten aus 1964 und 1975 bietet eine Wohnfläche von ca. 175 m² auf einem Grundstück von ca. 1.373 m² und verfügt über 5,5 Zimmer. Die Immobilie verbindet den klassischen Charme vergangener Jahrzehnte mit zeitgemäßem Wohnkomfort. Sie wurde in den letzten...
Ausstattung
- Helle, lichtdurchflutete Räume - dank vieler Fenster im gesamten Haus entsteht eine freundliche und wohnliche Atmosphäre
- Offener Wohn- und Essbereich mit Kachelofen und Designboden - das Herzstück des Hauses bietet viel Platz und flexible Nutzungsmöglichkeiten, z.?B. als zusätzliches Gästezimmer oder...
Weitere Informationen
Sonstiges
Bitte haben Sie Verständnis dafür, dass wir unseren Auftraggebern Diskretion zugesagt haben und Ihrer Anfrage nach einem ausführlichen Exposé nur nachkommen können, wenn Sie uns Ihren vollständigen Namen und Ihre postalische Anschrift mitteilen.
Anfragen, die ohne die vollständigen Kontaktdaten...
Anbieter der Immobilie
Online-ID: 2nzuf53
Referenznummer: HI2025460
Finde Angebote wie dieses
Hier geht es zu unserem Impressum, den Allgemeinen Geschäftsbedingungen, den Hinweisen zum Datenschutz und nutzungsbasierter Online-Werbung.