
IMMOcontract Immobilien Vermittlung GmbH
Frau Marianne Gerner-Kraupatz
+43 ···
Nr. anzeigenPreise & Kosten
Provision für Käufer
provisionsfrei
Lage
Peuerbach selbst, bekannt für seine idyllische Umgebung und die herzliche Gemeinschaft, bietet ein vielfältiges Freizeitangebot. Die Region lädt zu ausgedehnten Spaziergängen, Radtouren oder entspannten Ausflügen ins Grüne ein. Für kulturelle Abwechslung sorgen historische Sehenswürdigkeiten und Veranstaltungen in der...
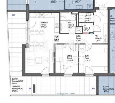
Die Wohnung
Bezug
1. Quartal 2027
Wohnanlage
Energie & Heizung
Warum sehe ich diese Anzeige? – Du siehst diese Anzeige basierend auf Ihrer Navigation auf unserer Website und den Suchkriterien, die du verwendet hast.
Heizwärmebedarf (HWB)
35,30 kWh/(m²·a)
Gesamtenergieeffizienz (fGEE)
0,56
Details
Objektbeschreibung
Im Zentrum von Peuerbach entstehen 32 Eigentumswohnungen mit einem Ausmaß von rund 35 m² bis etwa 117 m². Die "Stadtterrassen Peuerbach" sind südwestlich ausgerichtet, erstrecken sich entlang des Narzissenweges und bieten einen schönen Ausblick über Peuerbach. Die zentrale Lage in Peuerbach ermöglicht Ihnen einen bequemen...
Weitere Informationen
Sonstiges
Großzügige Freiflächen, Glasfaser,
Stichworte
Balkon-Terrassen-Fläche: 39,33 m², Bundesland: Oberösterreich
Anbieter der Immobilie
IMMOcontract Immobilien Vermittlung GmbH
Schnirchgasse 17, 1030 WIEN
Online-ID: 2nzwv5a
Referenznummer: OBGC202508261353008944f71c81489
Finde Angebote wie dieses
Günstige Immobilienfinanzierung einfach online berechnen
Persönliches Angebot berechnenWarum sehe ich diese Werbung? – Du siehst diese Werbung basierend auf Deiner Navigation auf unserer Website und der von Dir verwendeten Suchkriterien.
Diese Werbung wird bezahlt von durchblicker
Werbung melden
Hier geht es zu unserem Impressum, den Allgemeinen Geschäftsbedingungen, den Hinweisen zum Datenschutz und nutzungsbasierter Online-Werbung.