

Doppelhaushälfte zur Miete1.780 €5 Zimmer • 178 m² • 430 m² Grundstück
1.780 €
5 Zimmer • 178 m² • 430 m² Grundstück
Schöne Doppelhaushälfte mit viel Platz & Ortsrandblick ideal für Ihre Familie
Merkmale
- Bezug: Sofort
- 430 m² Grundstück
- Haustiere erlaubt
- Einbauküche
- Keller
- 3 Stellplätze: Garage, 2 Außen-Stellplätze
- Garten
- Terrasse
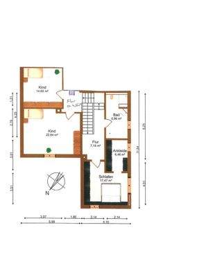
Grundrisse
Grundrisse
1 / 3
Realisiere Dein Projekt
Bausubstanz und Energie
Energieausweis
D
- Baujahr2001
- Zustand der ImmobilieGepflegt
- HeizungsartZentralheizung: Fußbodenheizung
- EnergieträgerÖl
Mietkosten
Kaltmiete
10 €/m²
1.780 €
Nebenkosten
300 €
Heizkosten
in Warmmiete enthalten
Kaution
3560 €
Weitere Preisinformationen
2 Stellplätze
1 Garagenstellplatz
1 Garagenstellplatz
Lage

Lauterbach, Steingaden (86989)
Der Anbieter hat die genaue Adresse nicht freigegeben
Weitere Informationen
Weitere Services
Lust auf eine Besichtigung?
Eine Frage zur Immobilie?
Über den Anbieter
Immobilien HerfeldtMaklerbüro
Schulgasse 292, 86899 Landsberg
10 Jahre Partnerschaft

Herr Benjamin HerfeldtDein Kontakt
Online-ID: 2nzz553
Referenznummer: 1873


Immobilien Herfeldt
Bewertung: 4,3 von 5 Sternen
Wie zufrieden bist du mit dieser Seite (nicht mit der Immobilie selbst)?

