

Immobilien Werner Rieger SRL
Herr Rieger Werner
003 ···
Nr. anzeigenPreise & Kosten
Provision für Käufer
3,66% inkl. Mwst
Lage
Die Residence befindet sich am Hang, in einer ruhige Lage mit etwas Seeblick.
Die Wohnung
Kategorie
Apartment
Details
Objektbeschreibung
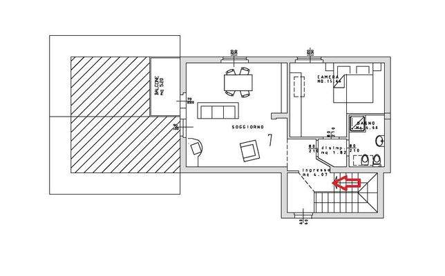
Apartment 7/A - Mansarde mit Seeblick
Eingang, Wohnzimmer/Küche mit Balkon, Schlafzimmer, Dusche/WC
Grund: Gem. Angelegter Garten mit großer gem. Pool. + Privatgarten
Preis
Apartment € 235.000
Garage € 30.000
Die Möbeln können nach separater...
Weitere Informationen
Sonstiges
Es handelt sich um eine gepflegte Residence.
Weiterhin gehört zu Anlage ein gem. Schwimmbad.
Die Residence ist wunderschön am Rande von Golfclub integriert worden; der Zugang zum Golfplatz ist sehr nahe.
En.Pa. “in bearbeitung”
Anbieter der Immobilie
Immobilien Werner Rieger SRL
Località Volta di Nò n°14, 38060 Tenno

Online-ID: 2py4v4r
Referenznummer: 2443
Finde Angebote wie dieses
Hier geht es zu unserem Impressum, den Allgemeinen Geschäftsbedingungen, den Hinweisen zum Datenschutz und nutzungsbasierter Online-Werbung.