
RUHR REAL GmbH
Herr Jonas Bruckmann
+49 ···
Nr. anzeigenPreise & Kosten
Provision für Mieter
provisionsfrei
Warum sehe ich diese Anzeige? – Du siehst diese Anzeige basierend auf Ihrer Navigation auf unserer Website und den Suchkriterien, die du verwendet hast.
Lage
Das Büro- und Hallengebäude befindet sich in Rüttenscheid an der Grenze zu Bredeney im Gewerbegebiet "Langenbrahm". Die Rüttenscheider Straße ist fußläufig in nur wenigen Gehminuten zu erreichen. Die A52 ist innerhalb einer Minute zu erreichen, genauso wie die B 224. Den Flughafen Düsseldorf erreicht man in ca. 20...
Büro-/Praxisfläche
Kategorie
Bürofläche
Baujahr
1992
Bezug
nach Vereinbarung
Derzeitige Nutzung
frei
Energie & Heizung
Warum sehe ich diese Anzeige? – Du siehst diese Anzeige basierend auf Ihrer Navigation auf unserer Website und den Suchkriterien, die du verwendet hast.
Weitere Energiedaten
Energieträger
Gas
Heizungsart
Zentralheizung
Details
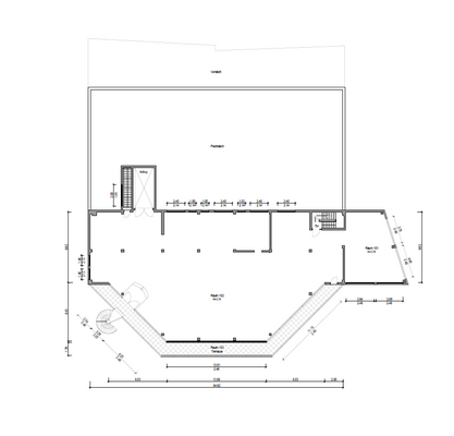
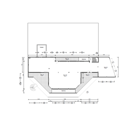
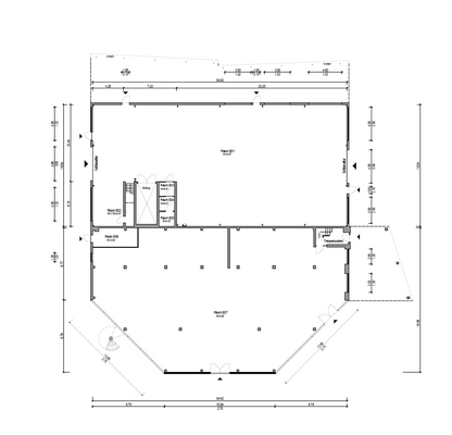
Objektbeschreibung
Das im Jahre 1992 erbaute Bürogebäude wurde im Jahre 2018 aufwendig saniert und modernisiert. Alle Flächen sind mit einem Teppichboden ausgestattet, verfügen über eine EDV-Verkabelung und Glaselemente. Die Räumlichkeiten sind flexibel gestaltbar.
Es stehen folgende Flächen zur Disposition:
EG: 577 m²
Ausstattung
. Bodenbelag: Teppichboden
. Klimatisierung: nach Vereinbarung
. EDV - Verkabelung: Mietersache
. Kühlung: optional
. Kabelführung: Fensterbankkabelkanal
. Sonnenschutz: außenliegend, elektrisch
. Teeküche: Anschlüsse vorhanden
. Beleuchtung: LED-Beleuchtung
. Heizung: Gaszentralheizung
Preisinformation
Nettokaltmiete: 13,50 EUR
Weitere Informationen
Sonstiges
Es gelten ausschließlich unsere AGB (www.ruhr-real.de/agb). Wir möchten Sie darauf hinweisen, dass die Angaben ausschließlich auf den uns vom Eigentümer übermittelten Unterlagen und Informationen basieren. Für Richtigkeit und Vollständigkeit übernehmen wir keine Gewähr. Zwischenvermietung...
Anbieter der Immobilie

RUHR REAL GmbH
Holsterhauser Platz 2, 45147 Essen
Online-ID: 2rtwe4q
Referenznummer: 494/E3
Finde Angebote wie dieses
Hier geht es zu unserem Impressum, den Allgemeinen Geschäftsbedingungen, den Hinweisen zum Datenschutz und nutzungsbasierter Online-Werbung.