Sonja Gantzckow c/o SIS GmbH Immobilienverwaltung

Frau Sonja Gantzckow

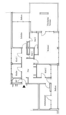
Fast 150 m² - Dachgeschosswohnung mit Blick über Mainz - für WGs geeignet

€ 1.850
Kaltmiete zzgl. NK
149,32 m²
Wohnfläche ca.
4,5
Zimmer

Der Anbieter dieses Objekts hat gegenüber der AVIV Germany GmbH als Betreiber dieses Online-Marktplatzes erklärt, nicht als Unternehmer im Sinne des § 1 KSchG zu handeln. Die im Verbraucherschutzrecht der Union verankerten Verbraucherrechte (insbesondere Informationspflichten und Rücktritts- bzw. Widerrufsrechte) finden auf den Vertrag zwischen dem Anbieter des Objekts und Ihnen (dem Interessenten) keine Anwendung.

Gewerblicher Anbieter

Der Anbieter dieses Objekts hat gegenüber der AVIV Germany GmbH als Betreiber dieses Online-Marktplatzes erklärt, als Unternehmer im Sinne des § 1 KSchG zu handeln.

AdresseAlfred-Mumbächer-Str.67a
55128 Mainz 
(Bretzenheim)
Auf Karte ansehen

Preise & Kosten

Kaltmiete € 1.850 Nebenkosten € 550 Heizkosten in Nebenkosten enthalten Warmmiete € 2.400

Kaution

5550,00

Lage

Mainz-Bretzenheim gehört aufgrund der sehr guten Infrasruktur zu den beliebtesten Mainzer Stadtteilen. Geschäfte des täglichen Bedarfs, Kitas, Grundschulen und weiterführende Schulen sind im Stadtteil vorhanden.

Die Anlage befindet sich fußläufig ca.10 Minuten von der Straßenbahnhaltestelle 52 entfernt, welche im...

Mehr anzeigen

Die Wohnung

Kategorie

Penthouse

Wohnungslage

13. Geschoss (Dachgeschoss)

Bezug

sofort

Derzeitige Nutzung

frei

  • Bad mit Fenster, Wanne und Dusche, Gäste-WC, Bad/WC getrennt
  • Balkon, Terrasse, Gartenmitbenutzung
  • Ausblick: Fernblick
  • Böden: Fliesenboden, Kunststoffboden
  • Fenster: Kunststofffenster
  • Weitere Räume: Kelleranteil, Wasch-Trockenraum
  • Anschlüsse: DSL-Anschluss, DVB-T/Antenne

Wohnanlage

  • Baujahr: 1965
  • Personenaufzug
  • Serviceleistungen: Reinigungsservice

Energie & Heizung

A+
A
B
C
D
E
F
G
H
0 25 50 75 100 125 150 175 200 225 250 +

Energieausweistyp

Verbrauchsausweis

Gebäudetyp

Wohngebäude

Gültigkeit

01.01.2014 bis 04.08.2027

Effizienzklasse

E

Endenergieverbrauch

159,00 kWh/(m²·a)

Weitere Energiedaten

Heizungsart

Zentralheizung

Details

Objektbeschreibung

Objektbeschreibung
Diese 4,5-Zimmer-Wohnung befindet sich in der obersten Etage eines gepflegten Mehrparteienhauses mit insgesamt 13 Stockwerken in Mainz-Bretzenheim. Die Einheit besticht durch ihre lichtdurchfluteten Räume und einen umlaufenden Balkon mit traumhaftem Blick. Derzeit wird in dieser Wohnung eine...

Mehr anzeigen

Weitere Informationen

Besichtigungstermine
Besichtigungstermine nach Vereinbarung.

Wir freuen uns Ihnen mitteilen zu können, dass wir die Wohnung ohne jegliche Provision anbieten können.

Stichworte
Zustand: renoviert, teilsaniert
Versorgung: Städtische Wasserversorgung, Städtische Stromversorgung
Serviceleistungen...

Mehr anzeigen

Anbieter der Immobilie

Partner

Sonja Gantzckow c/o SIS GmbH Immobilienverwaltung

im Durchschnitt  4,50  Sterne
(bei 4 Bewertungen)

Am Bahnhof 7, 65812 Bad Soden

Geschäftszeiten
user

Frau Sonja Gantzckow

Dein Ansprechpartner

Anbieter-Profil Anbieter-Impressum

Online-ID: 2tbgp4t

Referenznummer: 270-040 (Penthouse)

Finde Angebote wie dieses

imageimageimage

Hier geht es zu unserem Impressum, den Allgemeinen Geschäftsbedingungen, den Hinweisen zum Datenschutz und nutzungsbasierter Online-Werbung.