
Bücker Immobilien GmbH
Frau Ramona Rietmann
025 ···
Nr. anzeigenPreise & Kosten
Kaution
1320,00
Warum sehe ich diese Anzeige? – Du siehst diese Anzeige basierend auf Ihrer Navigation auf unserer Website und den Suchkriterien, die du verwendet hast.
Lage
Das Objekt befindet sich etwas zurückliegend in einer kleinen Stichstraße und liegt somit nicht direkt an der Hauptstraße. Sie wohnen ruhig und dennoch zentrumsnah!
Zudem sind Sie in Werne verkehrstechnisch optimal angebunden, einerseits durch die Nähe zur Autobahn A1, sowie der direkten Anbindung zum öffentlichen...
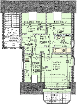
Die Wohnung
Wohnungslage
2. Geschoss (Dachgeschoss)
Bezug
01.04.2026
Wohnanlage
Energie & Heizung
Warum sehe ich diese Anzeige? – Du siehst diese Anzeige basierend auf Ihrer Navigation auf unserer Website und den Suchkriterien, die du verwendet hast.
Energieausweistyp
Verbrauchsausweis
Gebäudetyp
Wohngebäude
Baujahr laut Energieausweis
2007
Wesentliche Energieträger
Gas
Gültigkeit
08.01.2016 bis 08.01.2026
Effizienzklasse
B
Endenergieverbrauch
65,00 kWh/(m²·a)
Weitere Energiedaten
Energieträger
Gas
Heizungsart
Zentralheizung
Details
Objektbeschreibung
Diese gemütliche 3-Zimmer Dachgeschosswohnung befindet sich nur wenige hundert Meter von der Fußgängerzone und der historischen Altstadt von Werne entfernt. Einkaufsmöglichkeiten, sowie eine Postfiliale, Apotheke, Ärzte etc. sind fußläufig erreichbar.
- Balkon
- Dusche und Badewanne
- Sat-TV
- Zusätzlicher...
Weitere Informationen
Sonstiges
Bezugsfrei ist die Wohnung zum 01.04.2026 oder nach Absprache
- Kaltmiete 660,-- Euro
- Nebenkosten ca. 180,-- Euro
- Stellplatzmiete 30,-- Euro
- Kaution 1.320,-- Euro
- Haustiere sind nicht erlaubt.
Wenn Sie mehr zu...
Dokumente
Anbieter der Immobilie

Bücker Immobilien GmbH
Capeller Str. 15, 59394 Nordkirchen
Online-ID: 2u4b34h
Referenznummer: LuBe 3
Finde Angebote wie dieses
Hier geht es zu unserem Impressum, den Allgemeinen Geschäftsbedingungen, den Hinweisen zum Datenschutz und nutzungsbasierter Online-Werbung.