
Gunnar Hiller Immobilienservice GmbH & Co. KG
Herr Benjamin Hiller
097 ···
Nr. anzeigenPreise & Kosten
Kaution
1485
Warum sehe ich diese Anzeige? – Du siehst diese Anzeige basierend auf Ihrer Navigation auf unserer Website und den Suchkriterien, die du verwendet hast.
Lage
der ehemalige Haberkasten liegt mitten in der Schweinfurter Innenstadt und verfügt somit über eine erstklassige Infrastruktur.
Die Wohnung
Bezug
01.02.2026
Energie & Heizung
Warum sehe ich diese Anzeige? – Du siehst diese Anzeige basierend auf Ihrer Navigation auf unserer Website und den Suchkriterien, die du verwendet hast.
Weitere Energiedaten
Energieträger
Gas
Heizungsart
Zentralheizung
Details
Objektbeschreibung
Objektbeschreibung
Bei diesem Objekt handelt es sich um einen kernsanierten Altbau. In der kompletten Wohnung wurde ein hochwertiger Vinylboden verlegt. Es wird eine EBK mitvermietet diese ist bereits in der Warmmiete mit eingepreist.
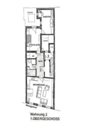
Raumaufteilung
Siehe Plan u. Bilder
Weitere Informationen
Besichtigungstermine
Schicken Sie uns gerne eine Kontaktanfrage mit Telefonnummer, E-Mail und kurzer Beschreibung Ihrer Umstände. Wir melden uns baldmöglichst bei Ihnen.
Stichworte
Zustand: saniert, gepflegt
Sonstiges: frei werdend
Anbieter der Immobilie
Gunnar Hiller Immobilienservice GmbH & Co. KG
Schweinfurter Str. 106, 97464 Niederwerrn
Online-ID: 2ulrn4a
Finde Angebote wie dieses
Hier geht es zu unserem Impressum, den Allgemeinen Geschäftsbedingungen, den Hinweisen zum Datenschutz und nutzungsbasierter Online-Werbung.