Pyramidion Immobilien UG (haftungsbeschränkt)

Herrn Emanuel Paul Bertling

Doppelhaushälfte mit Garten - Blick auf die Nordsee!

€ 1.400
Kaltmiete zzgl. NK
100 m²
Wohnfläche ca.
4
Zimmer
450 m²
Grundstücksfl. ca.

Der Anbieter dieses Objekts hat gegenüber der AVIV Germany GmbH als Betreiber dieses Online-Marktplatzes erklärt, nicht als Unternehmer im Sinne des § 1 KSchG zu handeln. Die im Verbraucherschutzrecht der Union verankerten Verbraucherrechte (insbesondere Informationspflichten und Rücktritts- bzw. Widerrufsrechte) finden auf den Vertrag zwischen dem Anbieter des Objekts und Ihnen (dem Interessenten) keine Anwendung.

Gewerblicher Anbieter

Der Anbieter dieses Objekts hat gegenüber der AVIV Germany GmbH als Betreiber dieses Online-Marktplatzes erklärt, als Unternehmer im Sinne des § 1 KSchG zu handeln.

AdresseStraße nicht freigegeben
25813 Husum 
(Schobüll)
Auf Karte ansehen

Preise & Kosten

Kaltmiete € 1.400 Nebenkosten € 120 Heizkosten

in Warmmiete enthalten

€ 80
Warmmiete € 1.520

Kaution

4.200,00

Lage

Im Zentrum von Schobüll liegt diese angebotene Doppelhaushälfte. Füßläufig erreicht man den Nahversorger und die Bushaltestelle nach Husum bzw. zur Halbinsel Nordstrand. Von hier aus starten auch die Schiffe zu den Inseln und Halligen. Der Luftkurort Schobüll zeichnet sich durch eine sehr hochwertige Bebauung, insbesondere im...

Mehr anzeigen

Das Haus

Kategorie

Doppelhaushälfte

Geschosse

3 Geschosse

Baujahr

1994

Bezug

01.03.2026

  • nicht unterkellert, Dach ausgebaut
  • Terrasse, Garten
  • 1 Stellplatz
  • Bad mit Fenster, Wanne und Dusche, Gäste-WC
  • Einbauküche
  • Böden: Fliesenboden, Teppichboden
  • Fenster: Holzfenster, Sprossenfenster
  • Anschlüsse: Satellitenanschluss
  • Weitere Räume: Abstellraum
  • Ausblick: Meerblick

Energie & Heizung

A+
A
B
C
D
E
F
G
H
0 25 50 75 100 125 150 175 200 225 250 +

Energieausweistyp

Verbrauchsausweis

Gebäudetyp

Wohngebäude

Baujahr laut Energieausweis

1994

Wesentliche Energieträger

Erdgas

Gültigkeit

05.05.2021 bis 04.05.2031

Effizienzklasse

D

Endenergieverbrauch

105,50 kWh/(m²·a)

Weitere Energiedaten

Haustyp

Massivhaus

Energieträger

Gas

Heizungsart

Etagenheizung

Details

Objektbeschreibung

Das Doppelhaus im Zentrum von Schobüll wurde 1994 errichtet und bietet einen einmaligen Blick auf die Nordsee. Durch den Ausbau des Dachstudios hat man einen freien Blick auf die Sonnenuntergänge und auf die Nordsee. Durch die zentrale Lage ist der Nahversorger fußläufig erreichbar.

Ausstattung

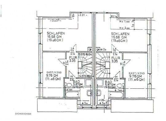
Die Haushälfte/Wohnung 1 verfügt im Erdgeschoss über ein Wohnzimmer (24 qm), eine Einbauküche (6,67 qm) einen Windfang, Flur, Gäste-WC und Hauswirtschaftsraum. Vom Wohnzimmer aus betritt man die Terrasse in Süd-Westlicher Richtung. Im Dachgeschoss befindet sich ein Schlafzimmer (19,06 qm), ein Gästezimmer (9,76 qm) und ein...

Mehr anzeigen

Weitere Informationen

Stichworte
Anzahl Terrassen: 1/Tierhaltung nicht erwünscht!

Sonstiges: frei werdend zum 01.03.2026

Dokumente

file_pdfEnergieausweis Nordseestr. 25b.pdfangle_rightfile_pdfEnergieausweis 2.pdfangle_right

Anbieter der Immobilie

Pyramidion Immobilien UG (haftungsbeschränkt)

Alter Badweg 38a, 25826 Sankt Peter-Ording

user

Herrn Emanuel Paul Bertling

Dein Ansprechpartner

Anbieter-Profil Anbieter-Impressum

Online-ID: 2uppg4a

Finde Angebote wie dieses

imageimageimage

Hier geht es zu unserem Impressum, den Allgemeinen Geschäftsbedingungen, den Hinweisen zum Datenschutz und nutzungsbasierter Online-Werbung.