

J&P Immobilienmakler GmbH
Frau Kathrin Fercher
+43 ···
Nr. anzeigenPreise & Kosten
Kaution
6 BMM
Provision für Mieter
3 BMM
Warum sehe ich diese Anzeige? – Du siehst diese Anzeige basierend auf Ihrer Navigation auf unserer Website und den Suchkriterien, die du verwendet hast.
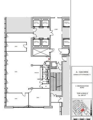
Büro-/Praxisfläche
Kategorie
Bürofläche
Baujahr
2001
Bezug
nach Vereinbarung
Geschoss
12. Geschoss
Energie & Heizung
Warum sehe ich diese Anzeige? – Du siehst diese Anzeige basierend auf Ihrer Navigation auf unserer Website und den Suchkriterien, die du verwendet hast.
Heizwärmebedarf (HWB)
69,02 kWh/(m²·a)
Gesamtenergieeffizienz (fGEE)
5,85
Weitere Energiedaten
Energieträger
Fernwärme
Heizungsart
Zentralheizung
Details
Objektbeschreibung
Allgemeine Objektbeschreibung
In einzigartiger Lage in Wiens neuem Zentrum, der Donau-City, befindet sich das neu errichtete Bürohaus "Ares Tower".
Die Nähe des Vienna International Center und des Austria Center Vienna sowie weiterer Bürohäuser wie Tech Gate Vienna unterstreichen die Bedeutung der Donau-City als...
Anbieter der Immobilie
J&P Immobilienmakler GmbH
Lehargasse 7, 1060 WIEN

Online-ID: 2vdnl3f
Referenznummer: 101/05962
Finde Angebote wie dieses
Hier geht es zu unserem Impressum, den Allgemeinen Geschäftsbedingungen, den Hinweisen zum Datenschutz und nutzungsbasierter Online-Werbung.