
Lienz Liegenschaften GmbH & Co. Engelhardt Immobilien KG
+49 ···
Nr. anzeigenPreise & Kosten
Kaution
6.480,00
Provision für Mieter
provisionsfrei
Warum sehe ich diese Anzeige? – Du siehst diese Anzeige basierend auf Ihrer Navigation auf unserer Website und den Suchkriterien, die du verwendet hast.
Lage
Die Bürofläche befindet sich im Berliner Bezirk Charlottenburg-Wilmersdorf, am Kurfürstendamm. Die weitere Verkehrsanbindung erfolgt über den S-Bahnhof „Halensee“, diverse Busverbindungen und die nahe Stadtautobahn., zahlreiche Einkaufsmöglichkeiten und hochwertige Boutiquen. In wenigen Minuten erreicht man den Zoologischen...
Büro-/Praxisfläche
Energie & Heizung
Warum sehe ich diese Anzeige? – Du siehst diese Anzeige basierend auf Ihrer Navigation auf unserer Website und den Suchkriterien, die du verwendet hast.
Weitere Energiedaten
Energieträger
Fernwärme
Details
Weitere Informationen
Objektbeschreibeinung
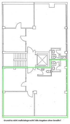
Angeboten wird hier eine Mietfläche von ca. 102,41 m².
Ideal für eine Büroeinrichtung.
Die Fläche befindet sich im 2. Obergeschoss.
Anbieter der Immobilie

Lienz Liegenschaften GmbH & Co. Engelhardt Immobilien KG
Online-ID: 2vyf34y
Finde Angebote wie dieses
Hier geht es zu unserem Impressum, den Allgemeinen Geschäftsbedingungen, den Hinweisen zum Datenschutz und nutzungsbasierter Online-Werbung.