

Ladenfläche zur MieteMietkosten auf Anfrage775 m² Verkaufsfläche • teilbar ab 100 m²
Mietkosten auf Anfrage
775 m² Verkaufsfläche • teilbar ab 100 m²
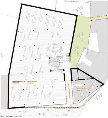
Ladenfläche 775 m² projektiert im EG (teilbar)-Front: 40 m in 07973 Greiz/Thür. in Top-Fußgängerzone
Merkmale
- Bezug: ca. im 4. Quartal 2021 bzw. nach Vereinbarung!
- Erdgeschoss
- 40 m Schaufensterfront
- Keller
- Außen-Stellplatz
- DSL-Anschluss
- Raumaufteilung flexibel
Grundrisse
Verschaffe dir einen genauen Überblick über die Raumaufteilung.

Realisiere Dein Projekt
Bausubstanz und Energie
Möchtest du Details zum Energieverbrauch?

- Baujahr2021
- Zustand der ImmobilieNeubau, Massivhaus, Projektiert
- HeizungsartZentralheizung
- EnergieträgerFernwärme
Mietkosten
Miete auf Anfrage
Provision für Mieter
Wir weisen darauf hin, dass dieses Angebot für den Erwerb provisionspflichtig ist. Im Erfolgsfall werden wir eine Mieterprovision in Höhe von 3,57 Monatskaltmieten (inkl. gesetzl. MwSt.) in Rechnung stellen - verdient und fällig bei Vertragsabschluss.
Kaution
keine Angabe
Lage

Greiz (07973)
Der Anbieter hat die genaue Adresse nicht freigegeben
Weitere Informationen
Weitere Services
Lust auf eine Besichtigung?
Eine Frage zur Immobilie?
Über den Anbieter
Sudetenstr. 28, 70736 Fellbach-Oeffingen
3 Jahre Partnerschaft + Diamond Partner

Herr Klaus FohsDein Kontakt
Online-ID: 23KWJAIGTLX7
Referenznummer: 237Portal


Fohs Immobilien Service
Bewertung: 5 von 5 Sternen
Wie zufrieden bist du mit dieser Seite (nicht mit der Immobilie selbst)?

