

Lido Home Kft
Frau Monika Horvath
003 ···
Nr. anzeigenPreise & Kosten
Provision für Käufer
Bitte beachte, das Angebot beinhaltet bei Vertragsabschluss die Zahlung einer Provision. Weitere Informationen erhältst Du vom Anbieter.
Das Grundstück
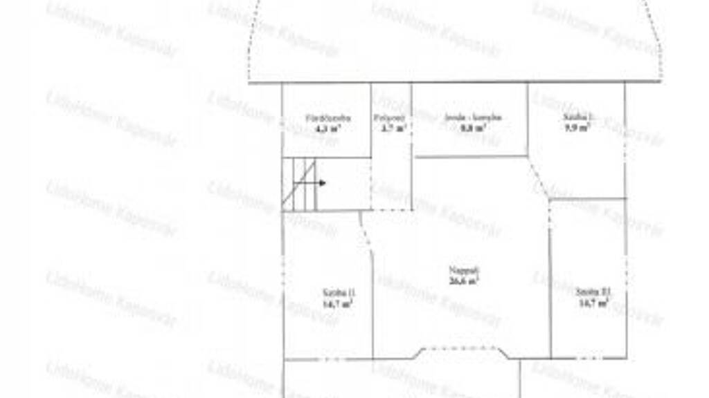
Details
Objektbeschreibung
Bei diesem Objekt handelt es sich um ein Gastronomiegewerbe in Kaposvár!
- 3 Zimmer
- Wohnzimmer
- Bad
- Küche
- Eingangshalle
- Voll ausgestattetes Restaurant
- Küchenzeile
- Serviceräume
- Lagerhäuser
- Keller
Anbieter der Immobilie
Lido Home Kft
Fo utca 162, 8600 SIÓFOK

Online-ID: 2wt5u49
Referenznummer: 163001156
Finde Angebote wie dieses
Hier geht es zu unserem Impressum, den Allgemeinen Geschäftsbedingungen, den Hinweisen zum Datenschutz und nutzungsbasierter Online-Werbung.