

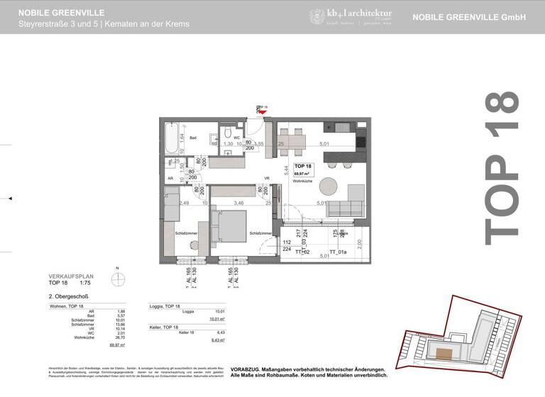
Wohnung zum Kauf - Erstbezug301000 €3.763 €/m²3 Zimmer • 70 m² • 2. Geschoss
301000 €
3.763 €/m²
3 Zimmer • 70 m² • 2. Geschoss
Exklusives Wohnen mit Weitblick im Nobile Greenville
Merkmale
- 2. Geschoss
- Barrierefrei
- Personenaufzug
- Bodenbelag: Fliesen, Holzdielen
- Loggia
Grundrisse
Grundrisse
1 / 1
Realisiere Dein Projekt
Bausubstanz und Energie
Heizwärmebedarf (HWB)
B
Gesamtenergieeffizienz (fGEE)
A+
- Baujahr2026
- Zustand der ImmobilieNeubau, Erstbezug
- HeizungsartFußbodenheizung
- EnergieträgerFernwärme, Solar
Preisdetails
Kaufpreis
301000 €
3.763,44 €/m²
Provision für Käufer
3% des Kaufpreises zzgl. 20% USt.
Lage

Kematen an der Krems (4531)
Weitere Informationen
Weitere Services
Lust auf eine Besichtigung?
Eine Frage zur Immobilie?
Über den Anbieter
OVB Allfinanzvermittlungs GmbHMaklerbüro
Sirone Straße 4/1/C, 5071 WALS B. SALZBURG
Partnerschaft
Frau Sara HufnaglDein Kontakt
Weitere Unterlagen
Online-ID: 25VUNSJLFHE6
Referenznummer: OBGC202507101658376420272961b44
OVB Allfinanzvermittlungs GmbH
Wie zufrieden bist du mit dieser Seite (nicht mit der Immobilie selbst)?

