5 Zimmer • 141 m² • 470 m² Grundstück • frei ab 02.01.2027
1 / 6
1 / 6
Einfamilienhaus zum Kauf • provisionsfrei
499000 €499.000 €
3.539 €/m²
5 Zimmer • 141 m² • 470 m² Grundstück • frei ab 02.01.2027
Ihr gutes Zuhause, mit Mietkauf II Plus ab 1.599,- EUR sorgenfrei zum Eigentum
Ihr ökologisches Fertighaus energieeffizient, nachhaltig ein Leben lang...WOLF-Haus... Wir machen Sie zum Eigenheimbesitzer, mit einer individuellen Architekturplanung genauso wie Sie es sich wünschen. Als Familienunternehmen in vierter Generation bauen wir ökologisch und wohngesund mit dem natürlichen Rohstoff Holz. Dabei verbauen wir in unserer Konstruktion ausschließlich Holz aus nachhaltiger Forstwirtschaft, das stärker ist, als es nach dem Gesetz der Statik erforderlich wäre.Das macht unsere Außenwände nicht nur äußerst stabil, sondern in hohem Maße energieeffizient und damit förderfähig.
Ihr WOLF-HAUS sorgt für ein angenehmes Raumklima und Wohlbefinden und ist für Generationen gebaut! Objektbeschreibung FF / SF Mehr als nur ein Dach und 4 Wände! Mit dem Bau eines Hauses stellen Sie die Weichen für Ihre Zukunft. Ein individuell auf Ihre Anforderung und Wünsche zugeschnittenes „Ihr gutes Zuhause“ soll auf Ihrem Grundstück entstehen, so dass dieses abgebildete Haus nur ein Beispiel für die unzähligen Möglichkeiten darstellt. Dieses Haus wird in bekannter WOLF-Haus Qualität "Fast Fertig" angeboten. Das bedeutet Sie können Ihr neues Zuhause mit einem geringen Umfang an Eigenleistung beziehen.
Natürlich ist auch eine Lieferung in der Ausstattungsvariante Schlüsselfertig gegen Kostenanpassung möglich dann sind z. B. folgende Ausstattungen zusätzlich enthalten … Inkl. im EG hochwertiges Parkett (außer Küche und Bäder) Inkl. EG und OG wird in der Qualitätsstufe Q 3 (malerfertig) gespachtelt und Spritzputz in der Farbe weiß … und, und , und Gerne beraten wir Sie mit unserem unabhängigen Finanzierungsspezialisten! Sonstiges Die hier gezeigten Hausversionen können Sonderausstattungen zeigen, die nicht in dem abgebildeten Preis enthalten sind (z. B. Erker, Gauben, Veranda, Holzverschalung, o. ä.) die Einrichtungsgegenstände sind nicht enthalten, Grundrisse sowie das äußere Erscheinungsbild können gegen Preisanpassung Ihren Wünschen und Anforderungen angepasst werden.
Merkmale
frei ab 02.01.2027
470 m² Grundstück
offene Küche
Kein Keller
Carport, Außen-Stellplatz
Bad/WC getrennt, Gäste-WC
Terrasse
Fernblick
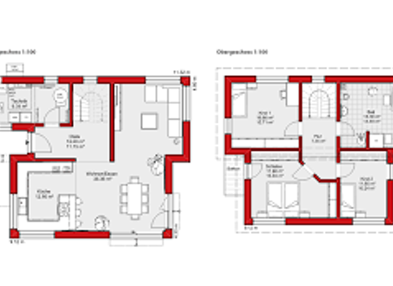
Grundrisse
Grundrisse
1 / 1
Realisiere Dein Projekt
Bausubstanz und Energie
Energieausweis
Ein Energieausweis ist für diesen Gebäudetyp nicht notwendig.
Baujahr2026
HaustypKfW 40
HeizungsartZentralheizung: Fußbodenheizung
EnergieträgerElektro, Luft-/Wasser-Wärmepumpe
Preisdetails
Kaufpreis
499000 €499.000 €
3.539,01 €/m²
Provision für Käufer
provisionsfrei
Geschätzte Gesamtkosten
538.920 €1
Kaufpreis
499.000 €
Kaufnebenkosten
39.920 €
2
Notarkosten (1,5%)
7.485 €
Grunderwerbsteuer (6%)
29.940 €
Grundbucheintrag (0,5%)
2.495 €
1Der angezeigte Wert ist eine automatisch berechnete Schätzung von immowelt.
2Bei den Angaben handelt es sich um ortsübliche Werte. Individuelle Kosten können abweichen.
Lage
Nordend, Fulda (36037)
Der Anbieter hat die genaue Adresse nicht freigegeben