Version: 8.25.1Navigation überspringen
1.100 €
3,5 Zimmer  •  92 m²  •  1. Geschoss  •  frei ab 01.06.2026
Immowelt logo

Wohnung zur Miete
1.100 €
3,5 Zimmer  •  92 m²  •  1. Geschoss  •  frei ab 01.06.2026

* Genusslage am grünen Rand von Schlösslesfeld *

* Genusslage am grünen Rand von Schlösslesfeld *

Die Lage dieser 3,5 Zimmer-Wohnung im 1. Obergeschoss eines gepflegten 6-Familienhauses wird Sie begeistern. Bei guter Anbindung an das Ludwigsburger Zentrum, sind Sie gleichzeitig in wenigen Schritten im Grünen. Die helle Wohnung überzeugt mit bodentiefen Fenstern, Fußbodenheizung, einer Tiefgarage sowie Großzügigkeit im Wohnbereich und auf dem Süd-West-Balkon.

Merkmale

  • frei ab 01.06.2026
  • 1. Geschoss
  • Balkon
  • Tiefgarage
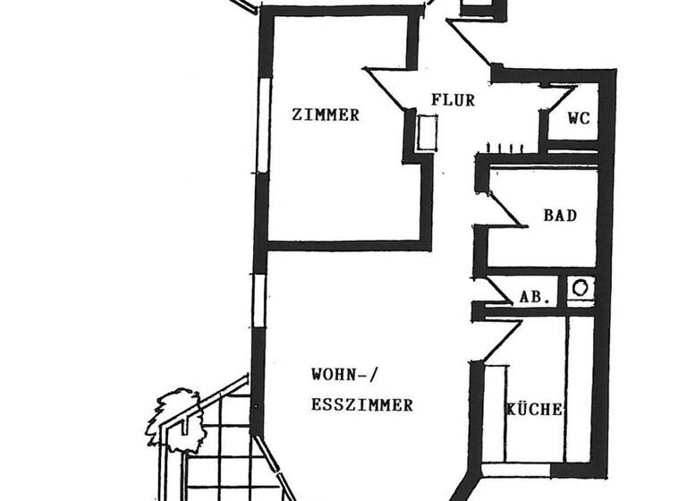
Diese schöne Wohnung ist durchgängig mit einem wertigen Parkett ausgestattet. Bad, WC und Küche sind gefliest. An den hellen und mit bodentiefen Fenstern ausgestatteten Wohnraum schließt sich die geschlossene Küche sowie der großzügige und modernisierte Süd-West-Balkon an. Die Küche ist mit einer praktischen Einbauküche ausgestattet, die Ihnen zur kostenlosen Nutzung überlassen wird. Das Bad bietet ein Waschbecken sowie Dusche und Badewanne. Das WC ist räumlich vom Bad getrennt und nutzt einen separaten Raum. Ein praktischer Abstellraum innerhalb der Wohnung sorgt für Ordnung und Stauraum.
Für Ihre Waschmaschine steht ein gemeinschaftlicher Wasch- und Trockenraum im Untergeschoss zur Verfügung. Dort befindet sich auch der zur Wohnung zugehörige Kellerraum. Ein Stellplatz in der Tiefgarage unter dem Haus wird mitvermietet. Das Objekt wird von einem Hausmeister-Service betreut. Der bevorstehende Anschluss an die Fernwärme macht Ihre Energieversorgung zukunftssicher.

Grundrisse

Grundrisse
1 / 1

Realisiere Dein Projekt

Bausubstanz und Energie

Energieausweis

C
  • Baujahr1984
  • HeizungsartFußbodenheizung
  • EnergieträgerGas
Immowelt logo

Mietkosten

Warmmiete
1.360 €
Kaltmiete
11,96 €/m²
1.100 €
Nebenkosten
200 €
Heizkosten
in Warmmiete enthalten
Zusätzliche Kosten
Miete pro Stellplatz
60 €
Kaution
2500 €
Weitere Preisinformationen
1 Tiefgaragenstellplatz, Miete: 60,00 EUR

Lage

address-icon
OstLudwigsburg (71640)
Der Anbieter hat die genaue Adresse nicht freigegeben
Der barocke Charme und die attraktive Architektur ziehen nicht nur zunehmend mehr Besucher nach Ludwigsburg, sondern machen die Stadt auch für seine über 90.000 Einwohner außergewöhnlich und sehr lebenswert. Mit seiner zentralen Lage und der guten Verkehrsanbindung gehört Ludwigsburg zu den größten Städten innerhalb der Region Stuttgart und beweist dabei auch wirtschaftlich spürbare Stärke. Damit bietet Ludwigsburg ausgesprochen gute Voraussetzungen für eine gelungene Kombination aus attraktivem Arbeitsangebot, zahlreichen Freizeitaktivitäten und hoher Lebensqualität.
Die Wohnung befindet sich am grünen Rand des Stadtteils Schlösslesfeld in sehr angenehmem Umfeld. Die Dinge des täglichen Bedarfs sind bequem fußläufig erreichbar. Zur nächsten Bushaltestelle sind es gerade einmal 3 Gehminuten, von wo Sie der Bus in ca. 10 Minuten zum schönen Ludwigsburger Marktplatz oder auch zum Bahnhof bringt. Mit eigener Grundschule, diversen Freizeiteinrichtungen und kurzen Wegen in die Natur bietet der Stadtteil Schlösslesfeld sehr gute Voraussetzung für ein lebenswertes Wohnumfeld und gehört nicht ohne Grund zu den begehrten Ludwigsburger Wohnlagen.

Weitere Informationen

Sonstiges Dieses Angebot richtet sich ausschließlich an Nichtraucher/innen und Haushalte ohne Haustiere. Die Wohnung ist ab 01.06.2026 verfügbar, nach Abstimmung auch früher.
Damit wir Sie und Ihr Interesse ein wenig kennenlernen, bitten wir Sie um eine Kontaktaufnahme per Mail und dabei um erste Informationen zu Ihnen sowie zu Ihrer Wohn- und Arbeitssituation. Nur so ist eine angemessene Berücksichtigung möglich. Bitte vergessen Sie auch die Angabe einer Telefonnummer für mögliche Rückfragen nicht. Vielen Dank.

Dieses Angebot ist freibleibend. Alle gemachten Angaben beruhen auf uns erteilten Informationen. Daher können wir keine Haftung für die Richtigkeit bzw. Vollständigkeit übernehmen, auch wenn wir uns selbstverständlich um vollständige und korrekte Angaben bemühen. Stichworte Anzahl der Schlafzimmer: 2, Anzahl der Badezimmer: 1, Anzahl der separaten WCs: 1, Anzahl Balkone: 1

Weitere Services

Lust auf eine Besichtigung?
Eine Frage zur Immobilie?
Mit einer persönlichen Nachricht hast du bessere Chancen auf eine Antwort.
Mit der Nutzung der oben angegebenen Telefonnummer oder durch Klicken auf „Kontaktieren“ akzeptierst Du die Allgemeinen Nutzungsbedingungen, denen Du jederzeit widersprechen kannst. Weitere Informationen zum Datenschutz

Über den Anbieter

Schorndorfer Str. 42, 71638 Ludwigsburg
partner badge
Partnerschaft
Herr Markus RiethDein Kontakt
Online-ID: 26283YMN7U1U
Referenznummer: 2602182
Immobilien Rieth
Immobilien Rieth
Bewertung: 5 von 5 Sternen
Mit einer persönlichen Nachricht hast du bessere Chancen auf eine Antwort.
Mit der Nutzung der oben angegebenen Telefonnummer oder durch Klicken auf „Kontaktieren“ akzeptierst Du die Allgemeinen Nutzungsbedingungen, denen Du jederzeit widersprechen kannst. Weitere Informationen zum Datenschutz
Wie zufrieden bist du mit dieser Seite (nicht mit der Immobilie selbst)?