Version: 8.26.0Navigation überspringen
350.000 €
15 Zimmer  •  599 m²  •  378 m² Grundstück

Mehrfamilienhaus zum Kauf
350000 €
584 €/m²
15 Zimmer  •  599 m²  •  378 m² Grundstück

Sanierungsobjekt mit Denkmalschutz - Einzigartige Investitionschance

Das historische Gebäude der ehemaligen Koch-Bräu befindet sich in der Brenckgasse im Herzen von Bad Windsheim. Die traditionsreiche Brauerei wurde 1869 gegründet und war bis 1975 in Betrieb.

Das Anwesen erstreckt sich über ein 378?m² großes Grundstück und steht unter Denkmalschutz, was seinen kulturellen und historischen Wert unterstreicht.

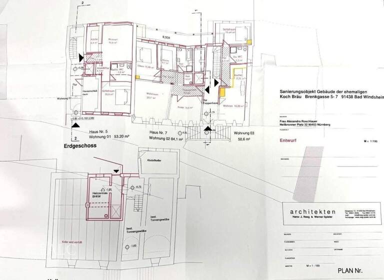
Sanierungspotenzial: Ein detaillierter Sanierungsplan liegt bereits vor und sieht die Schaffung von neun hochwertigen Wohneinheiten mit einer Gesamtwohnfläche von ca. 599?m² vor. Die geplante Aufteilung ermöglicht komfortables Wohnen in verschiedenen Größenordnungen, ideal für unterschiedliche Zielgruppen.

Fördermöglichkeiten: Dank des Denkmalschutzstatus und der Lage im Sanierungsgebiet stehen Investoren diverse Zuschüsse und Fördergelder zur Verfügung. Diese können einen erheblichen Teil der Sanierungskosten abdecken und die Rentabilität des Projekts steigern.

Parkmöglichkeiten: Für die zukünftigen Bewohner sind acht Stellplätze vorgesehen, die von der Stadt langfristig zugewiesen wurden. Dies gewährleistet ausreichende Parkmöglichkeiten in der zentralen Innenstadtlage.

Fazit: Dieses Sanierungsobjekt bietet eine seltene Kombination aus historischem Charme, zentraler Lage und attraktiven Fördermöglichkeiten. Es stellt eine hervorragende Investitionschance dar, um hochwertigen Wohnraum in einer begehrten Lage zu schaffen.

Für weitere Informationen oder zur Vereinbarung eines Besichtigungstermins stehen wir Ihnen gerne zur Verfügung.

Merkmale

  • Bezug: sofort
  • 378 m² Grundstück
  • 8 Stellplätze: 8 Außen-Stellplätze
  • Balkon
  • Denkmalschutz-Afa

Grundrisse

Grundrisse
1 / 3

Bausubstanz und Energie

Energieausweis

Ein Energieausweis ist für diesen Gebäudetyp nicht notwendig.
  • Baujahr1830
  • Zustand der Immobilierenovierungsbedürftig / sanierungsbedürftig

Preisdetails

Kaufpreis
350000 €
584,31 €/m²
Provision für Käufer
3,75 % inkl. MwSt.
Weitere Preisinformationen
8 Stellplätze
Geschätzte Gesamtkosten
381.745 €1
Kaufpreis
350.000 €
Notarkosten (1,5%)
5.250 €
Grunderwerbsteuer (3,5%)
12.250 €
Provision für Käufer (3,57%)
12.495 €
Grundbucheintrag (0,5%)
1.750 €
1Der angezeigte Wert ist eine automatisch berechnete Schätzung von immowelt.
2Bei den Angaben handelt es sich um ortsübliche Werte. Individuelle Kosten können abweichen.

Lage

address-icon
Bad Windsheim (91438)
Der Anbieter hat die genaue Adresse nicht freigegeben
Die Immobilie befindet sich in unmittelbarer Nähe zu allen wichtigen Einrichtungen des täglichen Bedarfs. Einkaufsmöglichkeiten, Restaurants, Schulen und öffentliche Verkehrsmittel sind bequem zu Fuß erreichbar. Die zentrale Lage kombiniert urbanes Leben mit dem historischen Flair von Bad Windsheim. Die historische Altstadt von Bad Windsheim beeindruckt mit fränkischen Fachwerkhäusern und Bauwerken aus Renaissance und Rokoko. Enge Gassen mit traditionellen Gastwirtschaften und modernen Cafés laden zum Bummeln und Verweilen ein. Ein besonderes kulturelles Erlebnis ist das Fränkische Freilandmuseum, das über 100 historische Gebäude präsentiert und einen Einblick in 700 Jahre fränkische Alltagsgeschichte bietet. Ein Highlight der Stadt ist die Franken-Therme, die auf einer Fläche von 17.500 m² vielfältige Entspannungsmöglichkeiten bietet.

Weitere Informationen

Sonstiges Falls Sie Wert auf eine ruhige Lage, eine durchdachte Raumaufteilung und ein gehobenes Wohnumfeld legen, könnte dieses Objekt genau das Richtige für Sie sein. Wir bieten Ihnen eine kostenlose 24/7-Hotline unter der Rufnummer 0800-6460646, über die Sie uns jederzeit erreichen können. Wenn Sie Interesse an der Immobilie haben, fordern Sie gerne das ausführliche Exposé an, das Ihnen in der Regel kurzfristig und automatisch zugesandt wird. Sollten Sie eine Besichtigung wünschen, antworten Sie am besten direkt per E-Mail auf das Exposé. Wir setzen uns umgehend mit Ihnen in Verbindung und unterbreiten Ihnen passende Terminvorschläge. Bitte geben Sie dabei stets Ihre vollständigen Kontaktdaten an. Die Objektbeschreibung basiert ganz oder teilweise auf den Angaben des Eigentümers. Für die Richtigkeit und Vollständigkeit dieser Informationen übernehmen wir keine Gewähr. Möchten auch Sie Ihre Immobilie professionell vermarkten? Dann kontaktieren Sie uns gerne! Wir stehen Ihnen täglich von Montag bis Sonntag zwischen 6:00 und 22:00 Uhr persönlich zur Verfügung. Über 200.000 aktive Interessenten warten bereits auf Ihr Angebot. Bitte beachten Sie, dass das Exposé möglicherweise unter Zuhilfenahme von Künstlicher Intelligenz (KI) erstellt oder überarbeitet wurde. Dabei wurden jedoch keine wesentlichen Merkmale verändert.

FALC Exposé Homepage - https://www.falcimmo.de/immobilie/intern-3048401.html Stichworte Stellplatz vorhanden, Nutzfläche: 599,00 m², Anzahl der Badezimmer: 6, Anzahl Balkone: 2, Bundesland: Bayern, 2 Etagen

Weitere Services

Lust auf eine Besichtigung?
Eine Frage zur Immobilie?
Nachricht hinzufügen
Mit der Nutzung der oben angegebenen Telefonnummer oder durch Klicken auf „Kontaktieren“ akzeptierst Du die Allgemeinen Nutzungsbedingungen, denen Du jederzeit widersprechen kannst. Weitere Informationen zum Datenschutz

Über den Anbieter

Laufamholzstraße 399, 90482 Nürnberg
partner badge
Partnerschaft
Herr Cono ManzioneDein Kontakt
Online-ID: 25649LNRZ3K7
Referenznummer: FALC-JuSc-66748
Wie zufrieden bist du mit dieser Seite (nicht mit der Immobilie selbst)?