Version: 8.22.6Navigation überspringen
549.000 €
1 Zimmer
Immowelt logo

Büro zum Kauf
549000 €
1 Zimmer

2 Exklusive LOFT-Büro/Atelier´s - Neubauqualität trifft Altbaucharme

Herzlich willkommen bei Immobilien Sohm,

herzlich Willkommen in Ihrem zukünftigen Business-Zuhause: Diese außergewöhnliche Einheit verbindet stilvollen Altbauflair mit modernster Technik und bestechender Raumwirkung - ein echtes Highlight für anspruchsvolle Unternehmer:innen, Kreativschaffende oder Investor:innen. Bilder sind Visualisierungen um ihnen zu zeigen wie sie ihr neues Business gestalten könnten!

DIE HIGHLIGHTS AUF EINEN BLICK:

*
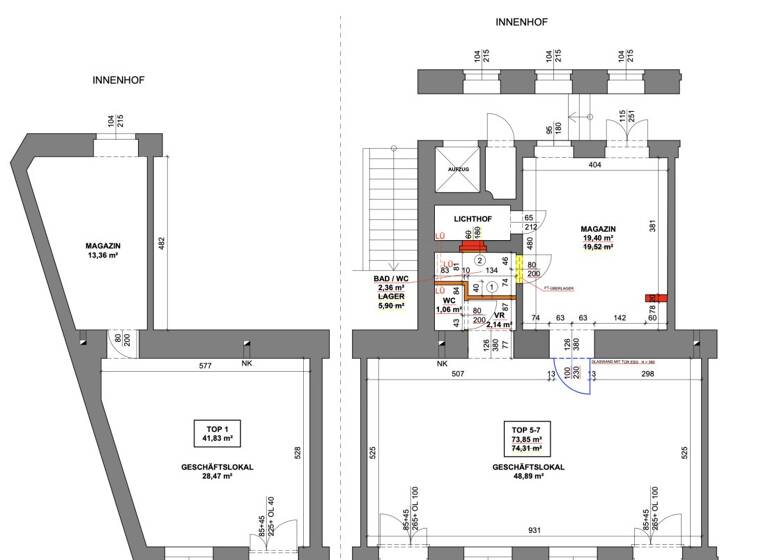
Nettonutzfläche: Top 5 & 7 ca. 74 m²

*
Nettonutzfläche: Top 1 ca. 46 m²

*
Zwei separate straßenseitige Eingänge

*
Loftartige Raumhöhen:

*
ca. 4,15 m im straßenseitigen Bereich (ca. 50 m²)

*
ca. 3,30 m im hofseitigen Bereich

*
Großzügige Fensterflächen mit neuen Isoliergläsern

*
Komplettsanierung 2025:

*
Neue Fußbodenheizung (Gas)

*
Neue Elektro- und Wasserinstallationen

*
Neue hofseitige Wiener Flügeltür

*
Bestehende straßenseitige Türen mit neuen Isolierverglasungen

*
Repräsentatives Gründerzeithaus mit stilvoller Fassade

*
Kein Gastronomiebetrieb möglich - ideal für Büro, Atelier, Praxis, Studio oder Showroom

FLEXIBLE NUTZUNG - MIT STIL UND SUBSTANZ

Die Einheit Top 05-07 ist prädestiniert für individuelle und kreative Konzepte. Die zwei separaten Eingänge bieten optimale Möglichkeiten zur Nutzung durch zwei Parteien oder zur Trennung von Kunden- und Arbeitsbereich. Die großzügige Raumhöhe schafft ein außergewöhnliches Raumgefühl und unterstreicht die offene Loft-Atmosphäre.

LAGE & UMGEBUNG

Die Immobilie befindet sich in einem gepflegten Altbau in gefragter Stadtlage. Die hervorragende Anbindung an den öffentlichen Verkehr und die Nähe zu urbaner Infrastruktur machen diesen Standort besonders attraktiv.

Öffentliche Verkehrsanbindung:

Ubahn: U4 Landstrasse

Straßenbahn: O,1,

Bus: 74A

-------------------------

Preis: EUR 549.000,- (schlüsselfertig, inkl. aller Umbauten)
Top 05-07 | 74 m² | EUR 549.000,- | Fertigstellung: Juni 2025

-------------------------

Preis: EUR 339.000,- (schlüsselfertig, inkl. aller Umbauten)
Top 01 | 46 m² | EUR 339.000,- | Fertigstellung: Juni 2025

-------------------------

Jetzt anfragen und schon heute Ihre Zukunft gestalten!
 

Noch nichts gefunden? Wir informieren Sie über geeignete Immobilienangebote noch vor allen anderen.
Legen Sie jetzt Ihren individuellen Suchagenten unter folgendem Link an. Wir schicken Ihnen passende Immobilien exklusiv vorab zu.
Suchagent anlegen [https://immobilien-sohm.service.immo/registrieren/de] - https://immobilien-sohm.service.immo/registrieren/de

Wir weisen darauf hin, dass zwischen dem Vermittler und dem zu vermittelnden Dritten ein familiäres oder wirtschaftliches Naheverhältnis besteht.

Der Vermittler ist als Doppelmakler tätig.

Infrastruktur / Entfernungen

Gesundheit
Arzt <250m
Apotheke <250m
Klinik <750m
Krankenhaus <500m

Kinder & Schulen
Schule <250m
Kindergarten <250m
Universität <500m
Höhere Schule <1.000m

Nahversorgung
Supermarkt <250m
Bäckerei <500m
Einkaufszentrum <500m

Sonstige
Geldautomat <250m
Bank <250m
Post <250m
Polizei <500m

Verkehr
Bus <250m
U-Bahn <500m
Straßenbahn <250m
Bahnhof <500m
Autobahnanschluss <2.250m

Angaben Entfernung Luftlinie / Quelle: OpenStreetMap

Merkmale

  • Bezug: Juli
  • Erdgeschoss
  • Personenaufzug
  • Gäste-WC
  • Bad mit Dusche
  • Bodenbelag: Parkett

Grundrisse

Grundrisse
1 / 1

Realisiere Dein Projekt

Bausubstanz und Energie

Heizwärmebedarf (HWB)

D

Gesamtenergieeffizienz (fGEE)

D
  • Baujahr1905
  • Zustand der ImmobilieAltbau (bis 1945), Projektiert
  • HeizungsartFußbodenheizung
  • EnergieträgerGas
Immowelt logo

Preisdetails

Kaufpreis
549000 €
Provision für Käufer
Bitte beachte, das Angebot kann bei Vertragsabschluss die Zahlung einer Provision beinhalten. Weitere Informationen erhältst Du vom Anbieter.

Lage

address-icon
SeidlgasseWien (1030)

Weitere Informationen

Stichworte Nutzfläche: 74,00 m², Anzahl der separaten WCs: 1, Bundesland: Wien Sonstiges: EDV-Verkabelung

Weitere Services

Lust auf eine Besichtigung?
Eine Frage zur Immobilie?
Nachricht hinzufügen
Mit der Nutzung der oben angegebenen Telefonnummer oder durch Klicken auf „Kontaktieren“ akzeptierst Du die Allgemeinen Nutzungsbedingungen, denen Du jederzeit widersprechen kannst. Weitere Informationen zum Datenschutz

Über den Anbieter

Immobilien SohmMaklerbüro
Stiglingen 1, 6850 DORNBIRN
partner badge
Partnerschaft
Herr Peter SohmDein Kontakt
Online-ID: 2kdr65c
Referenznummer: OBGC202506041020052224d0b55c668
Immobilien Sohm
Nachricht hinzufügen
Mit der Nutzung der oben angegebenen Telefonnummer oder durch Klicken auf „Kontaktieren“ akzeptierst Du die Allgemeinen Nutzungsbedingungen, denen Du jederzeit widersprechen kannst. Weitere Informationen zum Datenschutz
Wie zufrieden bist du mit dieser Seite (nicht mit der Immobilie selbst)?