Version: 8.25.1Navigation überspringen
329.000 €
4 Zimmer  •  138,8 m²  •  886 m² Grundstück
Immowelt logo

Einfamilienhaus zum Kauf
329000 €
2.370 €/m²
4 Zimmer  •  138,8 m²  •  886 m² Grundstück

* tolle Aufteilung * ebenerdig * unglaublicher Ausblick * mega Nachbarschaft * Sackgassenlage *

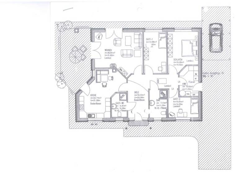
Dieser wundervolle Bungalow bietet Ihnen folgendes Raumprogramm:

Erdgeschoss:
Wohnen: ca. 26,81 qm
Küche: ca. 22.74 qm
Zimmer 1: ca. 16,26 qm
Zimmer 2: ca. 13,58 qm
Zimmer 3: ca. 10,01 qm
Bad: ca. 7,11 qm
Gäste WC: ca. 5,31 qm
HWR: ca. 8,02 qm
Diele: ca. 19 qm

Überdachte Terrasse: ca. 20 qm (davon anteilig in der Wohnfläche mit 10qm berechnet)

Carport: ca. 17 qm
Nebengebäude für Gartengeräte: ca. 10 qm

Dachgeschoss:

Hier befindet sich eine Ausbaureserve von ca. 80 qm.

Merkmale

  • 886 m² Grundstück
  • Einbauküche
  • Gäste-WC
  • Bodenbelag: Fliesen
  • Terrasse
  • Außen-Stellplatz
Highlights:

- unverbauter Ausblick über Felder, Wiesen und Weiden
- mit Einbauküche
- mit Carport mit Nebengebäude für Geräte
- mit toller Raumaufteilung
- sehr helle Räume
- super Grundriss
- breite Zimmertüren
- Jalousien komplett in jedem Raum
- Fußbodenerwärmung (teilweise)
- Anschluss für Kaminofen vorhanden
- Abstellraum direkt von der Küche aus erreichbar
- eine eingebaute Erhöhung im HWR für Waschmaschine und Trockner
- zwei Eingänge (Vordereingang vorne und Seiteneingang beim Carport)
- ebenerdig
- Sackgassenlage
- sehr gute Nachbarschaft

Grundrisse

Grundrisse
1 / 1

Realisiere Dein Projekt

Bausubstanz und Energie

Energieausweis

E
  • Baujahr2006
  • Zustand der ImmobilieGepflegt
Immowelt logo

Preisdetails

Kaufpreis
329000 €
2.369,63 €/m²
Provision für Käufer
4 % vom Kaufpreis zzgl. 19 % MwSt
Weitere Preisinformationen
1 Stellplatz
Geschätzte Gesamtkosten
363.775 €1
Kaufpreis
329.000 €
Notarkosten (1,5%)
4.935 €
Grunderwerbsteuer (5%)
16.450 €
Provision für Käufer (3,57%)
11.745 €
Grundbucheintrag (0,5%)
1.645 €
1Der angezeigte Wert ist eine automatisch berechnete Schätzung von immowelt.
2Bei den Angaben handelt es sich um ortsübliche Werte. Individuelle Kosten können abweichen.

Lage

address-icon
HoltgasteJemgum (26844)
Der Anbieter hat die genaue Adresse nicht freigegeben
Die Immobilie befindet sich in ruhiger und ländlich geprägter Wohnlage im Ortsteil Holtgaste der Gemeinde Jemgum in Ostfriesland. Die Straße, in der sich die Immobilie befindet, ist eine verkehrsarme Wohnstraße, die vor allem durch Einfamilienhäuser und landwirtschaftlich geprägte Flächen charakterisiert ist. Hier genießen Sie eine angenehme Wohnruhe sowie viel Natur in unmittelbarer Umgebung.

Die idyllische Lage bietet ideale Voraussetzungen für Menschen, die naturnah wohnen möchten. Weite Wiesen, Felder sowie typische ostfriesische Landschaften prägen das Umfeld und laden zu Spaziergängen, Fahrradtouren und Erholung im Freien ein. Gleichzeitig ist die Nähe zur Emsregion besonders reizvoll und unterstreicht den ländlichen Charme dieser Wohnlage.

Trotz der ruhigen Umgebung sind die Dinge des täglichen Bedarfs gut erreichbar. Einkaufsmöglichkeiten, Ärzte, Schulen und weitere Einrichtungen befinden sich im nahegelegenen Ortskern von Jemgum sowie in der Stadt Leer (Ostfriesland), die in kurzer Fahrzeit erreichbar ist. Dort finden sich auch ein vielfältiges gastronomisches Angebot, kulturelle Einrichtungen sowie ein attraktiver Hafenbereich.

Durch die gute Anbindung an das regionale Straßennetz sind auch umliegende Orte und Städte schnell erreichbar. Somit verbindet die Lage auf angenehme Weise ruhiges, naturnahes Wohnen mit einer guten Erreichbarkeit der regionalen Infrastruktur.

Weitere Informationen

Sonstiges Es liegt ein Energieverbrauchsausweis vor.
Dieser ist gültig bis 4.3.2036.
Endenergieverbrauch beträgt 145.40 kwh/(m²*a).
Wesentlicher Energieträger der Heizung ist Gas.
Das Baujahr des Objekts lt. Energieausweis ist 2005.
Die Energieeffizienzklasse ist E.

*** BITTE SCHICKEN SIE UNS EINE E-Mail, DAMIT WIR IHRE ANFRAGE BERÜCKSICHTIGEN KÖNNEN !!!! ****

Ihr Ansprechpartner
Hartwig Leemhuis
RE/MAX Immo-Team

hartwig.leemhuis@remax.de
Tel.: 0491 997568-10

Provision: 4,76 % vom Kaufpreis inkl. 19% MwSt.

Impressum:
Vertretungsberechtigter:Hartwig Leemhuis
Berufsaufsichtsbehörde:nach § 34c GewO: IHK für Ostfriesland und Papenburg, Postfach 1752, 26697 Emden
USt.ID:DE 246581814 Stichworte Nutzfläche: 10,00 m², Anzahl der Schlafzimmer: 3, Anzahl der Badezimmer: 1, Anzahl Terrassen: 1, Bundesland: Niedersachsen

Weitere Services

Lust auf eine Besichtigung?
Eine Frage zur Immobilie?
Nachricht hinzufügen
Mit der Nutzung der oben angegebenen Telefonnummer oder durch Klicken auf „Kontaktieren“ akzeptierst Du die Allgemeinen Nutzungsbedingungen, denen Du jederzeit widersprechen kannst. Weitere Informationen zum Datenschutz

Über den Anbieter

Hauptstraße 56, 26122 Oldenburg
partner badge
10 Jahre Partnerschaft
Herr Hartwig LeemhuisDein Kontakt
Online-ID: 26A5QB6RXV39
Referenznummer: 1057-505-HaLe
RE/MAX ImmobilienProfis
RE/MAX ImmobilienProfis
Bewertung: 4 von 5 Sternen
Nachricht hinzufügen
Mit der Nutzung der oben angegebenen Telefonnummer oder durch Klicken auf „Kontaktieren“ akzeptierst Du die Allgemeinen Nutzungsbedingungen, denen Du jederzeit widersprechen kannst. Weitere Informationen zum Datenschutz
Wie zufrieden bist du mit dieser Seite (nicht mit der Immobilie selbst)?