Version: 8.24.0Navigation ĂĽberspringen
Schwabenhaus Schwarzwald - Fabian Schwendemann - Handelsvertreter fĂĽr die Schwabenhaus GmbH
459.902 €
3 Zimmer  â€˘  117 m²  â€˘  287 m² GrundstĂĽck

Doppelhaushälfte zum Kauf • provisionsfrei
459902 €
3.931 €/m²
3 Zimmer  â€˘  117 m²  â€˘  287 m² GrundstĂĽck

Bauen mit Vertrauen: Die Zukunft fĂĽr Ihre Familie

Herzlich willkommen in Ihrer harmonischen Oase! Diese Immobilie wurde sorgfältig gestaltet, um ein Gefühl von Ruhe und Ausgeglichenheit zu vermitteln. Jedes Detail strahlt zeitlose Eleganz aus und schafft eine wohltuende Atmosphäre für Ihren Alltag.

Merkmale

  • 287 m² GrundstĂĽck
  • Gäste-WC
Die Ausbaustufe Fastvollendet bietet eine perfekte Mischung aus hochwertiger Grundausstattung und der Flexibilität, persönliche Akzente zu setzen. Diese Ausbaustufe ermöglicht es den Bauherren, ihr Traumhaus mit Eigenleistungen zu gestalten, ohne dabei auf die Vorteile eines durchdachten Grundkonzepts zu verzichten.

Jedes Schwabenhaus verfügt standardmäßig über:
- Mögliche KFW QNG/KFN Zertifizierung (Energieberater/ Ökobilanz inklusive)
- Variable Wärmepumpen-Technik. (Luft/Wasser; Doppel-Wärmepumpe; Erdwärme;...)
- Zentrale kontrollierte Wohnraum Be- und Entlüftung mit Wärmerückgewinnung
- 3-Scheiben-Wärmeschutzglas
- elektrische Rollladensteuerung*
- Smart-Home-Technologie: Intelligentes Gebäude-Management für die Licht- und Rollladen-Steuerung*
- Schwimmender Estrich mit Wärmedämmung
- 10 Jahre Gewährleistung nach BGB (üblich: 5 Jahre) und 30 Jahre Garantie auf die Grundkonstruktion

Mögliche Eigenleistungen:
- Spachtel und Malerarbeiten
- Wand,- Bodenfliesen + Sanitärobjekte
- Innentüren und/oder Bodenbeläge


Diesem Angebot liegt die beliebte Schwabenhaus-Ausbaustufe "Fast-Vollendet" zugrunde. Diese kann selbstverständlich noch entsprechend Ihrer geplanten Eigenleistungen angepasst werden.

*In Verbindung mit dem Technologie + Komfort-Paket "Blue-Edition"

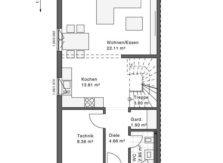
Grundrisse

Grundrisse
1 / 2

Realisiere Dein Projekt

Bausubstanz und Energie

Der Anbieter hat keine Informationen zum Energieverbrauch bereit gestellt.
  • Zustand der ImmobilieNeubau, Projektiert
  • HeizungsartFuĂźbodenheizung

Preisdetails

Kaufpreis
459902 €
3.930,79 €/m²
Provision für Käufer
provisionsfrei
Geschätzte Gesamtkosten
492.096 €1
Kaufpreis
459.902 €
Notarkosten (1,5%)
6.899 €
Grunderwerbsteuer (5%)
22.995 €
Grundbucheintrag (0,5%)
2.300 €
1Der angezeigte Wert ist eine automatisch berechnete Schätzung von immowelt.
2Bei den Angaben handelt es sich um ortsübliche Werte. Individuelle Kosten können abweichen.

Lage

address-icon
Hecklingen, Kenzingen (79341)
Der Anbieter hat die genaue Adresse nicht freigegeben
Attraktives Baugrundstück in Kenzingen-Hecklingen für eine Doppelhaushälfte. Grundstücksfläche ca. 286 m² in ruhiger Lage.

Weitere Informationen

Sonstiges Zzgl. Kauf-Nebenkosten und Bau-Nebenkosten.

Bitte senden Sie uns eine schriftliche Anfrage über die Nachrichtenfunktion, wir werden Sie schnellstmöglich kontaktieren. Deshalb achten Sie bei Ihrer Anfrage bitte auf die Vollständigkeit und Richtigkeit Ihrer Daten, insbesondere auf die Angabe einer Telefonnummer.
Anfragen zur genauen Adresse des Objektes beantworten wir ihnen dann umgehend.

Anbauteile, Carport, Garage und Keller können Extras sein, die als Sonderausstattung angeboten werden. Abbildungen, Grundrisse und Flächenangaben sind beispielhaft und können Extras zeigen. Flächenangaben nach DIN 277.

Profitieren Sie jetzt von der Schwabenhaus Online Beratung und verwirklichen Sie Ihr Traumhaus https://www.schwabenhaus.de/anmeldung-hausbau-beratung-online/ Stichworte Anzahl der Schlafzimmer: 3, Anzahl der Badezimmer: 1, Anzahl der separaten WCs: 1

Weitere Services

Lust auf eine Besichtigung?
Eine Frage zur Immobilie?
Nachricht hinzufĂĽgen
Mit der Nutzung der oben angegebenen Telefonnummer oder durch Klicken auf „Kontaktieren“ akzeptierst Du die Allgemeinen Nutzungsbedingungen, denen Du jederzeit widersprechen kannst. Weitere Informationen zum Datenschutz

Ăśber den Anbieter

Fischergasse 4/1, 77743 Altenheim
partner badge
Partnerschaft
Herr Fabian Schwendemann
Herr Fabian SchwendemannDein Kontakt
Online-ID: 2nxyl5n
Referenznummer: SH-371536-Kenzingen
Schwabenhaus Schwarzwald - Fabian Schwendemann - Handelsvertreter fĂĽr die Schwabenhaus GmbH
title
Schwabenhaus Schwarzwald - Fabian Schwendemann - Handelsvertreter fĂĽr die Schwabenhaus GmbH
Bewertung: 5 von 5 Sternen
Nachricht hinzufĂĽgen
Mit der Nutzung der oben angegebenen Telefonnummer oder durch Klicken auf „Kontaktieren“ akzeptierst Du die Allgemeinen Nutzungsbedingungen, denen Du jederzeit widersprechen kannst. Weitere Informationen zum Datenschutz
Wie zufrieden bist du mit dieser Seite (nicht mit der Immobilie selbst)?