
KockvanBenthem Makler
Herr Henk Walda
004 ···
Nr. anzeigenPreise & Kosten
Provision für Käufer
2,75% von Kaufpreis Incl. 19% MwSt.
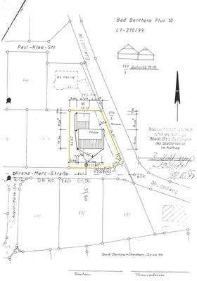
Lage
Willkommen in Bad Bentheim - einem charmanten Fleckchen Erde, das perfekt für junge Familien und Abenteurer ist, die die Nähe zur Natur und zur Grenze lieben! Dein neues Einfamilienhaus liegt nur einen Katzensprung von den Niederlanden entfernt. Ein kleiner Roadtrip über die Grenze? Kein Problem, in nur 10 Minuten kannst du...
Das Haus
Kategorie
Einfamilienhaus
Baujahr
2000
Bezug
Nach Vereinbarung
Energie & Heizung
Warum sehe ich diese Anzeige? – Du siehst diese Anzeige basierend auf Ihrer Navigation auf unserer Website und den Suchkriterien, die du verwendet hast.
Energieausweistyp
Bedarfsausweis
Gebäudetyp
Wohngebäude
Baujahr laut Energieausweis
2000
Wesentliche Energieträger
ERDGAS_LEICHT
Gültigkeit
bis 22.05.2035
Endenergiebedarf
67,84 kWh/(m²·a)
Weitere Energiedaten
Energieträger
Gas
Heizungsart
Zentralheizung
Details
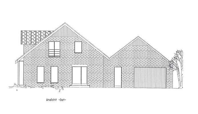
Objektbeschreibung
Willkommen in deinem potenziellen neuen Zuhause! Dieses charmante Einfamilienhaus in Bad Bentheim wartet darauf, von dir entdeckt zu werden. Errichtet im Jahr 2000, präsentiert sich die Immobilie in einem gepflegten Zustand und bietet dir mit rund 168 m² Wohnfläche genügend Raum für deine Träume. Auf einem großzügigen...
Ausstattung
Du hast Lust auf ein neues Zuhause, das mit einer Garage für Auto oder Fahrrad überrascht? Dann bist du hier genau richtig! Hier gibt's eine praktische Zentralheizung, die den ganzen Ort mit wohliger Wärme versorgt - und das ganz bequem mit umweltfreundlichem Gas. Egal ob kalte Wintertage oder regnerische Herbstabende, hier...
Preisinformation
2 Stellplätze
1 Garagenstellplatz
Weitere Informationen
Sonstiges
Verfügbarkeit: Nach Vereinbarung
Kaufpreis: 530.000 €
Maklergebühr: 2,75% des Kaufpreises, inklusive 19% MwSt.
Wohnfläche: 167 qm
Grundstücksgröße: 653 qm
ENERGIEAUSWEIS
Datum: 22.05.2025
Gültig bis: 22.05.2035
Ausweisart: Verbrauch
Gebäudeart:...
Anbieter der Immobilie
KockvanBenthem Makler
Apotheker-Drees-Straße 1, 48455 Bad Bentheim
Online-ID: 2m72k5f
Referenznummer: 86
Finde Angebote wie dieses
Hier geht es zu unserem Impressum, den Allgemeinen Geschäftsbedingungen, den Hinweisen zum Datenschutz und nutzungsbasierter Online-Werbung.