

Sonstiges zum Kauf • provisionsfrei1550000 €
1550000 €
Kapitalanlage: Tagespflege & Sozialstation mit langfristigem Mietvertrag sichern, inkl. Stellplätze
Merkmale
- Bezug: Bezugsfertig
- Keller
- Gäste-WC
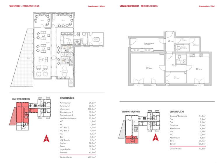
Grundrisse
Grundrisse
1 / 1
Realisiere Dein Projekt
Bausubstanz und Energie
Energieausweis
Endenergiebedarf (Wärme)
- Baujahr2024
- EnergieträgerPellets
Preisdetails
Kaufpreis
1550000 €
Provision für Käufer
provisionsfrei
Geschätzte Gesamtkosten
1.550.000 €1
Kaufpreis
1.550.000 €
1Der angezeigte Wert ist eine automatisch berechnete Schätzung von immowelt.
Lage

Schlossplatz -, Immendingen (78194)
Weitere Informationen
Weitere Services
Lust auf eine Besichtigung?
Eine Frage zur Immobilie?
Ăśber den Anbieter
Werner Wohnbau GmbH &Co.KGMaklerbĂĽro
Johann-Liesenberger-Str. 11/1, 78078 Niedereschach
Partnerschaft
Werner Wohnbau GmbH & Co. KGDein Kontakt
Online-ID: 2ljk854
Referenznummer: 2469

Werner Wohnbau GmbH &Co.KG
Wie zufrieden bist du mit dieser Seite (nicht mit der Immobilie selbst)?

