Version: 8.25.1Navigation überspringen
IM Lifestyle Properties GmbH
975.000 €

Bar/Café zum Kauf
975000 €

6,03 % Rendite! Attraktives Geschäftslokal nahe Belvedere

_Im Falle der Notwendigkeit einer Fremdfinanzierung Ihrer Wunschimmobilie ermittelt unser Wohnbau-Finanzierungsexperte gerne die optimale Finanzierungslösung und findet das passende Zins- und Konditionsangebot für Sie. Er vergleicht die aktuellen Angebote aller relevanten Banken und Bausparkassen. Der Angebotsvergleich kann aus einem Portfolio von über 120 Banken erfolgen. Das Erstgespräch ist für Sie kostenfrei und unverbindlich, gerne auch bei Ihnen vor Ort. So sparen Sie Ihre wertvolle Zeit und erhalten eine professionelle und unabhängige Finanzierungslösung vom Spezialisten. Sprechen Sie uns wegen eines Termins gerne an!_

 

Zum Verkauf gelangt ein großzügiges Geschäftslokal im 4. Wiener Gemeindebezirk nahe dem Schloss Belvedere.

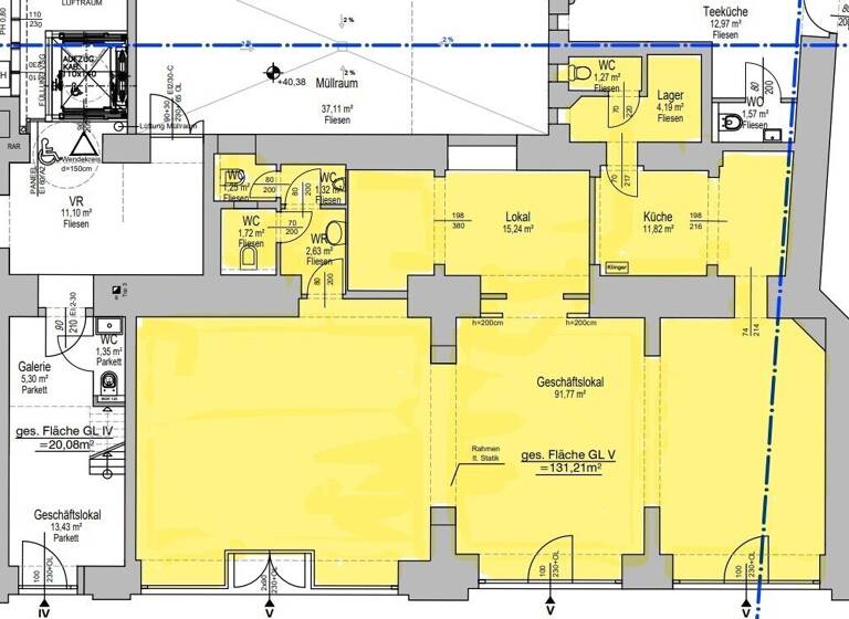
Das Lokal befindet sich in einem im Jahre 1900 erbauten Gebäudes und erstreckt sich über eine Fläche von ca. 181 m². Die Fläche teilt sich auf in ca. 131 m² Geschäftsfläche + ca. 50 m² Lager. Die Geschäftsfläche teilt sich außerdem auf in einen Hauptraum, 1 Küche, 1 Lager, sowie 4 WCs. Die Räumlichkeiten befinden sich in einem äußerst gepflegten Zustand. Beheizt wird die Immobilie mittels Gasetagenheizung.

Aktuell wird die Geschäftsfläche bereits vermietet. Der Jahresnettomietertrag beträgt ca. € 56.580,36. Dies ergibt eine unglaubliche Rendite von ca. 6,03 %.

Die Lage und Infrastruktur des Geschäftslokal ist ausgezeichnet. Diverse Geschäfte des täglichen Bedarfs, sowie Banken und Apotheken sind fußläufig zu erreichen. Die Anbindung an den öffentlichen Nahverkehr ist durch die U-Bahn Linie U1, sowie den Hauptbahnhof gegeben.

Gerne lassen wir Ihnen bei ernsthaftem Interesse - vor Kaufanbotlegung - weitere vertraulichen Dokumente zu dieser Liegenschaft zukommen, welche nicht veröffentlicht werden dürfen.

Überzeugen Sie sich selbst von diesem überaus attraktiven Objekt. Für Besichtigungen und nähere Informationen stehen wir Ihnen gerne zur Verfügung!

Mag. Viola Wasmuth
national - Tel: 0670 4039361 [tel:06704039361]
international - Tel: +43 670 4039361 [/+436704039361]
e-mail: wasmuth@lifestyle-properties.at

 

 

 

Wir weisen darauf hin, dass zwischen dem Vermittler und dem zu vermittelnden Dritten ein familiäres oder wirtschaftliches Naheverhältnis besteht.

Der Vermittler ist als Doppelmakler tätig.

 

 

Infrastruktur / Entfernungen

Gesundheit
Arzt <500m
Apotheke <500m
Klinik <500m
Krankenhaus <1.500m

Kinder & Schulen
Schule <500m
Kindergarten <500m
Universität <1.000m
Höhere Schule <1.000m

Nahversorgung
Supermarkt <500m
Bäckerei <500m
Einkaufszentrum <1.000m

Sonstige
Geldautomat <500m
Bank <500m
Post <500m
Polizei <500m

Verkehr
Bus <500m
U-Bahn <500m
Straßenbahn <500m
Bahnhof <500m
Autobahnanschluss <2.000m

Angaben Entfernung Luftlinie / Quelle: OpenStreetMap

Grundrisse

Grundrisse
1 / 2

Realisiere Dein Projekt

Bausubstanz und Energie

Möchtest du Details zum Energieverbrauch?info_energy_calculation-icon
  • Baujahr1900
  • Zustand der ImmobilieAltbau (bis 1945), Gepflegt
MediumRectangleTop

Preisdetails

Kaufpreis
975000 €
Provision für Käufer
3% des Kaufpreises zzgl. 20% USt.

Lage

address-icon
Wien (1040)

Weitere Informationen

Stichworte Nutzfläche: 181,15 m², Bundesland: Wien

Weitere Services

Lust auf eine Besichtigung?
Eine Frage zur Immobilie?
Nachricht hinzufügen
Mit der Nutzung der oben angegebenen Telefonnummer oder durch Klicken auf „Kontaktieren“ akzeptierst Du die Allgemeinen Nutzungsbedingungen, denen Du jederzeit widersprechen kannst. Weitere Informationen zum Datenschutz

Über den Anbieter

Stock-im-Eisen-Platz 3/26, 1010 WIEN
Frau Viola WasmuthDein Kontakt
Online-ID: 24AFX2VMZN1L
Referenznummer: OBGC202407241815441513368f9aff3
IM Lifestyle Properties GmbH
IM Lifestyle Properties GmbH
Nachricht hinzufügen
Mit der Nutzung der oben angegebenen Telefonnummer oder durch Klicken auf „Kontaktieren“ akzeptierst Du die Allgemeinen Nutzungsbedingungen, denen Du jederzeit widersprechen kannst. Weitere Informationen zum Datenschutz
MediumRectangleTop
MediumRectangleBottom
MediumRectangleTop
Wie zufrieden bist du mit dieser Seite (nicht mit der Immobilie selbst)?