Version: 8.25.1Navigation überspringen
9,50 €
416 m² Bürofläche
Immowelt logo

Bürofläche zur Miete
9,50 €
/m²
416 m² Bürofläche

Günstig - praktisch - hell - bestens angebunden - IHR NEUES BÜRO IN LINZ

Kurzbeschreibung Günstig - praktisch - hell - bestens angebunden - IHR NEUES BÜRO IN LINZ Objekt Günstig - praktisch - hell - bestens angebunden - IHR NEUES BÜRO IN LINZ

Diese hellen und angenehmen Büros liegen in bester Infrastruktur nahe der Herz-Jesu-Kirche.

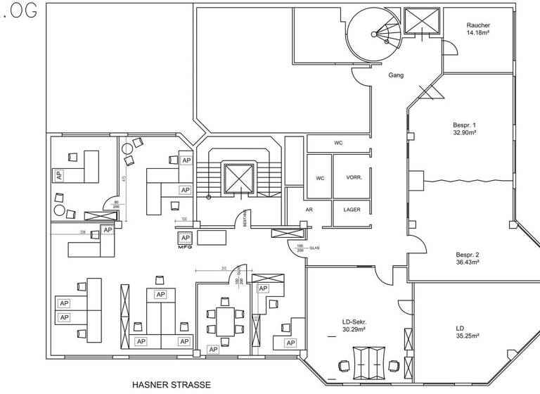
Die aktuelle Aufteilung bietet 10 Räume, die nach Bedarf anders aufgeteilt werden können, sowie eine schöne große Küche mit Aufenthaltsraum und Sanitärräume.

Derzeit ist die Fläche mit dem 1.OG mittels einer Wendeltreppe verbunden, die entfernt werden kann. Optional kann aber auch das Büro im 1.OG mit ca. 400 m² zusätzlich angemietet werden.

Alternativ sind alle Einheiten über das allgemeine Stiegenhaus und den Lift erreichbar.

BESTENS ANGEBUNDEN - fußläufig erreichbar sind:

Straßenbahnhaltestelle 1 Minute entfernt, Autobahnanschluß Wiener Straße 1 Minute entfernt, Nahversorger wie z.B. BILLA und Bäckerei ebenfalls nur 2 Minuten entfernt.

Fragen Sie jetzt an und sichern Sie sich Ihre günstigen Büroräume!

Merkmale

  • 2. Geschoss
  • voll klimatisiert

Grundrisse

Grundrisse
1 / 1

Realisiere Dein Projekt

Bausubstanz und Energie

Heizwärmebedarf (HWB)

C

Gesamtenergieeffizienz (fGEE)

C
  • Baujahr1977
  • Zustand der ImmobilieGepflegt
  • HeizungsartZentralheizung
Immowelt logo

Mietkosten

Gesamtmiete
4.741,84 €
Nettokaltmiete zzgl. Betriebskosten
9,50 €/m²
3.951,53 €
Umsatzsteuer
790,31 €
Provision für Mieter
Bitte beachte, das Angebot kann bei Vertragsabschluss die Zahlung einer Provision beinhalten. Weitere Informationen erhältst Du vom Anbieter.
Kaution
3-6 BMM
Weitere Preisinformationen
Nettokaltmiete: 3.951,53 EUR

Lage

address-icon
WaldeggLinz (4020)
Der Anbieter hat die genaue Adresse nicht freigegeben
Die Liegenschaft befindet sich in zentraler Stadtlage entlang der Wiener Straße, einer der wichtigsten Verkehrs- und Geschäftsachsen von Linz. Das Umfeld zeichnet sich durch eine sehr gute Nahversorgung mit zahlreichen Einkaufsmöglichkeiten, Gastronomiebetrieben sowie Dienstleistungsangeboten aus.

Die Anbindung an den öffentlichen Verkehr ist ausgezeichnet: Straßenbahn- und Bushaltestellen befinden sich in unmittelbarer Nähe und ermöglichen eine rasche Verbindung in die Linzer Innenstadt sowie zum Hauptbahnhof.

Weitere Informationen

Sonstiges Wir sind eine Tochtergesellschaft der ÖRAG-Österreichische Realitäten AG, Wien, genannt ÖRAG, und es besteht daher unter Umständen ein sonstiges wirtschaftliches Naheverhältnis im Sinne des Maklergesetzes zur ÖRAG und ihren anderen Tochtergesellschaften in Österreich. Das Naheverhältnis zur ÖRAG ergibt sich zB aus der Tatsache, dass die ÖRAG das Objekt für den Eigentümer verwaltet. Es kann aber auch ein wirtschaftliches Naheverhältnis im Sinne des Maklergesetzes zum Auftraggeber, also dem bzw. den Eigentümern bestehen, wenn wir laufend bzw. regelmäßig für diesen Auftraggeber als Makler tätig werden. Sollten Sie diesbezüglich Fragen haben oder eine weitere Aufklärung wünschen, wenden Sie sich bitte direkt an unseren Mitarbeiter.
Die ÖRAG Immobilien Vermittlung GmbH wird als Doppelmakler tätig.
Weitere Immobilien finden Sie auf unserer Website www.oerag.at. Stichworte Gesamtfläche: 415,95 m², Bundesland: Oberösterreich, Distanz zum Kindergarten: 0.22, Distanz zur Grundschule: 0.06, Distanz zur nächsten Einkaufsmöglichkeit: 1.80, Distanz zum Gymnasium: 0.51, Distanz zum Flughafen: 9.69, Distanz zur Autobahn: 0.47, Distanz zum Bus: 0.08, Distanz vom Zentrum: 2.39, Distanz zur Hauptschule: 0.09

Weitere Services

Lust auf eine Besichtigung?
Eine Frage zur Immobilie?
Nachricht hinzufügen
Mit der Nutzung der oben angegebenen Telefonnummer oder durch Klicken auf „Kontaktieren“ akzeptierst Du die Allgemeinen Nutzungsbedingungen, denen Du jederzeit widersprechen kannst. Weitere Informationen zum Datenschutz

Über den Anbieter

Franz-Josef-Straße 15, 5020 SALZBURG
Herr Rainer KutscheraDein Kontakt
Online-ID: 26S9IFVNLSYR
Referenznummer: 505260223_3
Örag Immobilien West GmbH
Örag Immobilien West GmbH
Bewertung: 5 von 5 Sternen
Nachricht hinzufügen
Mit der Nutzung der oben angegebenen Telefonnummer oder durch Klicken auf „Kontaktieren“ akzeptierst Du die Allgemeinen Nutzungsbedingungen, denen Du jederzeit widersprechen kannst. Weitere Informationen zum Datenschutz
Wie zufrieden bist du mit dieser Seite (nicht mit der Immobilie selbst)?