Version: 8.25.1Navigation überspringen
434.900 €
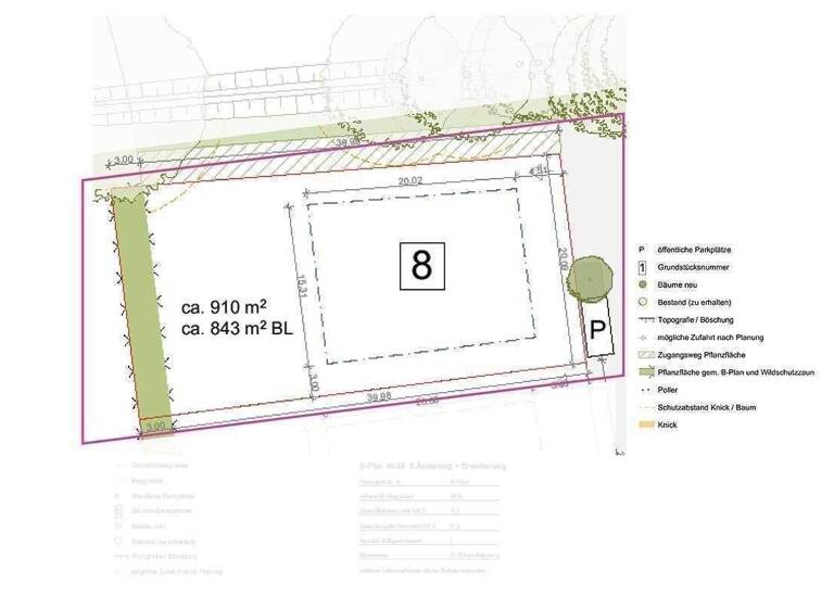
910 m² Grundstück
Immowelt logo

Grundstück zum Kauf • provisionsfrei
434900 €
478 €/m²
910 m² Grundstück

Ihr Traumgrundstück mit gewachsener Infrastruktur

Willkommen im Neubaugebiet „Am Trotz 2“

-Im schönen Henstedt-Ulzburg entstehen insgesamt 12 attraktive Baugrundstücke – perfekt für alle zukünftigen Eigentümer, die Wohnen im Grünen mit guter Anbindung verbinden möchten.
-Durch die teilweise leicht abfallende Hanglage ergeben sich spannende Gestaltungsmöglichkeiten – jedes Haus bekommt seinen ganz eigenen Charakter.

-Die neue Straße wird in zwei Bauabschnitten fertiggestellt.
-Zuerst entsteht eine asphaltierte Baustraße mit allen wichtigen Versorgungsleitungen (Wasser, Strom, Telekommunikation, Abwasser). Die endgültige, gepflasterte Straße mit Parkplätzen und Pflasterarbeiten folgt bis spätestens Sommer 2030.

-Über den Baugrund liegt ein Gutachten vor. Weitere Baugrunduntersuchungen einschließlich einer Gründungsberatung können vorgenommen werden

-Regenwasser wird dezentral auf den Grundstücken versickert – zum Beispiel über Mulden, Rigolen oder Schächte.

-Für Strom, Wasser und Abwasser ist alles vorbereitet – die Anschlüsse liegen bereit. Anträge und Herstellungskosten für Strom und Frischwasser sind vom Erwerber zu tragen.

-Schächte für die Schmutzwasserentsorgung sind gemäß Abwassersatzung der Kommune bzw. des Kanalbetreibers durch den Erwerber auf dem eigenen Grundstück herzustellen.

-Die Straße wird von standortgerechten Laubbäumen begleitet – diese sind hübsch eingefasst mit Betonrandsteinen.

-Beachten Sie hinsichtlich der Bebaubarkeit die Festsetzung des Bebauungsplans Nr.38, 5. Änderung + Ergänzung der Gemeinde Henstedt-Ulzburg und die Baunutzungsverordnung in der aktuellen Fassung.

-Auf den Grundstücken 8–12 sind zusätzlich Pflanzstreifen mit Bäumen und Sträuchern vorgesehen, die langfristig erhalten und gepflegt werden sollen. So bleibt das Quartier grün und lebendig.

Merkmale

  • 910 m² Grundstück
  • voll erschlossen
  • Strom, Telekommunikation, Wasser

Grundrisse

Grundrisse
1 / 2

Realisiere Dein Projekt

Bausubstanz und Energie

Möchtest du Details zum Energieverbrauch?info_energy_calculation-icon
Immowelt logo

Preisdetails

Kaufpreis
434900 €
477,91 €/m²
Provision für Käufer
provisionsfrei
Geschätzte Gesamtkosten
434.900 €1
Kaufpreis
434.900 €
1Der angezeigte Wert ist eine automatisch berechnete Schätzung von immowelt.

Lage

address-icon
Am TrotzHenstedt-Ulzburg (24558)
Genießen Sie die Natur in vollen Zügen. Die Nähe zu zentralen Einrichtungen der Versorgung und der sozialen Infrastruktur stellt ebenso eine besondere Attraktivität der Fläche dar.

• schnelle Anbindung an die A7, Hamburg-City in ca. 45 Automin.
• gutes öffentliches Nahverkehrsnetz: Bus, AKN mit P+R Parkplatz, HVV Hop
• krisenunabhängige Arbeitsplätze durch ansässige Klein- und Großunternehmen
• gute Infrastruktur: Geschäfte, Dienstleister in wenigen Autominuten
(Gewerbepark Nord)
• Ärztehaus und Shopping-Mall (CCU)
• ausgeprägte Vereins- und Sportlandschaft, Jugendeinrichtungen
• KiTas, Grund-, Mittel- und weiterführende Schulen, Freibad mit dem Fahrrad erreichbar

Weitere Informationen

Besichtigungstermine Unsere aktuellen Besichtigungstermine finden Sie auf unserer Website unter der Rubrik Besichtigungen:
https://www.manke-bau.de/besichtigungen/kaufobjekte/

Gern stimmen wir auch individuelle Besichtigungstermine mit Ihnen ab. Bitte kontaktieren Sie hierfür unser Büro:
E-Mail: info@manke-bau.de
Telefon: +49 4193 901151
oder nutzen Sie das Kontaktformular auf unserer Website:
www.manke-bau.de

Weitere Services

Lust auf eine Besichtigung?
Eine Frage zur Immobilie?
Nachricht hinzufügen
Mit der Nutzung der oben angegebenen Telefonnummer oder durch Klicken auf „Kontaktieren“ akzeptierst Du die Allgemeinen Nutzungsbedingungen, denen Du jederzeit widersprechen kannst. Weitere Informationen zum Datenschutz

Über den Anbieter

Bahnhofstraße 4, 24558 Henstedt-Ulzburg
partner badge
Partnerschaft
Team Manke VerkaufDein Kontakt
Online-ID: 26G7ZFJJEQLM
Referenznummer: 297-008 A26
Grundstücksgesellschaft Manke GmbH & Co. KG
Grundstücksgesellschaft Manke GmbH & Co. KG
Bewertung: 4,3 von 5 Sternen
Nachricht hinzufügen
Mit der Nutzung der oben angegebenen Telefonnummer oder durch Klicken auf „Kontaktieren“ akzeptierst Du die Allgemeinen Nutzungsbedingungen, denen Du jederzeit widersprechen kannst. Weitere Informationen zum Datenschutz
Wie zufrieden bist du mit dieser Seite (nicht mit der Immobilie selbst)?