Version: 8.24.0Navigation überspringen
Mietkosten auf Anfrage
12.972 m² Lagerfläche  •  teilbar ab 12.972 m²
Immowelt logo

Lagerhalle zur Miete • provisionsfrei
Mietkosten auf Anfrage
12.972 m² Lagerfläche  •  teilbar ab 12.972 m²

PROVISIONSFREI: ca. 19.000 m² Logistikfläche mit 12 Rampen | direkt an der A2

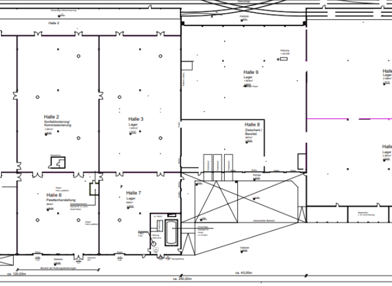
Das Objekt befindet sich auf einem ca. 35.684 m² großem Grundstück in Bielefeld-Ubbedissen direkt an der A2. Insgesamt stehen ca. 19.097 m² Lager- & Logistikfläche zur Verfügung, die Deckenhöhe beträgt ca. 6 m UKB. Die Andienung erfolgt über 10 Rampentore und 7 ebenerdigen Rolltoren. Starkstromanschlüsse sind in der Fläche vorhanden, die Halle ist beheizt und mit einer RWA und BMA ausgestattet. Die Bodentraglast beträgt 2.000 kg/ m². Die 587 m² anliegenden Büro- & Sozialflächen sind mit Sanitärflächen ausgestattet und verfügen - genauso wie die Hallenfläche - über eine hochwertige LED-Beleuchtung.

Merkmale

  • frei ab sofort
  • 30 Stellplätze: Außen-Stellplatz
  • Laderampe
  • LKW-Zufahrt
  • Raumaufteilung flexibel
. Deckenhöhe ca. 6 m UKB
. 10 Rampen
. 7 ebenerdige Tore
. PV-Anlage geplant
. Starkstrom

Grundrisse

Grundrisse
1 / 1

Realisiere Dein Projekt

Bausubstanz und Energie

Der Anbieter hat keine Informationen zum Energieverbrauch bereit gestellt.
  • Zustand der ImmobilieGepflegt
  • EnergieträgerGas
Immowelt logo

Mietkosten

Miete auf Anfrage
Provision für Mieter
provisionsfrei
Kaution
keine Angabe

Lage

address-icon
UbbedissenBielefeld (33699)
Der Anbieter hat die genaue Adresse nicht freigegeben
Die vakante Liegenschaft befindet sich in optimaler Lage im Gewerbegebiet von Bielefeld-Ubbedissen. Die Autobahn A2 ist in 12 Fahrminuten erreicht und bietet eine schnelle Anbindung in das Ruhrgebiet sowie Richtung Hannover. Der ÖPNV ist nur wenige Gehminuten vom Objekt entfernt, sodass eine flexible An-/ und Abreise gewährleistet ist. Der Flughafen Münster/ Osnabrück ist in ca. 65 Fahrminuten erreichbar. Restaurants und Geschäfte des täglichen Bedarfs sind ebenfalls unweit der Liegenschaft und können schnell mit dem PKW erreicht werden.

Weitere Informationen

Sonstiges Es gelten ausschließlich unsere AGB (www.ruhr-real.de/agb). Da der Eigentümer ausschließlich Lager/Logistik, Produktion und Light Industrial als Nutzung wünscht, bitten wir Sie zu berücksichtigen, dass Anfragen zu folgenden Nutzungen nicht bearbeitet werden können: Veranstaltungen/Events, Gastronomie/Vergnügungsstätten, religiöse Einrichtungen sowie Sport- und Spielstätten. Wir möchten Sie darauf hinweisen, dass die Angaben ausschließlich auf den uns vom Eigentümer übermittelten Unterlagen und Informationen basieren. Für Richtigkeit und Vollständigkeit übernehmen wir keine Gewähr. Zwischenvermietung vorbehalten. Stichworte Sonstiges: EDV-Verkabelung, frei werdend

Weitere Services

Lust auf eine Besichtigung?
Eine Frage zur Immobilie?
Nachricht hinzufügen
Mit der Nutzung der oben angegebenen Telefonnummer oder durch Klicken auf „Kontaktieren“ akzeptierst Du die Allgemeinen Nutzungsbedingungen, denen Du jederzeit widersprechen kannst. Weitere Informationen zum Datenschutz

Über den Anbieter

RUHR REAL GmbH
RUHR REAL GmbHMaklerbüro
Holsterhauser Platz 2, 45147 Essen
partner badge
6 Jahre Partnerschaft
Herr Nils MehrerDein Kontakt
Online-ID: 2gdwh55
Referenznummer: 3675/E1
RUHR REAL GmbH
RUHR REAL GmbH
Nachricht hinzufügen
Mit der Nutzung der oben angegebenen Telefonnummer oder durch Klicken auf „Kontaktieren“ akzeptierst Du die Allgemeinen Nutzungsbedingungen, denen Du jederzeit widersprechen kannst. Weitere Informationen zum Datenschutz
Wie zufrieden bist du mit dieser Seite (nicht mit der Immobilie selbst)?