Version: 8.25.1Navigation überspringen
1.190.000 €
6 Zimmer  •  200 m²  •  669 m² Grundstück
Immowelt logo

Einfamilienhaus zum Kauf
1190000 €
5.950 €/m²
6 Zimmer  •  200 m²  •  669 m² Grundstück

WINDISCH - Attraktives EFH für große Familien zentral in Gröbenzell-Nord, frei ab 01.06.2026

WINDISCH IMMOBILIEN präsentiert Ihnen ein gepflegtes, derzeit bis zum 01.06.2026 vermietetes Einfamilienhaus aus dem Jahr 1975 in zentraler, familienfreundlicher Lage von Gröbenzell-Nord. Auf einem ca. 669 m² großen Grundstück erstrecken sich ca. 200 m² Wohnfläche über insgesamt 2 Etagen - viel Platz für die gesamte Familie!

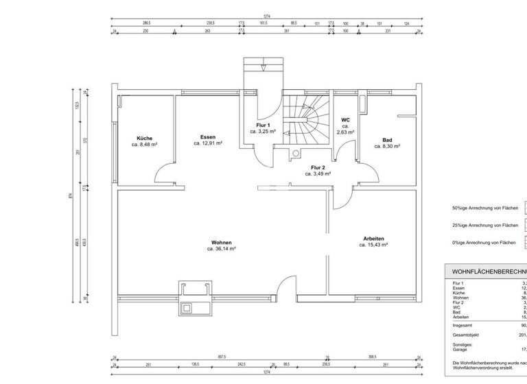
ERDGESCHOSS:
Der überdachte Eingangsbereich bringt Sie direkt in die geräumige Diele. Von dort aus gelangen Sie in alle Räumlichkeiten im Erdgeschoss. Der große und offen gestaltete Wohn- und Essbereich bietet auf über 40 m² ideale Bedingungen für eine Familie. Wenn es Abend wird, sorgt ein Kaminfeuer für eine besonders behagliche Atmosphäre.
An den Essbereich anschließend befindet sich die separate Küche. Eine Öffnung zum Essbereich bietet sich an, um den Raum offener und heller zu gestalten und eine direkte Verbindung zwischen Küche und Essbereich zu schaffen.
Des Weiteren befindet sich im Erdgeschoss ein zusätzliches Zimmer, das beispielsweise als Büro genutzt werden kann. Bei Bedarf kann die nicht tragende Wand zwischen Büro und Wohnzimmer entfernt werden, um einen großzügigen, lichtdurchfluteten Wohnbereich über die gesamte Hausbreite zu schaffen. Daran angrenzend finden Sie ein Tageslichtbad mit Dusche und Badewanne. Eine weitere Gäste-Toilette rundet das Raumangebot im Erdgeschoss ab.

OBERGESCHOSS:
Das Obergeschoss beeindruckt durch drei großzügige Schlafzimmer, die sich ideal als Kinder-, Gäste- oder Arbeitszimmer eignen. Ein weiteres, flexibel nutzbares Zimmer ist bereits mit Anschlüssen ausgestattet, die eine Nutzung als zweite Küche ermöglichen - und eröffnet somit die Option, eine separate Wohneinheit zu schaffen. Dieses Potenzial bietet Käufern zusätzlichen Gestaltungsspielraum, etwa für Mehrgenerationenwohnen, ein Homeoffice mit eigenem Bereich oder eine kleine Einliegerwohnung.
Das helle Tageslichtbad verfügt über eine Duschwanne und ein Doppelwaschbecken. Der teilüberdachte Südbalkon bietet sonnige Rückzugsorte für entspannte Stunden im Freien. Über eine Ausziehleiter gelangen Sie zudem bequem auf den Dachboden, der zusätzlichen Stauraum bietet.

UNTERGESCHOSS:
Im Untergeschoss erwartet Sie ein großzügiger Hobbyraum mit vielfältigen Nutzungsmöglichkeiten - ideal als Fitnessraum, Werkstatt oder kreativer Rückzugsort.
Darüber hinaus steht Ihnen ein separates Gästezimmer mit Wohnraumcharakter zur Verfügung, das sich optimal für Besucher oder als zusätzlicher Rückzugsbereich eignet.
Ergänzend befinden sich auf dieser Ebene ein Heizungsraum (Ölheizung, Baujahr 2011), eine praktische Speisekammer sowie weitere Abstell- und Lagerräume.

AUSSENANLAGE:
Der gepflegte Außenbereich überzeugt mit einer großzügigen Terrasse samt Markise und einem sonnigen, liebevoll angelegten Garten. Der gewachsene Baumbestand sorgt für eine natürliche Atmosphäre und spendet an warmen Tagen angenehmen Schatten. Hier genießen Sie erholsame Stunden im Grünen - perfekt für Familienfeste oder gemütliche Grillabende.
Eine Einzelgarage rundet das attraktive Gesamtbild dieser Immobilie ab.

HINWEIS:
Die derzeitigen Mieter werden bis zum 01.06.2026 ausziehen. Die derzeitige Kaltmiete beträgt 2.100€ / Monat.

FAZIT:
Lassen Sie sich diese seltene Gelegenheit nicht entgehen und erwecken Sie dieses Einfamilienhaus in zentraler Lage von Gröbenzell-Nord zu neuem Leben. Nutzen Sie die Möglichkeit, ein elegantes und individuelles Zuhause zu schaffen, das exklusiven Wohnkomfort in einer erstklassigen Lage bietet.

Merkmale

  • 669 m² Grundstück
  • Einbauküche
  • Badezimmer: Badewanne, Bad mit Dusche, Bad mit Fenster
  • Keller
  • Bodenbelag: Fliesen, Parkett
  • offener Kamin
  • Garage
  • Kabelanschluss
ERDGESCHOSS:
+ offenes Wohn- / Esszimmer mit Zugang zum Garten
+ Gemütlicher Kamin im Wohnzimmer
+ Separate Küche mit Zugang zum Garten
+ weiteres Zimmer mit flexibler Nutzungsmöglichkeit, z.B. Büro
+ Tageslichtbad mit Badewanne, Dusche und Doppelwaschbecken
+ separate Gäste - Toilette

OBERGESCHOSS:
+ 3 große Schlafzimmer / Kinderzimmer
+ 1 weiteres Zimmer mit flexiblen Nutzungsmöglichkeiten
+ Tageslichtbad mit Duschwanne und Doppelwaschbecken
+ Zugang zum Dachboden
+ Teilüberdachter Balkon mit Südausrichtung

UNTERGESCHOSS:
+ Gäste-Zimmer mit Wohnraumcharakter
+ Großflächiger Hobbyraum mit viel Potential
+ Gepflegter Waschraum
+ Heizungsraum (Ölheizung; BJ 2011)
+ Speisekammer
+ Weitere Lagerräumlichkeiten

AUSSENANLAGE:
+ Gepflasterte Terrasse mit Markise
+ Gepflegter, sonniger Garten
+ Einzelgarage
+ Weitere Stauflächen
+ u.v.m.

Grundrisse

Grundrisse
1 / 3

Realisiere Dein Projekt

Bausubstanz und Energie

Energieausweis

G
  • Baujahr1975
  • Zustand der ImmobilieMassivhaus, Gepflegt
  • HeizungsartZentralheizung
  • EnergieträgerÖl
Immowelt logo

Preisdetails

Kaufpreis
1190000 €
5.950 €/m²
Provision für Käufer
2,975 % inkl. 19 % MwSt.
Weitere Preisinformationen
1 Garagenstellplatz
Geschätzte Gesamtkosten
1.290.912 €1
Kaufpreis
1.190.000 €
Notarkosten (1,5%)
17.850 €
Grunderwerbsteuer (3,5%)
41.650 €
Provision für Käufer (2,98%)
35.462 €
Grundbucheintrag (0,5%)
5.950 €
1Der angezeigte Wert ist eine automatisch berechnete Schätzung von immowelt.
2Bei den Angaben handelt es sich um ortsübliche Werte. Individuelle Kosten können abweichen.

Lage

address-icon
Gröbenzell (82194)
Der Anbieter hat die genaue Adresse nicht freigegeben
ÜBER GRÖBENZELL
Gröbenzell ist eine charmante Gartenstadt im oberbayerischen Landkreis Fürstenfeldbruck mit rund 20.000 Einwohnern. Der beliebte Wohnort liegt nur etwa 10 km westlich von München und in unmittelbarer Nähe des idyllischen Fünfseenlands. Dank seiner ausgezeichneten Infrastruktur, der grünen Umgebung und der familienfreundlichen Atmosphäre zählt Gröbenzell zu den begehrtesten Wohnlagen im Münchner Westen.

LAGE DER IMMOBILIE
Das Objekt befindet sich in der Birkenstraße, einer ruhigen und grünen Wohnlage im beliebten Gröbenzell-Nord. Eine Bushaltestelle liegt in unmittelbarer Nähe des Grundstücks. Ein Lebensmittelgeschäft an der Bahnhofstraße erreichen Sie bereits nach rund 300 m, ein Kindergarten befindet sich nur 250 m entfernt in der Freilandstraße.

Ärzte, Apotheken, Restaurants, Cafés, Bäckereien sowie zahlreiche weitere Geschäfte und Dienstleister sind fußläufig im Gröbenzeller Zentrum erreichbar. Der Olchinger See als Naherholungsgebiet liegt nur wenige Fahrradminuten entfernt und bietet ideale Bedingungen zum Spazieren, Joggen oder einfach zum Entspannen am Wasser.


INFRASTRUKTUR UND FREIZEIT
Gröbenzell bietet alles, was man von einer modernen, familienfreundlichen Gemeinde erwartet:
Mehrere Supermärkte, Fachgeschäfte, Gastronomie, Ärztehäuser sowie ein lebendiges Vereins- und Kulturleben. Der Gröbenzeller Sportverein mit über 20 Abteilungen bietet ein breites Angebot für Jung und Alt. Auch Naturliebhaber und Freizeitsportler kommen hier voll auf ihre Kosten - ob beim Radfahren, Wandern oder Spazieren in den nahegelegenen Grünflächen rund um das Fünfseenland.

SCHULE, AUSBILDUNG UND BETREUUNG
Familien profitieren von einem umfassenden Bildungs- und Betreuungsangebot: Drei Grundschulen, eine Mittelschule, ein Gymnasium sowie mehrere Kinderkrippen, Kindergärten und Horte gewährleisten kurze Wege und eine hervorragende Betreuung.

VERKEHRSANBINDUNG
Gröbenzell ist hervorragend angebunden - sowohl an den öffentlichen Nahverkehr als auch an das überregionale Straßennetz. Die S-Bahn-Linie S3 verbindet Gröbenzell direkt mit der Münchner Innenstadt und weiteren Städten der Region. Zudem befinden sich die Autobahnen A8, A96 und A99 in unmittelbarer Nähe, sodass Sie sowohl das Stadtzentrum von München als auch Ausflugsziele im Fünfseenland schnell erreichen.

Weitere Informationen

Sonstiges Es liegt ein Energiebedarfsausweis vor.
Dieser ist gültig bis 5.7.2035.
Endenergiebedarf beträgt 214.40 kwh/(m²*a).
Wesentlicher Energieträger der Heizung ist Öl.
Das Baujahr des Objekts lt. Energieausweis ist 2011.
Die Energieeffizienzklasse ist G.

Folgen Sie uns auf Instagram/Facebook für exklusive Einblicke in unser Unternehmen: @windischimmobilien

WINDISCH IMMOBILIEN bietet neue Objekte zunächst den registrierten Suchkunden an. Dies bietet fu?r Sie den Vorteil, dass Sie einen zeitlichen Vorsprung gegenu?ber den nicht registrierten Suchenden haben. Sie werden u?ber das Immobilienangebot durch WINDISCH IMMOBILIEN informiert, schon bevor es in den Internetportalen platziert wird. Registrieren Sie sich hierfür unter https://windisch-immobilien.de/registrierung/


PROVISION
Bei Erwerb der im Exposé beworbenen Immobilie ist vom Käufer die Käuferprovision zu zahlen. Die Höhe der Provision richtet sich nach dem beurkundeten Kaufpreis. Das im Exposé beworbene Objekt wird Ihnen durch WINDISCH IMMOBILIEN vermittelt.

HAFTUNGSAUSSCHLUSS:
Trotz regelmäßiger Prüfung von Daten, Bildern und Informationen übernehmen wir keine Haftung für die Richtigkeit der Angaben. Ebenso wenig für die Verfügbarkeit des Angebotes bei Vermietung oder Verkauf. Es gelten unsere Allgemeinen Geschäftsbedingungen. Stichworte Anzahl der Schlafzimmer: 5, Anzahl der Badezimmer: 2, 3 Etagen

Weitere Services

Lust auf eine Besichtigung?
Eine Frage zur Immobilie?
Nachricht hinzufügen
Mit der Nutzung der oben angegebenen Telefonnummer oder durch Klicken auf „Kontaktieren“ akzeptierst Du die Allgemeinen Nutzungsbedingungen, denen Du jederzeit widersprechen kannst. Weitere Informationen zum Datenschutz

Über den Anbieter

Industriestraße 31, 82194 Gröbenzell
Herr Niklas WindischDein Kontakt
Online-ID: 25NLFJ6SAR85
Referenznummer: 3320
Windisch Immobilien, Inh. Martin Windisch
Windisch Immobilien, Inh. Martin Windisch
Bewertung: 4,2 von 5 Sternen
Nachricht hinzufügen
Mit der Nutzung der oben angegebenen Telefonnummer oder durch Klicken auf „Kontaktieren“ akzeptierst Du die Allgemeinen Nutzungsbedingungen, denen Du jederzeit widersprechen kannst. Weitere Informationen zum Datenschutz
Wie zufrieden bist du mit dieser Seite (nicht mit der Immobilie selbst)?