Version: 8.24.0Navigation überspringen
11,20 €
1.501,5 m² Bürofläche  •  teilbar ab 153,7 m²
Immowelt logo

Bürofläche zur Miete • provisionsfrei
11,20 €
/m²
1.501,5 m² Bürofläche  •  teilbar ab 153,7 m²

Repräsentative Büroflächen in Leonberg - Effizienz trifft Eleganz

Das Bürogebäude erstreckt sich über vier Etagen und bietet eine komplett leere Fläche, die ideal für Büro- oder Gewerbenutzungen geeignet ist. Mit zahlreichen Fenstereinheiten und großzügigen Großraumbüros ermöglicht das Gebäude eine helle und offene Arbeitsatmosphäre. Die zentrale Lage gewährleistet eine hervorragende Anbindung an öffentliche Verkehrsmittel und die A8, während die Nähe zu Einkaufsmöglichkeiten und Gastronomie zusätzlichen Komfort bietet. Ein ideales Umfeld für Unternehmen, die eine gut erreichbare und anpassbare Bürofläche suchen.

Merkmale

  • Bezug: 09/2025
  • Teeküche
  • Personenaufzug
  • Bodenbelag: Teppich
Personenaufzug, Standardausstattung, Ausgebaut, Teppichboden, Sonnenschutz außen, EDV-Verkabelung, Teeküche, getr. Damen- u. Herren WCs, Außenstellplätze, Brüstungskanäle

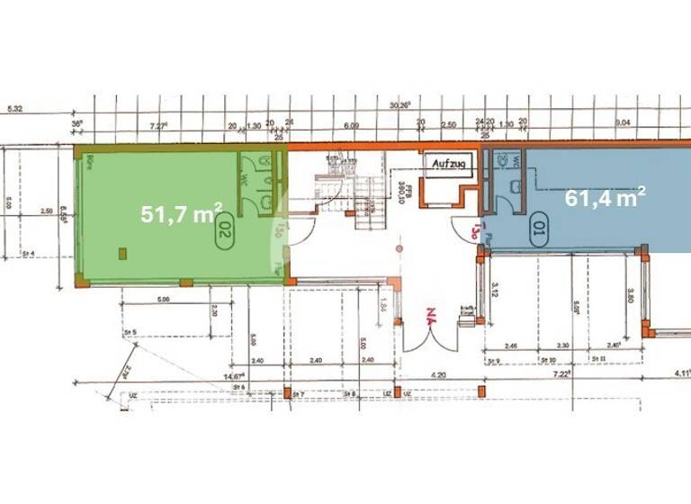
Grundrisse

Grundrisse
1 / 5

Realisiere Dein Projekt

Bausubstanz und Energie

Energieausweis

Endenergiebedarf (Wärme)

Endenergiebedarf (Strom)

  • Baujahr2011
  • Zustand der ImmobilieGepflegt
  • EnergieträgerGas
Immowelt logo

Mietkosten

Monatliche Miete
11,20 €/m²
Nebenkosten
1,90 €
Zusätzliche Kosten
Heizkosten
Provision für Mieter
provisionsfrei
Kaution
3 Bruttomonatsmieten

Lage

address-icon
EltingenLeonberg (71229)
Der Anbieter hat die genaue Adresse nicht freigegeben
Die Maybachstraße liegt in einem ruhigen Wohngebiet im Süden von Leonberg, direkt an einer wichtigen Verkehrsachse. Die Lage bietet eine exzellente Anbindung an den öffentlichen Nahverkehr, einschließlich Bus und S-Bahn, was den Weg zu Büro- und Geschäftszentren in Leonberg und Stuttgart erleichtert. Die A8 ist schnell erreichbar und verbindet die Stadt mit den wirtschaftlichen Zentren der Region. In der Umgebung finden sich sowohl lokale Büros und Gewerbeeinheiten als auch zahlreiche Einkaufsmöglichkeiten und Gastronomieangebote. Diese zentrale Lage kombiniert Wohnqualität mit einer praktischen Nähe zu Arbeitsplätzen und Dienstleistungsangeboten.

Weitere Informationen

Sonstiges "Noch nicht das Richtige? Wir führen weitere Objekte im Großraum Stuttgart. Sprechen Sie mit unseren Beratern. Gemeinsam finden wir Ihr Wunschobjekt! Wir freuen uns auf Ihre Kontaktaufnahme!



Nach den §§ 16, 16 a EnEV ist der Eigentümer, Verkäufer, Vermieter, Verpächter und Leasinggeber bei der Vermarktung von Immobilien verpflichtet, den Energieausweis der Immobilie gemäß der gesetzlichen Vorgabe bei Besichtigungen auszuhändigen bzw. auszuhängen und bestimmte energetische Kennwerte aus dem Energieausweis in die Immobilieninserate und Exposés aufzunehmen. Dieser Nachweis wurde von uns bereits bei den Eigentümern angefordert und kann von Ihnen beim Besichtigungstermin eingesehen werden." Stichworte Sonstiges: EDV-Verkabelung, Getrennte Damen- und Herren-WCs

Weitere Services

Lust auf eine Besichtigung?
Eine Frage zur Immobilie?
Nachricht hinzufügen
Mit der Nutzung der oben angegebenen Telefonnummer oder durch Klicken auf „Kontaktieren“ akzeptierst Du die Allgemeinen Nutzungsbedingungen, denen Du jederzeit widersprechen kannst. Weitere Informationen zum Datenschutz

Über den Anbieter

Immoraum GmbHMaklerbüro
Uhlandstraße 14, 70182 Stuttgart
Herr Raphael Jung
Herr Raphael JungDein Kontakt
Online-ID: 2kqhk52
Referenznummer: IRx1013/G1
Immoraum GmbH
Immoraum GmbH
Nachricht hinzufügen
Mit der Nutzung der oben angegebenen Telefonnummer oder durch Klicken auf „Kontaktieren“ akzeptierst Du die Allgemeinen Nutzungsbedingungen, denen Du jederzeit widersprechen kannst. Weitere Informationen zum Datenschutz
Wie zufrieden bist du mit dieser Seite (nicht mit der Immobilie selbst)?