Version: 8.24.1Navigation ĂĽberspringen
518.600 €
4 Zimmer
Immowelt logo

Wohnung zum Kauf
518600 €
4 Zimmer

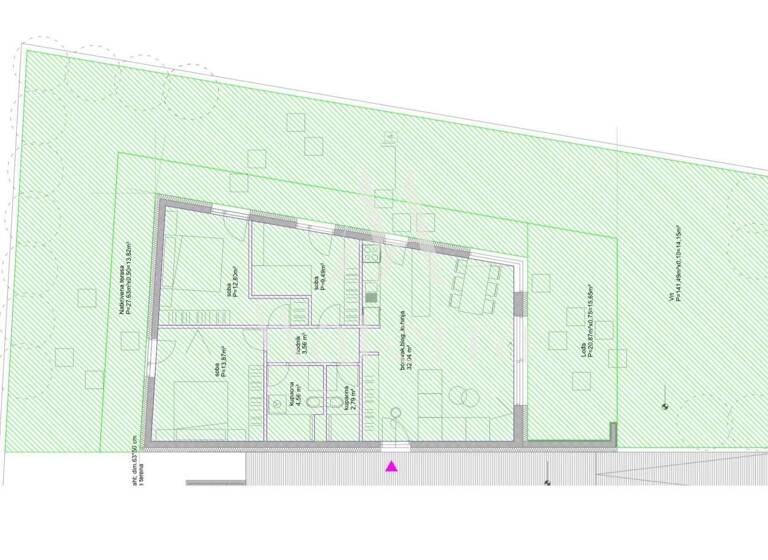
ZADAR, 3-ZIMMER-ERDGESCHOSSWOHNUNG S2 MIT GARTEN UND GARAGE, FLÄCHE: 136,53 m²

In einer ruhigen Sackgasse im Stadtteil Diklo in Zadar entsteht ein Wohnprojekt mit sechs Wohneinheiten, verteilt auf drei Etagen, mit Tiefgarage und Außenstellplätzen.

Wohnung S2 befindet sich im Erdgeschoss. Sie besteht aus einem Wohnbereich mit Küche und Essplatz, drei Schlafzimmern, zwei Badezimmern und einem Flur. Zur Wohnung gehören eine überdachte Terrasse mit 27,63 m² sowie ein Garten mit 141,49 m². Zwei Stellplätze in der Tiefgarage sind im Preis enthalten.

Das Gebäude wird nach hohen Baustandards errichtet und bietet:

Aufzug, der alle Etagen verbindet

ALU-Fenster mit dreifach verglasten Isolierglas

elektrische Rollläden und Insektenschutz

Fußbodenheizung über Wärmepumpen

Multi-Split-Klimaanlage in allen Räumen

einbruch-, feuer- und rauchhemmende EingangstĂĽren

hochwertiges Parkett und groĂźformatige Keramikfliesen

private Kellerabteile

angelegte Grünflächen und bepflanzte Gärten

Die Entfernung zum Meer und zum Strand beträgt ca. 400 Meter. Schulen, Einkaufsmöglichkeiten, öffentliche Verkehrsmittel und weitere Einrichtungen befinden sich in der Nähe.

Fertigstellung geplant: Sommer FĂĽr weitere Informationen oder einen Besichtigungstermin kontaktieren Sie uns bitte.

ID CODE: 145

Grundrisse

Grundrisse
1 / 2

Realisiere Dein Projekt

Bausubstanz und Energie

Der Anbieter hat keine Informationen zu Energieverbrauch oder Zustand der Immobilie bereit gestellt.
Immowelt logo

Preisdetails

Kaufpreis
518600 €
Provision für Käufer
Bitte beachte, das Angebot kann bei Vertragsabschluss die Zahlung einer Provision beinhalten. Weitere Informationen erhältst Du vom Anbieter.

Lage

address-icon
Zadar (23000)
Der Anbieter hat die genaue Adresse nicht freigegeben

Weitere Informationen

Stichworte Gesamtfläche: 136,00 m², Anzahl der Schlafzimmer: 3, Anzahl der Badezimmer: 2, Anzahl der Wohn-Schlafzimmer: 1, 2 Etagen, Nebenzentrumslage

Weitere Services

Lust auf eine Besichtigung?
Eine Frage zur Immobilie?
Nachricht hinzufĂĽgen
Mit der Nutzung der oben angegebenen Telefonnummer oder durch Klicken auf „Kontaktieren“ akzeptierst Du die Allgemeinen Nutzungsbedingungen, denen Du jederzeit widersprechen kannst. Weitere Informationen zum Datenschutz

Ăśber den Anbieter

LABIN d.o.o.MaklerbĂĽro
Prilaz Kikova 4, 52220 LABIN
partner badge
Partnerschaft
Andro JakolisDein Kontakt
Online-ID: 2nmxh5l
Referenznummer: 4565-145
LABIN d.o.o.
Nachricht hinzufĂĽgen
Mit der Nutzung der oben angegebenen Telefonnummer oder durch Klicken auf „Kontaktieren“ akzeptierst Du die Allgemeinen Nutzungsbedingungen, denen Du jederzeit widersprechen kannst. Weitere Informationen zum Datenschutz
Wie zufrieden bist du mit dieser Seite (nicht mit der Immobilie selbst)?