Wohnen auf zwei Ebenen: Maisonette mit Balkon & Terrasse in Lichterfelde
Diese besondere Maisonette-Eigentumswohnung mit ca. 69 m² Wohnfläche befindet sich im Erdgeschoss und Untergeschoss eines architektonisch reizvollen Wohnhauses, das an eine repräsentative Jugendstil-Villa angegliedert ist. Eingebettet in einen malerischen Garten vereint die Wohnung historischen Charme mit modernem Wohnkomfort - ein Zuhause mit hohem Wohlfühlfaktor in ruhiger Lage von Berlin-Lichterfelde.
Die Wohnung erstreckt sich über zwei Ebenen und vermittelt durch ihren Haus-in-Haus-Charakter ein sehr privates Wohngefühl. Im Untergeschoss befindet sich ein großzügig geschnittenes Schlafzimmer, das als ruhige Rückzugsoase dient und direkten Zugang zu einer großen, geschützten Terrasse im Grünen bietet. Hier lassen sich entspannte Stunden im Freien genießen. Ein modernes Duschbad auf dieser Ebene rundet den komfortablen Schlafbereich ab.
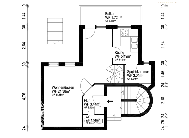
Im Erdgeschoss empfängt Sie ein geräumiger Wohnbereich, der viel Platz für Entspannung und geselliges Beisammensein bietet. Von hier gelangen Sie auf den Balkon mit schönem Blick in den Garten. Die angrenzende Küche lädt zu kulinarischen Aktivitäten ein; ein separates Gäste-WC sorgt für zusätzlichen Komfort im Alltag. Große Fensterflächen in den Wohnbereichen schaffen eine helle, freundliche Atmosphäre und unterstreichen die offene Raumwirkung. Der hochwertige Parkettboden im Wohnbereich sowie Laminat in den weiteren Räumen verleihen der Wohnung eine stilvolle, gepflegte Anmutung.
Ein besonderes Highlight ist der separate Ein- bzw. Ausgang vom Wohnzimmer in den vorderliegenden Teil des Gartens, wodurch sich der Außenbereich nahtlos in den Wohnraum integriert. Hinter dem Haus steht zudem ein gemeinschaftlich nutzbarer Garten mit Terrasse und Rasenflächen zur Verfügung - ideal, um die sonnigen Stunden im Freien zu verbringen.
Das Wohnhaus wurde 1987 errichtet und laufend instand gehalten. Das Dach wurde im Jahr 2023 erneuert und entspricht hohen energetischen Anforderungen. Die Gasheizung (Erdgas) wurde im Dezember 2022 modernisiert und befindet sich damit auf aktuellem Stand der Technik.
Die Wohnung ist bezugsfrei und erfordert nur geringe Renovierungsarbeiten - so können Sie Ihr neues Zuhause kurzfristig beziehen. Mit ihrem durchdachten Grundriss eignet sich diese Einheit ideal für Singles oder Paare, die ein stilvolles, charaktervolles Domizil in gefragter Lage von Lichterfelde suchen, ebenso wie für Kapitalanleger, die eine gut vermietbare Wohnung in attraktiver Mikrolage bevorzugen.
Merkmale
Bezug: Sofort
1. Geschoss
Einbauküche
Bad mit Dusche
Gäste-WC
Bodenbelag: Fliesen, Parkett
Balkon
Grundrisse
Grundrisse
1 / 2
Realisiere Dein Projekt
Bausubstanz und Energie
Energieausweis
C
Baujahr1987
Zustand der Immobilierenovierungsbedürftig / sanierungsbedürftig
Preisdetails
Kaufpreis
324900 €324.900 €
4.709 €/m²
Hausgeld
309.06 €309,06 €
Provision für Käufer
3,57 % Durch Ihre digitale Erklärung, ein Exposé abrufen zu wollen, kommt ein Maklervertrag unter den in der entsprechenden Objektanzeige dargelegten Bedingungen mit uns zustande. Weitere Informationen siehe Provisionshinweis.
Geschätzte Gesamtkosten
362.492 €1
Kaufpreis
324.900 €
Kaufnebenkosten
37.592 €
2
Notarkosten (1,5%)
4.874 €
Grunderwerbsteuer (6%)
19.494 €
Provision für Käufer (3,57%)
11.599 €
Grundbucheintrag (0,5%)
1.625 €
1Der angezeigte Wert ist eine automatisch berechnete Schätzung von immowelt.
2Bei den Angaben handelt es sich um ortsübliche Werte. Individuelle Kosten können abweichen.
Lage
Lichterfelde, Berlin (12207)
Der Anbieter hat die genaue Adresse nicht freigegeben
Die Wohnung befindet sich in ruhiger und grüner Wohnlage im südwestlichen Berliner Ortsteil Lichterfelde. Die Umgebung ist geprägt von gepflegten Mehrfamilien- und Einfamilienhäusern, gewachsenen Nachbarschaften und einer angenehm wohnlichen Atmosphäre. Hier wohnen Sie abseits des Großstadttrubels, ohne auf eine gute Anbindung an die Berliner Innenstadt verzichten zu müssen.
Die Infrastruktur ist sehr gut: Busverbindungen in fußläufiger Entfernung sorgen für eine schnelle Erreichbarkeit der S-Bahnhöfe Lichterfelde Ost und Lichterfelde Süd sowie des Stadtteils Steglitz mit Anschluss an den Fern- und Regionalverkehr. Von dort gelangen Sie bequem in die City-West und in die Berliner Innenstadt.
Einkaufsmöglichkeiten für den täglichen Bedarf, Bäckereien, Apotheken und Ärzte befinden sich im näheren Umfeld. Kitas, Schulen und verschiedene Sport- und Freizeitangebote sind ebenfalls gut erreichbar und machen die Lage besonders attraktiv für Paare, Berufspendler und kleine Familien. Zahlreiche Grünflächen und ruhige Seitenstraßen laden zu Spaziergängen, Joggingrunden oder entspannten Stunden im Freien ein.
Weitere Informationen
Provisionshinweis
3,57 % Durch Ihre digitale Erklärung, ein Exposé abrufen zu wollen, kommt ein Maklervertrag unter den in der entsprechenden Objektanzeige dargelegten Bedingungen mit uns zustande.
Die Käufercourtage in Höhe von 3,57 % inkl. geltender MwSt. (derzeit 19%) auf den Kaufpreis zuzüglich etwaiger weiterer Leistungen des Käufers an den Verkäufer ist bei notariellem Vertragsabschluss für uns verdient und fällig. Im Fall der Änderungen des Mehrwertsteuersatzes behalten wir uns vor, die Bruttocourtage einer entsprechenden Anpassung zu unterziehen.
Sonstiges
Unsere Angebote sind freibleibend und unverbindlich. Die Angaben basieren auf Aussagen des Verkäufers. Irrtum sowie Zwischenverkauf bleiben ausdrücklich vorbehalten.
Weitere interessante Immobilien finden Sie auf unserer Firmenhomepage: www.paegelrealestate.com. Ihnen als Eigentümer*in bieten wir eine kostenlose Bewertung Ihrer Immobilie an.
Stichworte
Anzahl der Badezimmer: 1, Anzahl Balkone: 1, Balkon-Terrassen-Fläche: 10,00 m², Bundesland: Berlin, 2 Etagen, modernisiert: 2022, Distanz zum Flughafen: 30.25, Distanz zum Hauptbahnhof: 1.22, Distanz zum Bus: 0.21