Version: 8.22.6Navigation überspringen
524.900 €
9 Zimmer  •  267 m²  •  850 m² Grundstück  •  frei ab sofort
Immowelt logo

Haus zum Kauf
524900 €
1.966 €/m²
9 Zimmer  •  267 m²  •  850 m² Grundstück  •  frei ab sofort

Genehmigtes Zweifamilienhaus mit 466qm Wohn-/Nutzfläche zum Ausbau | Bestlage mit Fernblick | Ausbaupotenzial | Bereits entkernt

Die ehemalige Direktorenvilla eines Mühldorfer Industriebetriebs befindet sich auf einem weitläufigem Hanggrundstück mit ca. 850qm in einer begehrten Lage Mühldorfs. Von dort erhält man einen tollen Blick über das Altmühldorfer Tal, die Innschleife und die Alpen.

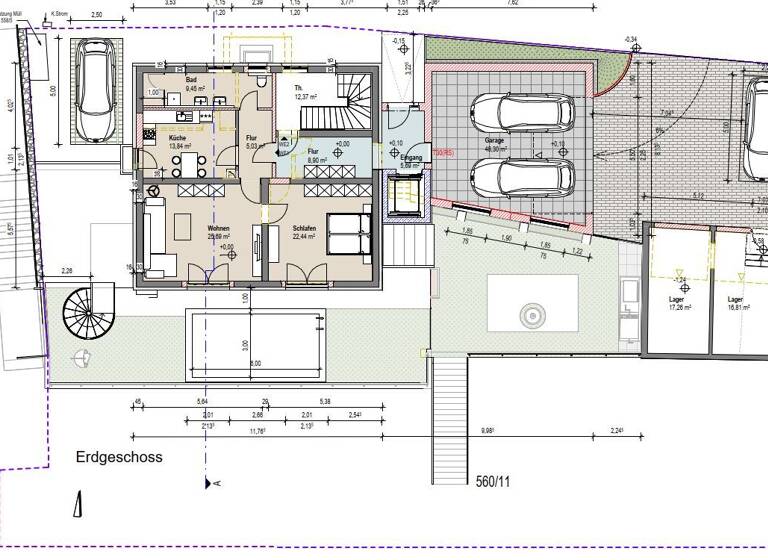
Die Villa wurde im Jahre 2023 vollständig überplant. Die Eigentümer haben in diesem Zuge eine Baugenehmigung für einen Umbau in ein Zweifamilienhaus gemäß dem beiliegenden Grundriss erhalten. Nach dem Umbau, der durch die Erwerber erfolgt, verfügt das Objekt über eine Wohn- und Nutzfläche von 466qm sowie 4 (Garagen-) Stellplätze. Bei der genehmigten Planung wurde besonderer Wert auf großzügige Räumlichkeiten und hohen Wohnkomfort gelegt. So verfügt das Objekt beispielsweise über einen weitläufigen Wohn-/Ess-Bereich mit rd. 40qm und großzügige, teilweise überdachte Terrassen. Ferner wurde vom Eigentümer die Errichtung eines Swimmingpools und eines Aufzugs über alle Etagen eingeplant.

Neben der Nutzung als Zweifamilienhaus wäre aufgrund von 5 tagesbelichteten Etagen auch eine Nutzungsänderung und Ausbau zu einem 3- oder u.U. 4-Familienhaus denkbar. Ein entsprechendes Vorhaben ist mit den zuständen Behörden abzustimmen.

Das Objekt ist vollständig entkernt. Der Ausbau kann vom Erwerber kurzfristig gestartet werden.

Merkmale

  • 5 Geschosse
  • 850 m² Grundstück
  • offene Küche
  • Personenaufzug
  • Keller
  • 4 Stellplätze: Garage, Außen-Stellplatz
  • Gäste-WC
  • Terrasse

Grundrisse

Grundrisse
1 / 5

Realisiere Dein Projekt

Bausubstanz und Energie

Der Anbieter hat keine Informationen zum Energieverbrauch bereit gestellt.
  • EnergieträgerGas
Immowelt logo

Preisdetails

Kaufpreis
524900 €
1.965,92 €/m²
Provision für Käufer
Die Käufer-Provision in Höhe von 3,57% (inkl. der gesetzlichen
Mehrwertsteuer) des Kaufpreises ist mit Beurkundung fällig.
Geschätzte Gesamtkosten
572.510 €1
Kaufpreis
524.900 €
Notarkosten (1,5%)
7.874 €
Grunderwerbsteuer (3,5%)
18.372 €
Provision für Käufer (3,57%)
18.739 €
Grundbucheintrag (0,5%)
2.625 €
1Der angezeigte Wert ist eine automatisch berechnete Schätzung von immowelt.
2Bei den Angaben handelt es sich um ortsübliche Werte. Individuelle Kosten können abweichen.

Lage

address-icon
AltmühldorfMühldorf a.Inn (84453)
Der Anbieter hat die genaue Adresse nicht freigegeben
Das Zweifamilienhaus befindet sich in zentralster Lage Mühldorfs. Die Stadtmitte, die Einrichtungen und Geschäfte des täglichen Bedarfs sind in wenigen Minuten erreichbar. So befindet sich der nächste Lebensmitteleinzelhändler fußläufig nur 1 Minute entfernt.
Ebenso sind die Hauptverkehrsknotenpunkte der Kreisstadt in wenigen Minuten mit dem PKW erreichbar.

Mühldorf am Inn ist eine charmante und stetig wachsende Kreisstadt in Südostbayern. Die Kreisstadt besticht vor allen Dingen durch einen hervorragend erhaltenen und historischen Stadtkern mit bezaubernden Bürgerhäusern und Arkadengängen.

Die Stadt profitiert von einer ausgezeichneten (Verkehrswege-) Infrastruktur und liegt günstig zwischen den Ballungsräumen München, Rosenheim, Landshut, Passau und Salzburg.
Durch die in ca. 7 Minuten erreichbare Auffahrt zur Autobahn 94 wird Mühldorf fester Bestandteil des Münchner Umlands und für Pendler in die Landeshauptstadt als Wohnlage noch interessanter. So wird es in München tätigen Arbeitskräften zukünftig möglich sein in weniger als 45 Minuten den Münchner Stadtkern mit Ihrem PKW zu erreichen.
Darüber hinaus verfügt Mühldorf mit dem sogenannten Schienenstern über eine hervorragende Bahnverbindung nach München und Salzburg.
Der stark ausgeprägte Einzelhandelssektor der Kreisstadt beheimatet nicht nur regionale Händler, sondern auch internationale Filialisten, wie bspw. H&M, MediaMarkt und Globus.

Weitere Informationen

Besichtigungstermine Für Ihr Interesse an dem interessanten Projekt danken wir Ihnen recht herzlich!

Für eine Besichtigung stehen wir Ihnen nach Vereinbarung jederzeit gerne zur Verfügung.

Weitere Informationen
Alle Informationen basieren auf Angaben Dritter und wir bedanken uns für deren Überlassung. Es wird keine Haftung für Richtigkeit und Vollständigkeit der Angaben übernommen. Stichworte Zustand: entkernt, projektiert Sonstiges/Wohnen: Einliegerwohnung, Hobbyraum Versorgung: Städtische Wasserversorgung, Städtische Stromversorgung Sonstiges: Keller als Wohnraum nutzbar

Weitere Services

Lust auf eine Besichtigung?
Eine Frage zur Immobilie?
Nachricht hinzufügen
Mit der Nutzung der oben angegebenen Telefonnummer oder durch Klicken auf „Kontaktieren“ akzeptierst Du die Allgemeinen Nutzungsbedingungen, denen Du jederzeit widersprechen kannst. Weitere Informationen zum Datenschutz

Über den Anbieter

Stadtplatz 53, 84453 Mühldorf a.Inn
Herr Maximilian SalzbergerDein Kontakt
Online-ID: 2hk8l55
Mühldorfer Immobilien Kanzlei
Mühldorfer Immobilien Kanzlei
Nachricht hinzufügen
Mit der Nutzung der oben angegebenen Telefonnummer oder durch Klicken auf „Kontaktieren“ akzeptierst Du die Allgemeinen Nutzungsbedingungen, denen Du jederzeit widersprechen kannst. Weitere Informationen zum Datenschutz
Wie zufrieden bist du mit dieser Seite (nicht mit der Immobilie selbst)?