Version: 8.26.0Navigation überspringen
12,50 €
1.750 m² Bürofläche
Immowelt logo

Bürogebäude zur Miete - Erstbezug • provisionsfrei
12,50 €
1.750 m² Bürofläche

Neubau! Ihr repräsentatives Bürohaus in Langenfeld - individuell gestaltbar

Der Büroneubau wird nach den Wünschen des Mieters errichtet. Geplant ist ein 3-geschossiges Bürogebäude mit ca. 1.750 m². Die Etagen können auch einzeln angemietet werden. Das Bürogebäude wird über einen großzügigen und repräsentativen Eingangsbereich verfügen, der für einen einladenden Eindruck bei Kunden und Besuchern sorgen wird. Über eine breite Treppe oder den Aufzug sind alle Etagen bequem zu erreichen. Alle Büros, Küchen und Konferenzräume sind stufenlos zugänglich. Große Fensterfronten sorgen für lichtdurchflutete Räume. Das statische Konzept bietet größtmögliche Flexibilität und lässt zudem eine Vielzahl von möglichen Raumkonstellationen zu, so dass Sie selbst mitbestimmen können, wie Ihr Bürohaus oder Ihre Büroeinheit gestaltet wird. Freuen Sie sich über eine äußerst moderne haustechnische Ausstattung. Durch eine verbaute Wärmepumpe ist diese Immobilie energetisch und umwelttechnisch zukunftsorientiert ausgestattet. Insgesamt stehen elf PKW-Stellplätze zur Verfügung, sechs dieser Stellplätze verfügen über die Möglichkeit seinen PKW elektrisch zu laden.

Auszug aus der Bau- und Ausstattungsbeschreibung:

Bodenbelag: nach Mieterwunsch
EDV-Verkabelung: CAT 7
Kabelführung: Doppelboden, Hohlraumboden
Kühlung: optional möglich
Sonnenschutz: außen liegend (elektrisch)
Beleuchtung: Pendelleuchten, Standleuchten optional
Aufzug: 1 Personenaufzug
Heizung: Wärmepumpe
Parkplätze: insgesamt 11 objekteigene PKW-Stellplätze

Merkmale

  • Bezug: nach Fertigstellung
  • 11 Stellplätze: Außen-Stellplatz

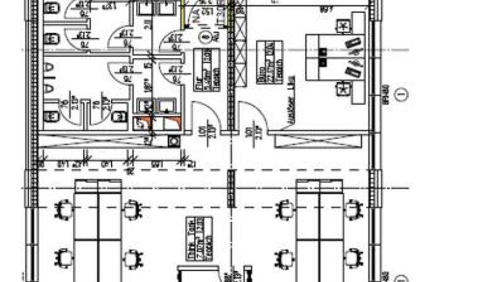
Grundrisse

Verschaffe dir einen genauen Überblick über die Raumaufteilung.selection_property_house-icon

Bausubstanz und Energie

Möchtest du Details zum Energieverbrauch?info_energy_calculation-icon
  • Baujahr2024
  • Zustand der ImmobilieNeubau, Erstbezug
  • HeizungsartZentralheizung
  • EnergieträgerErdwärme
Immowelt logo

Mietkosten

Warmmiete
15,50 €
Nettomiete
12,50 €
Nebenkosten
3 €
Heizkosten
in Nebenkosten enthalten
Provision für Mieter
provisionsfrei
Kaution
keine Angabe

Lage

address-icon
BerghausenLangenfeld (Rheinland) (40764)
Der Anbieter hat die genaue Adresse nicht freigegeben
Der geplante Büroneubau befindet sich in einem Gewerbegebiet in sehr guter Lage von Langenfeld, an der südlichen Stadtgrenze von Düsseldorf. Die Stadt Langenfeld ist mit ca. 59.000 Einwohnern die drittgrößte Stadt des Kreises Mettmann und ist aufgrund ihres niedrigen Gewerbesteuersatzes von aktuell 299 v.H. äußerst attraktiv für Unternehmen. Die Infrastruktur ist hervorragend. Die Innenstädte von Düsseldorf, Leverkusen und Köln sind mit dem Auto oder den öffentlichen Verkehrsmitteln schnell erreichbar. Bushaltestellen und die S-Bahn-Station Langenfeld Berghausen sind fußläufig erreichbar. Die Autobahnanschlüsse an die A 3 und A 59 sind ebenfalls schnell erreicht.

Weitere Informationen

Sonstiges Der Energieausweis ist in Vorbereitung.

Weitere Services

Lust auf eine Besichtigung?
Eine Frage zur Immobilie?
Mit einer persönlichen Nachricht hast du bessere Chancen auf eine Antwort.
Mit der Nutzung der oben angegebenen Telefonnummer oder durch Klicken auf „Kontaktieren“ akzeptierst Du die Allgemeinen Nutzungsbedingungen, denen Du jederzeit widersprechen kannst. Weitere Informationen zum Datenschutz

Über den Anbieter

Bahnstr. 48, 40210 Düsseldorf
partner badge
Partnerschaft
Herr Thomas KreidtDein Kontakt
Online-ID: 24YESSQVNCJN
Referenznummer: A850
Wie zufrieden bist du mit dieser Seite (nicht mit der Immobilie selbst)?