

IHS Immobilien GmbH
Frau Sandra Schwarzmann
089 ···
Nr. anzeigenPreise & Kosten
Kaution
3 Monatsmieten
Provision für Mieter
provisionsfrei
Warum sehe ich diese Anzeige? – Du siehst diese Anzeige basierend auf Ihrer Navigation auf unserer Website und den Suchkriterien, die du verwendet hast.
Lage
Der Wirtschaftsstandort Kirchheim / Heimstetten besticht durch seine verkehrstechnisch ideale Lage vor den Toren München, in der Nähe zur neuen Messe Riem.
Die Gewerbefläche liegt im Erdgeschoss eines kleinen Bürohauses mit Blick in den Innenhof an der Feldkirchener Straße mit kurzen Wegen, sowohl zur Autobahnauffahrt...
Büro-/Praxisfläche
Kategorie
Bürofläche
Baujahr
2014
Bezug
kurzfristig
Geschoss
Erdgeschoss
Energie & Heizung
Warum sehe ich diese Anzeige? – Du siehst diese Anzeige basierend auf Ihrer Navigation auf unserer Website und den Suchkriterien, die du verwendet hast.
Energieausweistyp
Bedarfsausweis
Gebäudetyp
Nicht-Wohngebäude
Baujahr laut Energieausweis
2014
Wesentliche Energieträger
Fernwärme
Endenergiebedarf
43,00 kWh/(m²·a)
Weitere Energiedaten
Energieträger
Fernwärme
Heizungsart
Fußbodenheizung
Details
Objektbeschreibung
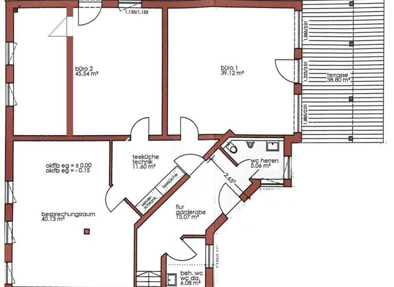
Die zur Verfügung stehende Gewerbeeinheit eignet sich für eine vielfältige Nutzung, z.B. als Büro, Praxis, als Ausstellungs- oder Schulungsräume und vieles mehr.
Sie verfügt über ca. 163 m² Nutzfläche im Erdgeschoss zzgl. eines schönen Außenbereichs mit Terrasse und Vorplatz. Ein Kellerraum mit ca. 64 m² kann bei Bedarf...
Ausstattung
Die gesamte Gewerbeeinheit ist sehr hochwertig und modern ausgestattet und durch die vielen Fenster hell und freundlich. In der gesamten Büroeinheit ist eine Fußbodenheizung mit Einzelraumsteuerung, die über den Anschluss an die Geothermie AFK betrieben wird, installiert.
In den Büroräumen und im Flur ist ein hochwertiges...
Weitere Informationen
Sonstiges
Die Kosten für die Kellerräume sind noch nicht in der Kaltmiete inbegriffen. Zusätzliche Räume können hier angemietet werden. Pro Stellplatz werden 25 EUR verrechnet.
Für einen Besichtigungstermin stehen wir Ihnen nach Terminvereinbarung gerne zur Verfügung!
Alle im Exposé angegebenen Daten beruhen...
Anbieter der Immobilie
IHS Immobilien GmbH
Ekkehartstr. 14, 85630 Grasbrunn

Online-ID: 2lzws5s
Referenznummer: IHS634
Finde Angebote wie dieses
Hier geht es zu unserem Impressum, den Allgemeinen Geschäftsbedingungen, den Hinweisen zum Datenschutz und nutzungsbasierter Online-Werbung.