RESTAURANT/CAFÉ/KONDITOREI: Tolle Gewerbefläche mit ca. 190 QM * Wasenstr. 11, S-Wangen *
ZENTRALE LAGE IN STUTTGART-WANGEN / WASENSTRASSE 11
Die Gewerbeeinheit befindet sich im Erdgeschoss in einem gepflegten Wohn-Geschäftshaus in zentraler Wohnlage in Stuttgart-Wangen und bietet eine Gesamtfläche von ca. 190 Quadratmetern.
Die Räumlichkeiten sind hell, großzügig und bieten eine angenehme Atmosphäre.
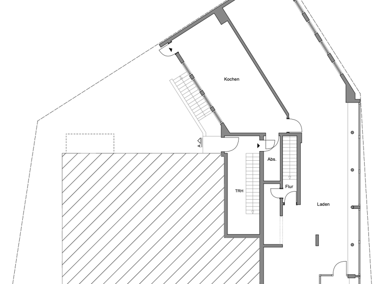
Die genaue Raumaufteilung können Sie den beigefügten Grundrissen entnehmen.
Merkmale
Bezug: sofort
1 Geschoss
2 Stellplätze: 2 Außen-Stellplätze
* HELLE, SCHÖNE GEWERBEFLÄCHE MIT CA. 190 QM FLÄCHE * * BAUJAHR 1961 / ERDGESCHOSS * * GROSSE LADENFLÄCHE + KÜCHE + SEPARATES WCs + EINGANGSBEREICH * * ZENTRALE LAGE (WASENSTR. 11 IN STUTTGART-WANGEN) * * PERFEKTE ANBINDUNG AN DEN ÖPNV * * GEPFLEGTER ZUSTAND * * GAS-ETAGENHEIZUNG * GROSSE FENSTERFRONTEN * * KEHRWOCHENDIENST + WINTERDIENST VORHANDEN * * 2 PKW-STELLPLÄTZE * FREI AB SOFORT! *
Grundrisse
Grundrisse
1 / 1
Realisiere Dein Projekt
Bausubstanz und Energie
Energieausweis
Endenergiebedarf (Wärme)
Baujahr1961
HeizungsartEtagenheizung
EnergieträgerGas
Mietkosten
Kaltmiete
1.850 €
Nebenkosten
390 €
Zusätzliche Kosten
Heizkosten
Provision fĂĽr Mieter
Bei Abschluss eines Mietvertrages wird eine Vermittlungs-/ Nachweisprovision in Höhe von 2,00 Nettomonatsmieten zzgl. gesetzlich geltender Mehrwertsteuer (derzeit 19,00 %) vom Mieter fällig.
Kaution
nach Vereinbarung
Weitere Preisinformationen
2 Stellplätze
Lage
Wangen, Stuttgart (70327)
Der Anbieter hat die genaue Adresse nicht freigegeben
Diese Gewerbefläche befindet sich im Erdgeschoss eines gepflegten Mehrfamilienwohnhauses in zentraler Lage in Stuttgart-Wangen.
Stuttgart-Wangen liegt schön gelegen im Neckartal zwischen Stuttgart und Esslingen.
Alle Notwendigkeiten des täglichen Lebens sind durch kurze Wege erreichbar. Im Ort finden Sie u.a. verschiedene Einkaufsmöglichkeiten, Ärzte, Kindergarten, Schule, Vereine und Gaststätten. Die nächste U-Bahn-Station ist in wenigen Minuten zu Fuß zu erreichen und nach ca. 15min Fahrt sind Sie mitten in Stuttgart! Schnell ist man auf dem Wangener Berg und kann die schöne Aussicht und die Natur genießen oder eine der Lokalitäten besuchen.
WICHTIG: Bitte haben Sie Verständnis, dass wir bei Interesse Ihre vollständigen Kontaktdaten sowie Informationen zu Ihrer geplanten Nutzung/Gewerbe benötigen.
Die von uns gemachten Informationen beruhen auf Angaben des Vermieters. Für die Richtigkeit und Vollständigkeit der Angaben kann keine Gewähr bzw. Haftung übernommen werden.
Eine Besichtigung ist auf ausdrĂĽcklichen Wunsch des EigentĂĽmers nur in unserer Begleitung erwĂĽnscht. Bitte vereinbaren Sie deshalb mit uns einen Termin.
Selbstverständlich stehen wir Ihnen für weitere Fragen jederzeit gerne zur Verfügung.
Wir freuen uns auf Ihre Anfrage!
Zondler & Costanzo Immobilien Ihre Spezialisten rund um die Immobilie!
Stichworte
Stellplatz vorhanden, Gesamtfläche: 190,00 m², Anzahl der separaten WCs: 1
Zustand: renovierungsbedĂĽrftig, gepflegt