Version: 8.25.1Navigation überspringen
12,50 €
4 Zimmer  •  150 m² Bürofläche  •  teilbar ab 150 m²
Immowelt logo

Bürofläche zur Miete
12,50 €
/m²
4 Zimmer  •  150 m² Bürofläche  •  teilbar ab 150 m²

Repräsentative Büroetage(n) zwischen 150 m² und 300 m²

Dieses interessante Bürohaus bietet Ihnen hochwertige Büroflächen mit erweiterbaren Optionen.
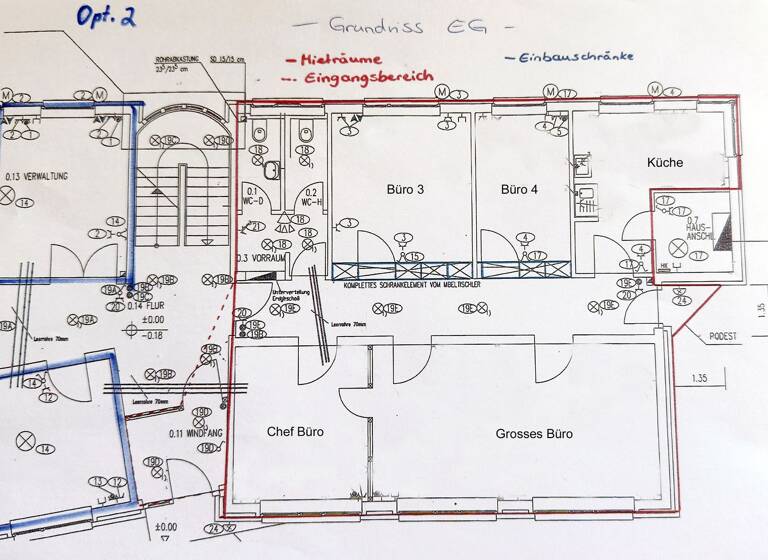
In Erdgeschoss befindet sich die Hauptfäche mit ca. 150 m², bestehend aus einem großen Büroraum, einem Chef-Büro sowie 2 einzelnen Büros.
Eine Teeküche inkl.

Essecke, ein Technikraum und 2 Toiletten gehören mit zu dem Angebot.
Die Büroeinheit können durch einen separaten Eingang an der Seite des Gebäudes oder den Haupteingang betreten werden.
Diese Option ist im Grundriss "EG" rot gekennzeichnet.

Als 2.Option der Erweiterung können 2 Räume im Erdgeschoss dazu angemietet werden, diese sind im Grundriss mit "blauer Farbe " gekennzeichnet.

Sollte Ihre Firma noch mehr Platz benötigen, können im Obergeschoss auf der rechten Seite noch einmal 6 Büros und 2 Toiletten mit angemietet werden.
(grün gekennzeichnet) Insgesamt steht somit eine gesamte Bürofläche von ca. 300 m² zur Verfügung.

Der Quadratmeterpreis liegt bei 12,50.- €/m².
Die monatliche Netto-Kaltmiete beträgt bei 150 m ² somit 1825.- € zzgl.
einer monatlichen BK Vorauszahlung in Höhe von 75.- € und einer monatlichen Heizkostenvorauszahlung von 95.- €.
Die tatsächlichen Betriebskosten werden jährlich ermittelt und mit den Vorauszahlungen angeglichen.

Merkmale

  • Bezug: sofort
  • 1. Geschoss
  • Einbauküche
  • Bodenbelag: Parkett, Laminat
- Laminatboden in den Büroräumen
- Fliesenboden im Eingangsbereich
- Wände in den Räumen tapeziert und gestrichen
- Abgehängte Schallschutz-Decken
- Deckenleuchten vorhanden
- Diverse festverbaute Einbauschränke im Flurbereich
- Fliesen im Bad/WC
- Heizkörper in allen Räumen
- Telefon/-Internetanschluss vorhanden (100 Mbit)
- optional können PKW-Stellplätze mit angemietet werden
- E-Fahrzeuge können aufgeladen werden
- Das Bürohaus hat eine Photovoltaik-Anlage, somit kann günstiger Gewerbestrom bezogen werden
- Das Mietobjekt hat eine hohe Sicherheitsstufe
- Panzerglas mit teilweiser Extra-Sicherung, sowie Alarmanlage und Videoüberwachung

Grundrisse

Grundrisse
1 / 2

Virtueller Rundgang

3D tour

Realisiere Dein Projekt

Bausubstanz und Energie

Möchtest du Details zum Energieverbrauch?info_energy_calculation-icon
  • Zustand der ImmobilieGepflegt
Immowelt logo

Mietkosten

Warmmiete
2.045 €
Nettomiete
12,50 €/m²
1.875 €
Nebenkosten
170 €
Provision für Mieter
2,38 NKM inkl. MwSt.
Kaution
3 KM

Lage

address-icon
NeuseddinSeddiner See (14554)
Der Anbieter hat die genaue Adresse nicht freigegeben
Das Bürohaus befindet sich in einer ruhigen und dennoch zentralen Lage im Gewerbegebiet in Neuseddin.
Es gibt eine gute Anbindung mit dem Bus, ein Bahnhof gibt es ebenfalls im Ort. Der Autobahnanschluss A10 (Michendorf oder Ferch) ist in wenigen Minuten zu erreichen.

Weitere Informationen

Sonstiges * Der Mieter zahlt bei Mietvertragsabschluss von unter 5 Jahren eine Provision von 2,38 Nettokaltmieten inklusive der gesetzlichen Mehrwertsteuer
Bei einer Mietdauer ab 5 Jahren übernimmt der Vermieter die Hälfte der Provision (1,19 Nettokaltmiete ist dann vom Mieter zu zahlen.) Bei einer Mietdauer ab 10 Jahren ist vom Mieter keine Provision zu zahlen.

Alle Angaben in diesem Exposé basieren auf Informationen, die der Verkäufer uns zur Verfügung gestellt hat. Eine Gewähr für deren Richtigkeit kann nicht übernommen werden.

Die Mietkaution hängt von der angemieteten Fläche ab und beträgt 3 Kaltmieten. (verhandelbar) Stichworte Anzahl der separaten WCs: 2, 2 Etagen Sonstiges: EDV-Verkabelung

Weitere Services

Lust auf eine Besichtigung?
Eine Frage zur Immobilie?
Mit einer persönlichen Nachricht hast du bessere Chancen auf eine Antwort.
Mit der Nutzung der oben angegebenen Telefonnummer oder durch Klicken auf „Kontaktieren“ akzeptierst Du die Allgemeinen Nutzungsbedingungen, denen Du jederzeit widersprechen kannst. Weitere Informationen zum Datenschutz

Über den Anbieter

Großbeerenstraße 7, 14482 Potsdam
partner badge
Partnerschaft
Herr Heiko Schnörpel
Herr Heiko SchnörpelDein Kontakt
Online-ID: 25T4LEZ5C76K
Referenznummer: 7507#cR3qs
Immobilien Center
title
Immobilien Center
Bewertung: 5 von 5 Sternen
Mit einer persönlichen Nachricht hast du bessere Chancen auf eine Antwort.
Mit der Nutzung der oben angegebenen Telefonnummer oder durch Klicken auf „Kontaktieren“ akzeptierst Du die Allgemeinen Nutzungsbedingungen, denen Du jederzeit widersprechen kannst. Weitere Informationen zum Datenschutz
Wie zufrieden bist du mit dieser Seite (nicht mit der Immobilie selbst)?