

Büro zur Miete1 Zimmer
1 Zimmer
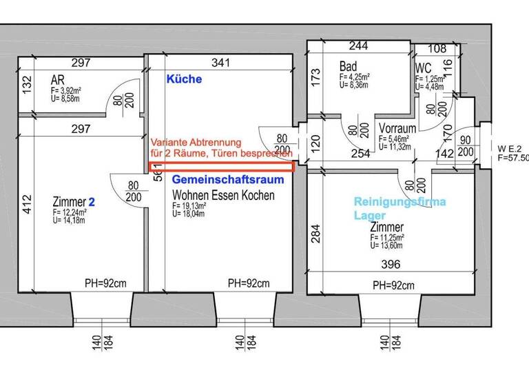
1 oder 2 Zimmer Büro und als Gemeinschaftsoffice nutzen
Merkmale
- Bezug: ab sofort
- Einbauküche
- Keller
- Badewanne
- Bodenbelag: Parkett
Grundrisse
Grundrisse
1 / 1
Realisiere Dein Projekt
Bausubstanz und Energie
Heizwärmebedarf (HWB)
C
Gesamtenergieeffizienz (fGEE)
C
- Zustand der ImmobilieAltbau (bis 1945)
- EnergieträgerFernwärme
Mietkosten
Gesamtmiete
280 €
Nettokaltmiete
nicht angegeben
Nicht in Gesamtmiete enthalten
Heizkosten
Provision für Mieter
provisionsfrei EUR inkl. 20% MwSt.
Kaution
3 BMM Überweisung
Weitere Preisinformationen
inkl. BK ohne gesetzl. MwSt.
Lage

Eggenberg, Graz (8020)
Der Anbieter hat die genaue Adresse nicht freigegeben
Weitere Informationen
Weitere Services
Lust auf eine Besichtigung?
Eine Frage zur Immobilie?
Über den Anbieter
Papst Immobilien GmbHMaklerbüro
Grazer Straße 48, 8101 Gratkorn
10 Jahre Partnerschaft

Herr Patrick GroßschädlDein Kontakt
Online-ID: 2lygr5e
Referenznummer: O2100165977


Papst Immobilien GmbH
Wie zufrieden bist du mit dieser Seite (nicht mit der Immobilie selbst)?

