




Mehrfamilienhaus zum Kauf • als Kapitalanlage geeignet429000 €1.505 €/m²10 Zimmer • 285 m² • 950,2 m² Grundstück
429000 €
1.505 €/m²
10 Zimmer • 285 m² • 950,2 m² Grundstück
7,6?% Netto-Rendite: Vollvermietetes Mehrfamilienhaus in Wiesensteig - Attraktive Kapitalanlage
Merkmale
- Bezug: nach Absprache
- 950,2 m² Grundstück
- Keller
- Garten
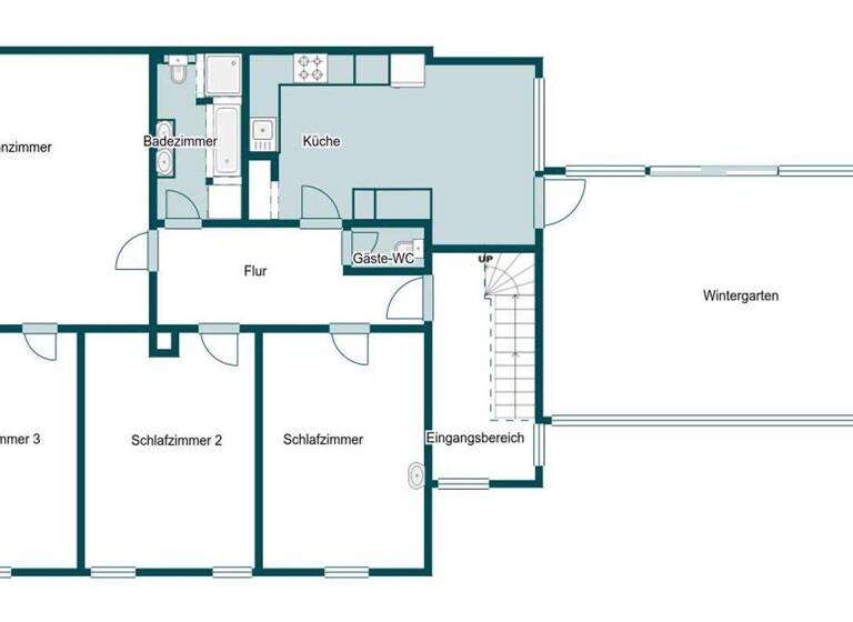
Grundrisse
Grundrisse
1 / 2
Virtueller Rundgang
3D tour

Realisiere Dein Projekt
Bausubstanz und Energie
Energieausweis
H
- Baujahr1934
- Zustand der ImmobilieGepflegt
- HeizungsartZentralheizung
- EnergieträgerÖl
Preisdetails
Kaufpreis
429000 €
1.505,26 €/m²
Provision für Käufer
Die Provision i.H.v. 4,78 % inkl. MwSt. ist mit Kaufvertragsbeurkundung fällig, sofern der Verkaufspreis über 83.000,00 € liegt.
Liegt der Verkaufspreis dagegen bei/unter 83. Weitere Informationen siehe Provisionshinweis.
Liegt der Verkaufspreis dagegen bei/unter 83. Weitere Informationen siehe Provisionshinweis.
Geschätzte Gesamtkosten
459.116 €1
Kaufpreis
429.000 €
Kaufnebenkosten
30.116 €
2Notarkosten (1,5%)
6.435 €
Grunderwerbsteuer (5%)
21.450 €
Provision für Käufer (0,02%)
86 €
Grundbucheintrag (0,5%)
2.145 €
1Der angezeigte Wert ist eine automatisch berechnete Schätzung von immowelt.
2Bei den Angaben handelt es sich um ortsübliche Werte. Individuelle Kosten können abweichen.
Lage

Wiesensteig (73349)
Der Anbieter hat die genaue Adresse nicht freigegeben
Weitere Informationen
Weitere Services
Lust auf eine Besichtigung?
Eine Frage zur Immobilie?
Über den Anbieter
Online-ID: 26KYPWMQIKBU
Referenznummer: 3c76e4233f
Wie zufrieden bist du mit dieser Seite (nicht mit der Immobilie selbst)?




