Version: 8.24.0Navigation überspringen
85.000 €
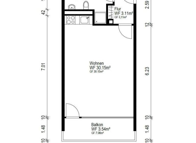
1 Zimmer  •  42,3 m²  •  7. Geschoss
Immowelt logo

Studio zum Kauf
85000 €
2.009 €/m²
1 Zimmer  •  42,3 m²  •  7. Geschoss

Vermietetes 1-Zimmer Apartment im Herzen von Limburgerhof mit Balkon und Stellplatz

Die Wohnung befindet sich im 7. Obergeschoss eines gepflegten Mehrfamilienhauses mit Aufzug und bietet damit ein hohes Maß an Komfort sowie eine angenehme Wohnqualität. Durch ihre durchdachte Aufteilung eignet sich die Immobilie sowohl ideal für Singles als auch als attraktive Kapitalanlage, zumal die Wohnung derzeit vermietet ist.

Der großzügig geschnittene Wohn- und Schlafbereich eröffnet vielfältige Möglichkeiten zur individuellen Gestaltung und schafft eine helle, freundliche Wohnatmosphäre. Das Badezimmer verfügt über eine Dusche.

Ein besonderes Highlight stellt der weitläufige, überdachte Süd-Ost-Balkon dar, der zum Entspannen einlädt und einen schönen Blick in die Ferne ermöglicht.

Zusätzlichen Stauraum bietet ein ca. 6 m² großer Kellerraum. Darüber hinaus stehen den Bewohnern ein großzügiger Gemeinschafts-Fahrradraum sowie ein Waschraum mit eigener Waschmaschine zur gemeinschaftlichen Nutzung zur Verfügung. Ein zur Wohnung gehörender Stellplatz ergänzt dieses attraktive Angebot und rundet das Gesamtbild ab.

Merkmale

  • 7. Geschoss
  • Kelleranteil
  • Stellplatz
  • Balkon
  • Barrierefrei
- großer Balkon mit Süd-Ost Ausrichtung
- Fahrstuhl
- Gemeinschafts-Fahrradraum
- Stellplatz
- Waschraum inklusive einer Waschmaschine

Grundrisse

Grundrisse
1 / 1

Realisiere Dein Projekt

Bausubstanz und Energie

Energieausweis

D
  • Baujahr1976
  • Zustand der ImmobilieGepflegt
  • EnergieträgerGas
Immowelt logo

Preisdetails

Kaufpreis
85000 €
2.009,46 €/m²
Hausgeld
194 €
Provision für Käufer
3.57 inkl. MwSt.
Bei Abschluss eines notariellen Kaufvertrages ist eine Käuferprovision vom Käufer in Höhe von 3.57 % inkl. MwSt. aus dem Kaufpreis fällig.
Geschätzte Gesamtkosten
93.984 €1
Kaufpreis
85.000 €
Notarkosten (1,5%)
1.275 €
Grunderwerbsteuer (5%)
4.250 €
Provision für Käufer (3,57%)
3.034 €
Grundbucheintrag (0,5%)
425 €
1Der angezeigte Wert ist eine automatisch berechnete Schätzung von immowelt.
2Bei den Angaben handelt es sich um ortsübliche Werte. Individuelle Kosten können abweichen.

Lage

address-icon
Limburgerhof (67117)
Der Anbieter hat die genaue Adresse nicht freigegeben
Die Von-Denis-Straße liegt in einem gut erschlossenen Wohngebiet in Limburgerhof, einer beliebten Gemeinde im Rhein-Neckar-Kreis.

Die Lage zeichnet sich durch eine ruhige Wohnumgebung, gute Nahversorgung, ein starkes soziales Umfeld und schnelle Erreichbarkeit der umliegenden Städte wie Ludwigshafen, Mannheim oder Speyer aus.

Der Bahnhof Limburgerhof ist in kurzer Entfernung und die S-Bahn-Anschluss Richtung Mannheim / Ludwigshafen / Speyer erreichbar. Es gibt eine gute Anbindung an B9, A61 und A65.

Weiterhin sind Busverbindungen in alle Ortsteile vorhanden und es gibt, bei Bedarf,
laut Gemeinde Car-Sharing-Angebote.

Weitere Informationen

Stichworte Stellplatz vorhanden, Anzahl der Badezimmer: 1, Anzahl Balkone: 1

Weitere Services

Lust auf eine Besichtigung?
Eine Frage zur Immobilie?
Nachricht hinzufügen
Mit der Nutzung der oben angegebenen Telefonnummer oder durch Klicken auf „Kontaktieren“ akzeptierst Du die Allgemeinen Nutzungsbedingungen, denen Du jederzeit widersprechen kannst. Weitere Informationen zum Datenschutz

Über den Anbieter

Evernest GmbH
Evernest GmbHMaklerbüro
Mönkedamm 9-11, 20457 Hamburg
partner badge
Partnerschaft
Nezaket DemirDein Kontakt
Online-ID: 2nuuz54
Referenznummer: L-HY897Q3
Evernest GmbH
Evernest GmbH
Bewertung: 4,5 von 5 Sternen
Nachricht hinzufügen
Mit der Nutzung der oben angegebenen Telefonnummer oder durch Klicken auf „Kontaktieren“ akzeptierst Du die Allgemeinen Nutzungsbedingungen, denen Du jederzeit widersprechen kannst. Weitere Informationen zum Datenschutz
Wie zufrieden bist du mit dieser Seite (nicht mit der Immobilie selbst)?