

Wohnung zum Kauf414000 €3.943 €/m²4 Zimmer • 105 m² • 2. Geschoss
414000 €
3.943 €/m²
4 Zimmer • 105 m² • 2. Geschoss
Wohnung 105m2 zum Kauf - Zagrebacka, Velika Gorica
Merkmale
- 2. Geschoss
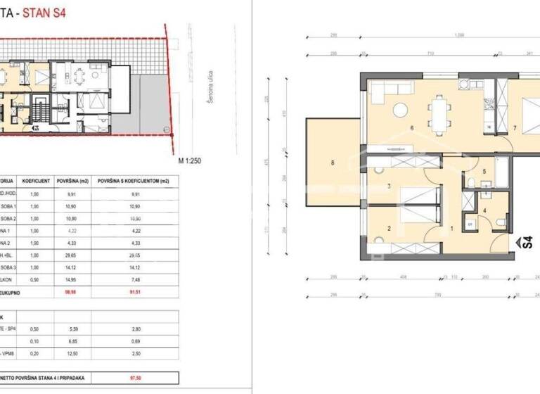
Grundrisse
Grundrisse
1 / 3
Realisiere Dein Projekt
Bausubstanz und Energie
Der Anbieter hat keine Informationen zum Energieverbrauch bereit gestellt.
- Baujahr2024
Preisdetails
Kaufpreis
414000 €
3.942,86 €/m²
Provision für Käufer
Bitte beachte, das Angebot kann bei Vertragsabschluss die Zahlung einer Provision beinhalten. Weitere Informationen erhältst Du vom Anbieter.
Lage

Velika Gorica
Der Anbieter hat die genaue Adresse nicht freigegeben
Weitere Informationen
Weitere Services
Lust auf eine Besichtigung?
Eine Frage zur Immobilie?
Ăśber den Anbieter
Online-ID: 2ng5v5g
Referenznummer: 19356461_0

Crozilla.com
Wie zufrieden bist du mit dieser Seite (nicht mit der Immobilie selbst)?

