Walmdachbungalow mit Einliegerwohnung in Apen-Roggenmoor - attraktiv vermietete Kapitalanlage
Dieser ebenerdige großzügige Walmdachbungalow wurde 1973 auf einem ca. 1032 m² großen Grundstück gebaut. Die insgesamt ca. 152 m² Wohnfläche verteilen sich auf eine ca. 118 m² große Wohnung im Haupthaus mit drei Schlafzimmern, Wohnzimmer, eine offene Küche mit angrenzendem Esszimmer, Abstellraum, Hauswirtschaftsraum, Diele, Badezimmer und Gäste WC. Das Gäste WC wurde 2009 erneuert. Vom Wohnzimmer aus gelangt man auf die überdachte Terrasse, von der man einen schönen Blick in den Garten genießen kann. Besonders hervorzuheben isst der vorhandene Außenkamin. Im Jahr 1982 wurden zwei Räume angebaut und sind zurzeit als ca. 34 m² große Einliegerwohnung mit eigenen Eingangsbereich vermietet. Die dazugehörige Terrasse bietet die Möglichkeit die tägliche Sonnenscheindauer möglichst lange zu genießen. Alle Versorgungsleitungen laufen zentral im Haupthaus zusammen. Die Heizungsanlage stammt aus dem Jahr 2021. Die doppelt verglasten Holzfenster wurden 2022 zum Teil durch Kunststofffenster ersetzt. 2024 wurde eine Garage mit einem elektrischen Garagentor errichtet. Die Hauptwohnung und die Einliegerwohnung sind zurzeit vermietet. Die Nettokaltmiete liegt bei 1400,00 € monatlich.
Merkmale
1.032 m² Grundstück
Kelleranteil
Terrasse
offener Kamin
Die Wohnfläche teilt sich wie folgt auf:
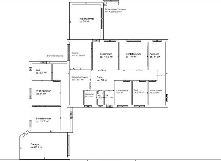
Haupthaus: Wohnen: ca. 20 m² Küche/Esszimmer: ca. 26,2 m² Schlafzimmer Eltern: ca. 16 m² Ankleidezimmer: ca. 11 m ² Kinderzimmer I: ca. 9,52 m ² Kinderzimmer II: ca. 8 m ² Diele: ca. 18 m ² Windfang: ca. 2,2 m² Bad: ca. 7,22 m² WC: ca. 1,9 m² Wirtschaftsraum: ca. m² Hochkeller: ca. 3,4 m² überdachte Terrasse mit Außenkamin
Einliegerwohnung: Wohnzimmer : ca. 14 m² Schlafzimmer: ca. 13,7 m² Bad: ca. 6,7 m² Terrasse mit Abendsonne
Der Dachboden ist zum größten Teil isoliert und bietet noch Ausbaureserven.
FĂĽr weitere Informationen oder einen Besichtigungstermin stehen wir Ihnen gerne zur VerfĂĽgung.
Grundrisse
Grundrisse
1 / 1
Realisiere Dein Projekt
Bausubstanz und Energie
Energieausweis
H
Baujahr1973
Zustand der ImmobilierenovierungsbedĂĽrftig / sanierungsbedĂĽrftig
HeizungsartZentralheizung
EnergieträgerGas
Preisdetails
Kaufpreis
228000 €228.000 €
1.500 €/m²
Provision für Käufer
3,57 % incl. MwSt. inkl. MwSt.
Geschätzte Gesamtkosten
252.100 €1
Kaufpreis
228.000 €
Kaufnebenkosten
24.100 €
2
Notarkosten (1,5%)
3.420 €
Grunderwerbsteuer (5%)
11.400 €
Provision für Käufer (3,57%)
8.140 €
Grundbucheintrag (0,5%)
1.140 €
1Der angezeigte Wert ist eine automatisch berechnete Schätzung von immowelt.
2Bei den Angaben handelt es sich um ortsübliche Werte. Individuelle Kosten können abweichen.
Lage
Roggenmoor, Apen / Roggenmoor (26689)
Der Anbieter hat die genaue Adresse nicht freigegeben
Die Immobilie befindet sich im idyllischen Ortsteil Roggenmoor der Gemeinde Apen im Landkreis Ammerland. Die Umgebung besticht durch ihre ruhige und naturnahe Lage, die von weitläufigen Moor- und Wiesenflächen geprägt ist. In unmittelbarer Nähe lädt das Naturschutzgebiet Roggenmoor mit seinen charakteristischen Hochmoorlandschaften und Spazierwegen zu erholsamen Stunden in der Natur ein. Auch die reizvolle Kieskuhle Roggenmoor mit ihrem kleinen See und dem angrenzenden Moorbirkenwald ist ein beliebtes Ziel für Spaziergänger und Naturfreunde.
Trotz der ländlichen Atmosphäre ist die Infrastruktur sehr gut: Die Ortschaften Apen und Augustfehn sind in wenigen Fahrminuten erreichbar und bieten sämtliche Einrichtungen des täglichen Bedarfs wie Einkaufsmöglichkeiten, Schulen, Kindergärten, Ärzte und Restaurants. Über die nahegelegene Bundesautobahn A 28 besteht zudem eine gute Verkehrsanbindung in Richtung Oldenburg, Leer und Bremen.
Roggenmoor zeichnet sich durch eine aufgelockerte Bebauung mit überwiegend Einfamilienhäusern und großzügigen Grundstücken aus. Die Lage vereint somit auf ideale Weise ländliche Ruhe und eine hohe Wohn- und Lebensqualität mit der Nähe zu allen wichtigen Versorgungseinrichtungen.
Weitere Informationen
Sonstiges
Ăśbergabe dieser Immobilie nach Absprache! Bei mehreren Interessenten behalten wir uns vor, in ein Bieterverfahren zu gehen.
Es wird darauf hingewiesen, dass die Objektinformationen, Unterlagen, Pläne etc. vom Eigentümer stammen. Eine Haftung für die Richtigkeit oder Vollständigkeit der Angaben wird daher vom Makler nicht übernommen.
Nach Unterzeichnung des Notarvertrages ist eine Käuferprovision in Höhe von 3,57 % inkl. der gesetzlichen Mehrwertsteuer, vom Käufer an die Firma iad Deutschland zu zahlen. Wir haben einen provisionspflichtigen Maklervertrag in gleicher Höhe mit dem Verkäufer abgeschlossen (§656c BGB)
Stichworte
Anzahl der Schlafzimmer: 4, Anzahl der Badezimmer: 2, Anzahl der separaten WCs: 1, Anzahl Terrassen: 1, Bundesland: Niedersachsen, 1 Etagen
Sonstiges/Wohnen: Einliegerwohnung