Version: 8.25.1Navigation überspringen
741 €
3 Zimmer
Immowelt logo

Büro zur Miete
741 €
3 Zimmer

3-Zimmer Büro in der Burggasse im EG

Da kein Wasserabfluss im Objekt vorhanden ist, kann auch keine Teeküche eingebaut werden. Übermäßiger Kundenverkehr ist nicht erwünscht, da es sich um ein ruhiges Haus handelt.

Eine Anmietung für unecht steuerbefreite Berufsgruppen ist leider nicht möglich.

BESCHREIBUNG UND LAGE

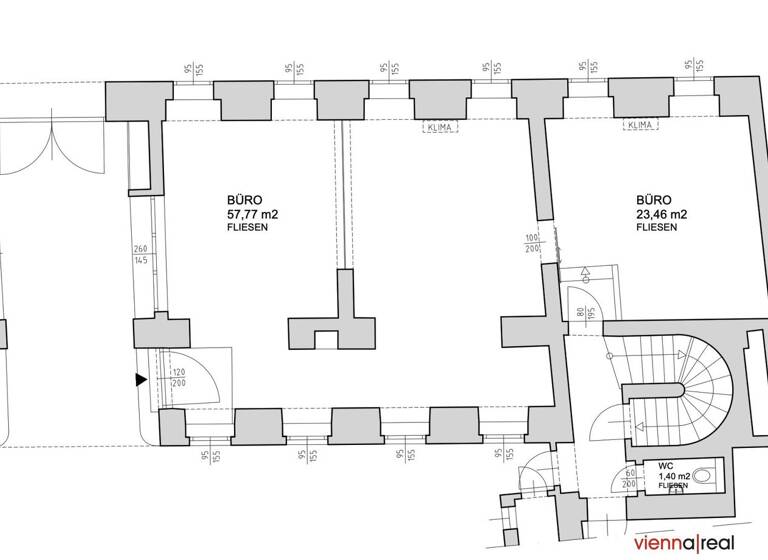
Dieses geräumige 3-Zimmer Objekt erstreckt sich auf rd. 82 m2 und befindet sich im Erdgeschoss eines 3-stöckigen Hauses ohne Lift in der Burggasse, das um 1900 erbaut wurde.

Die Immobilie bietet einen offenen und durch einen Rundbogen optisch unterteilten Raum mit rd. 58 m2, das sowohl zur Burggasse als auch zum Innenhof ausgerichtet ist. Desweiteren gibt es ein rd. 23 m2 Büro, das derzeit einen offenen Durchgang in den Hauptraum bietet, aber mit Einbau einer Tür abgetrennt werden könnte. Das WC mit Handwaschbecken befindet sich im Hausflur 3 Schritte entfernt und kann entweder über 2 Stufen vom Büro direkt oder über einen separaten Hauseingang von außen begangen werden.

Strom- und Heizkosten sind anteilig an der Nutzfläche bereits im Gesamtmietzins inkludiert. Die Wartung der Heiz- und Klimaanlage wird vom Eigentümer durchgeführt und wird über die Betriebskosten abgerechnet.

Die unmittelbare Nachbarschaft bietet eine ausgezeichnete Infrastruktur mit zahlreichen Geschäften des täglich Bedarfs, Supermärkten und netten Lokalitäten. 

OBJEKT UND AUSSTATTUNG

* großes Büro (optisch unterteilt)
* WC mit Handwaschbecken am Gang (alleinige Nutzung)
* Vorraum
* zahlreiche Fenster
* Fliesenbelag
* Gas-Zentralheizung
* Klimaanlage
* Heiz-/Stromkosten für Klimaanlage inkludiert
* zahlreiche Steckdosen für Strom/Internetanschluss
* kein Lift
* Mietvertrag auf 5 Jahre befristet

Nebenkosten einmalig
- Kaution 4 Monatsmieten
- Mietvertragsgebühr
- Maklerhonorar: 3 Monatsmieten netto zzgl. 20% Umsatzsteuer

VERKEHRSANBINDUNG

Das Objekt verfügt über eine ausgezeichnete Verkehrsanbindung: die Buslinie 48A und die Straßenbahnlinie 5 sowie die U-Bahn Linie U6 "Burggasse/Stadthalle" sind fußläufig in 1 bzw. 4 Minuten zu erreichen.

Noch nicht das passende Objekt gefunden? Wir laden Sie ein unsere Homepage zu besuchen http://viennareal.at [http://viennareal.at]

 

Wir weisen darauf hin, dass zwischen dem Vermittler und dem zu vermittelnden Dritten ein familiäres oder wirtschaftliches Naheverhältnis besteht.

Der Vermittler ist als Doppelmakler tätig.

Infrastruktur / Entfernungen

Gesundheit
Arzt <250m
Apotheke <250m
Klinik <500m
Krankenhaus <1.500m

Kinder & Schulen
Schule <250m
Kindergarten <250m
Universität <750m
Höhere Schule <250m

Nahversorgung
Supermarkt <250m
Bäckerei <500m
Einkaufszentrum <500m

Sonstige
Geldautomat <500m
Bank <500m
Post <750m
Polizei <500m

Verkehr
Bus <250m
U-Bahn <500m
Straßenbahn <250m
Bahnhof <500m
Autobahnanschluss <4.250m

Angaben Entfernung Luftlinie / Quelle: OpenStreetMap

Merkmale

  • Bezug: sofort
  • Erdgeschoss
  • voll klimatisiert
  • Bodenbelag: Fliesen

Grundrisse

Grundrisse
1 / 1

Realisiere Dein Projekt

Bausubstanz und Energie

Heizwärmebedarf (HWB)

F

Gesamtenergieeffizienz (fGEE)

D
  • Baujahr1900
  • Zustand der ImmobilieAltbau (bis 1945)
  • HeizungsartZentralheizung
  • EnergieträgerGas
Immowelt logo

Mietkosten

Gesamtmiete inkl. Provision, exkl. MwSt.
1.322,87 €
Nettokaltmiete
741,33 €
Betriebskosten
200,16 €
Heizkosten
181,22 €
Provision für Mieter
4.041,76 € inkl. 20% USt.
Kaution
5.389,00 €
Weitere Preisinformationen
Nettokaltmiete: 741,33 EUR

Lage

address-icon
BurggasseWien (1070)
Nähe U6 Burggasse / Stadthalle

Weitere Informationen

Sonstiges Seit 25.5.2018 gilt die neue EU-Datenschutz-Grundverordnung (DSGVO) und auch viennareal nimmt den Schutz Ihrer persönlichen Daten ernst. Nähere Informationen dazu finden Sie bei Interesse auf unserer Webseite unter http://www.viennareal.at/de/datenschutzinformation. Stichworte Stellplatz vorhanden, Wohnfläche: 82,37 m², Anzahl der separaten WCs: 1, Bundesland: Wien, 3 Etagen, modernisiert

Weitere Services

Lust auf eine Besichtigung?
Eine Frage zur Immobilie?
Mit einer persönlichen Nachricht hast du bessere Chancen auf eine Antwort.
Mit der Nutzung der oben angegebenen Telefonnummer oder durch Klicken auf „Kontaktieren“ akzeptierst Du die Allgemeinen Nutzungsbedingungen, denen Du jederzeit widersprechen kannst. Weitere Informationen zum Datenschutz

Über den Anbieter

Gersthoferstraße 89, 1180 WIEN
partner badge
Partnerschaft
Frau Nathalie GhraiziDein Kontakt
Online-ID: 23CXIYIENX15
Referenznummer: OBGC202501161719188259dcec317c2
viennareal Immobilienmanagement GmbH
Bewertung: 3,4 von 5 Sternen
Mit einer persönlichen Nachricht hast du bessere Chancen auf eine Antwort.
Mit der Nutzung der oben angegebenen Telefonnummer oder durch Klicken auf „Kontaktieren“ akzeptierst Du die Allgemeinen Nutzungsbedingungen, denen Du jederzeit widersprechen kannst. Weitere Informationen zum Datenschutz
Wie zufrieden bist du mit dieser Seite (nicht mit der Immobilie selbst)?