

Wohnung zur Miete401 €2 Zimmer • 43,9 m² • 2. Geschoss
401 €
2 Zimmer • 43,9 m² • 2. Geschoss
"ohne Provision" gemütliche 2 Zimmer Wohnung
Merkmale
- Bezug: ab 01.07.2026 möglich
- 2. Geschoss
- Einbauküche
- Personenaufzug
- Keller
- Außen-Stellplatz
- Bad mit Dusche
- Bodenbelag: Fliesen, Parkett
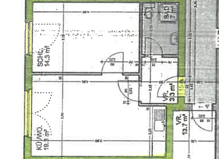
Grundrisse
Grundrisse
1 / 1
Realisiere Dein Projekt
Bausubstanz und Energie
Heizwärmebedarf (HWB)
E
Gesamtenergieeffizienz (fGEE)
E
- EnergieträgerFernwärme
Mietkosten
Gesamtmiete
665,62 €
Nettokaltmiete
9,12 €/m²
400,53 €
Betriebskosten
225,03 €
Umsatzsteuer
40,06 €
Kaution
3 Bruttomonatsmieten
Lage

Tobelstraße, Schwarzach (6858)
Weitere Informationen
Weitere Services
Lust auf eine Besichtigung?
Eine Frage zur Immobilie?
Online-ID: 268QSS6RP4KG

WOGE
Bewertung: 4 von 5 Sternen
Wie zufrieden bist du mit dieser Seite (nicht mit der Immobilie selbst)?

